【太平洋家居网 设计频道】本案为近三十年的老房建筑,因原楼板及房梁较低。在设计改造中,除各空间所需之基础光源外,设计师在水平或垂直空间转角加入了线型光源,通过光来改变视觉高度。自然光线和辅助光源相互交错呼应,令空间变得更为宽敞。正如勒·柯比意( Le Corbusier)所说的:“光线创造氛围、光线创造空间的感受,且光线是构造的表现。”
靛色玩味空间
项目名称:靛色玩味空间
坪数/平方米:45坪 / 150平方米
空间性质:住家
居住人口:夫妻+儿子
空间格局规划:玄关、客厅、书房、餐厅、厨房、客用浴室、主卧室、主浴室、次卧室、弹性卧室
主要材质:水波纹枫木、美耐板、茶镜、强化茶玻璃、黑镜、不锈钢金属、粉体烤漆金属、超耐磨木地板、手作特殊漆、进口磁砖、安格拉珍珠、印度黑石材、马赛克
【设计公司简介】
设计师谭淑静
谭淑静Tam带领的资深团队禾筑设计,2005年成立至今,被称作空间整疗师。妥善处理形成空间的每一个元素,创造安定的疗愈空间,擅长突破制式化的设计,创造空间的变化性,以探索事物的本质去思考如何赋予空间生命,禾筑设计建造空间的架构步骤运用圣经耶利米书中的概念,拔出、拆毁、建造、栽植的过程。
作品获台湾TID大奖,德国IF室内建筑大奖与意大利A’design award金奖,美国IDA Award等多项奖项肯定。
案例赏析
原始图
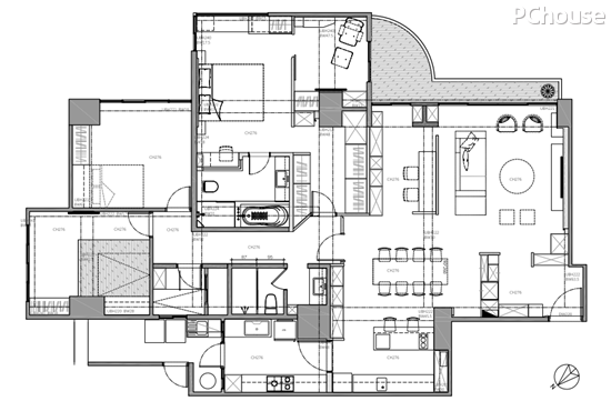
平面布置图
客厅设计
编辑点评:光使面成体,超出于光线后的,即是虚拟想像的无限空间。
编辑点评:因屋主时常举办家宴,如何把公共区域视觉效果放大及在空间上公私领域的划分即为此案最重要的部分。
编辑点评:于公共区域客空间皆不使用实墙隔绝,利用天花、柜体以及家具形式来定义空间的使用型式。
编辑点评:利用定制造型书桌的背墙软性定义了客厅及餐厅区的空间,使整体空间视觉宽畅又不失次序。
餐厅设计
餐厅设计
编辑点评:将厨房及吧台区轴线拉为直线,热炒区门片使用时可隔绝内外热气及气味,平常关闭时与墙面为同一平面,也成为墙面造型。
过道设计
过道设计
编辑点评:柜体除了提供足够的收纳机能外,也代替隔间区分空间。天花与柜体间的留白增加了空间的视觉延伸性,内藏的间接光源也隐喻著空间的动线走向。
柜体细节
过道设计
过道设计
过道设计
过道设计
编辑点评:主卧入口走道左右侧隐藏大量的收纳空间,为减低压迫感,在柜体及天花中崁入线状光源暗喻空间的延伸及交错。
主卧设计
编辑点评:主卧内延续公共空间的量体感元素,于低天花区加入线形光源切割量体,也提供廊道的照明机能。空间中的利用不同的家具或牆面跳色,让整体空间感活跃之馀也添加了一抹清新。不论是于居所或宴客都可有各自的机能及隐私性,让家能动能静,成为最佳的休憩地。
次卧设计
编辑点评:次卧考虑到长辈之使用及收纳习惯,订置了大尺寸之塌塌米卧榻,将下方空间也不浪费的做成可收纳之储藏外,整座卧榻也可以移动组合的。
浴室设计
浴室设计


何畅
2017-7-21 14:48:28






















