为时髦年轻的小两口改造的专属户型~人房合一的生活状态~
户型两室
面积90m²
花费30~50万
位置北京市
风格 日式、北欧
前言
这个项目完成于三年前,现在再拍摄的感觉是入住三年之时后让这个房子更有了家与爱的味道。
说到这个房子的屋主,是一对儿倍儿有味儿的审美颜值双在线的小夫妻。因为我们本来就是老相识的缘故,所以对于两个人的喜好方面还是相对比较了解,主要的问题在于如何更好的解决夫妻俩对于这个房子居住的深层次的诉求。换句话说就是怎么能把常规房子变成最最适合居住者的舒适小家,还能在仅仅几十平的空间内满足无法控制购物欲的大内存储物空间。。。
开启变身模式~
说到这个房子的屋主,是一对儿倍儿有味儿的审美颜值双在线的小夫妻。因为我们本来就是老相识的缘故,所以对于两个人的喜好方面还是相对比较了解,主要的问题在于如何更好的解决夫妻俩对于这个房子居住的深层次的诉求。换句话说就是怎么能把常规房子变成最最适合居住者的舒适小家,还能在仅仅几十平的空间内满足无法控制购物欲的大内存储物空间。。。
开启变身模式~
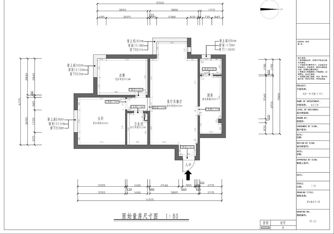
· 户型图

原户型是中规中矩的两居室,虽然没什么大弊病,但是要说完全达到实用性还是不能满足。

在房子结构改造上主要为三处改动:
1.在原有餐厅的位置新建了墙体,隔出了一个独立的入户衣帽间,压缩了餐厅的空间一分为二,这样的做法首先要注意原餐厅空间尺寸是否充足,这样隔后两个空间才都会好用;其次是要建立在居住者的生活习惯之上,对于餐厅利用率的高低。
2.厨房封闭墙体全部拆掉,形成开放式厨房,并且原有的阳台的墙体也一同拆掉,改为与厨房空间一体化,作为放置洗衣机的区域。
3.原厨房稍为狭长,造成一定的空间浪费,因此从中又新建墙体隔出另一个储物空间。这样一来从没有储物间到变为增加两个,那么储物量可想而知了。。。
1.在原有餐厅的位置新建了墙体,隔出了一个独立的入户衣帽间,压缩了餐厅的空间一分为二,这样的做法首先要注意原餐厅空间尺寸是否充足,这样隔后两个空间才都会好用;其次是要建立在居住者的生活习惯之上,对于餐厅利用率的高低。
2.厨房封闭墙体全部拆掉,形成开放式厨房,并且原有的阳台的墙体也一同拆掉,改为与厨房空间一体化,作为放置洗衣机的区域。
3.原厨房稍为狭长,造成一定的空间浪费,因此从中又新建墙体隔出另一个储物空间。这样一来从没有储物间到变为增加两个,那么储物量可想而知了。。。
· 客厅

开放厨房和客厅融为一体后的感觉就是宽敞和明亮,相比改造前,采光增加了不少,同时也有很强的通透感。在日常的生活状态中,开放式的厨房也可以更多的增加人与人之间交流与互动,情感的纽带。。

家中的每一处小细节都体现了屋主的爱好,家就是你的影子。

厨房与客厅形成洄游动线,完全灵活的空间,动线没有阻隔~

日常温馨时刻~
· 厨房

小户型同样可以实现开放厨房以及吧台,对于纠结的开放厨房油烟问题的朋友们,入住三年的反馈担心是多虑的,选好烟机灶具,一切OK~

最温暖的莫过于生活日常中的点滴。。

吧台的利用率对于年轻人真是颇高,早餐、简餐、调酒、做咖啡等等,这里可以满足做许多事情。。
· 餐厅

对于餐厅需求不高的屋主来说,虽然不常用,但是也不能没有,属于低频空间。偶尔来朋友聚会还是要满足的了,可当作工作台来使用,也是一个开放式阅读区及餐厅。
· 卫生间

小空间不能放下浴缸吗?只要尺寸把握的准确,一样可以满足偶尔泡澡的需求。。麻雀虽小,五脏俱全~

壁挂式的马桶,上面的小台面也可以利用放小物件以及装饰小品,生活的情趣体现在家中的每个小角落。。
· 卧室

周末温暖的阳光洒满在床上,慵懒而又有朝气~

· 书房

次卧室作为两位狂热音乐爱好者的影音室,这个空间浮现最多的词就是:音乐 音乐 音乐与爱~

收藏各种黑胶唱片及CD,多到数不过来。。
更多推荐
发表您的看法…
目录
户型图
客厅
厨房
餐厅
卫生间
卧室
书房



评论 0