疗愈系混搭风 轻松打造温馨屋
户型三室
面积130m²
花费30~50万
位置成都市
风格 美式
前言
家就是应该有属于自己的样子,在我们独处的空间里,我们不过分讨论她的风格,但所有色彩和家居的每一个搭配,都是发至内心的喜欢;
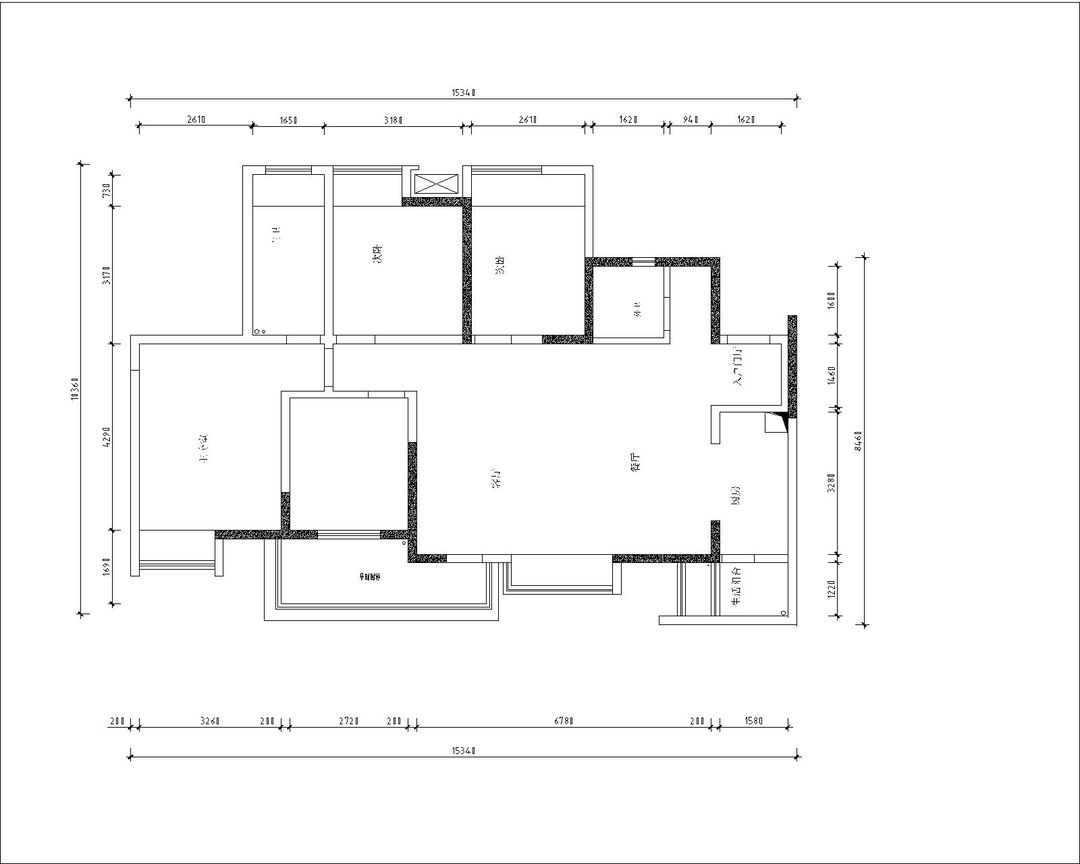
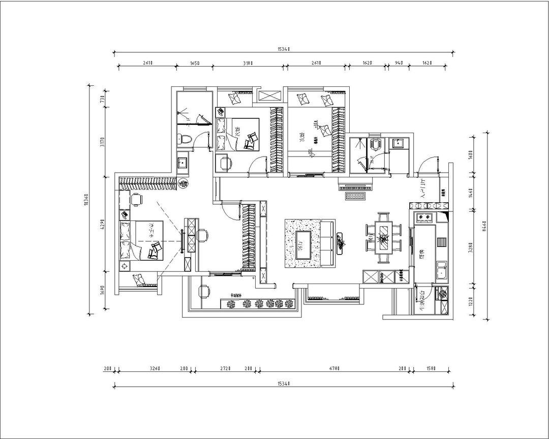
· 户型图


合理的室内布局是根据我们实际居住者在生活中的小细节而产生,每一个动向的改变与设计,都是根据她们的起居习惯和生活习惯的相结合,我们认为居家设计一定不能脱离实际的生活轨道,在有限的空间参数里,我们没有过分去改造结构,只是根据居住者的需求,做了功能上的局部调整,客厅的采光是阳光的折射光,为了增加自然光线与客厅的空间感,我们将一间次卧调整为多功能房间,相对的采光和方向,保证了客厅从早到晚能够有温暖的阳光和良好的通风,去繁从简也是我们在这一次设计中的一个构思,本来注重造型的美式风格,这一次做了减法,但舒适开阔的空间里,却融入了很多温暖的家具和柔和的材质进来,让长方形的客餐厅也增色不少浪漫温馨的艺术气息
· 玄关

软装配饰会让我们心灵敞开去感知物件散发的气息,微妙深邃的植物墙画为我们的端景提供了强烈的层次对比,为家居空间增色不少;

· 客厅

不管我们是在什么样的大环境, 回到家,就能找到属于我们自己的方向,这是我们一直在设计中想要表达的,不管是极简的高冷,还是黑白的冷艳,或者是温馨浪漫北欧风,夸张的艺术混搭风,都在一件件家居中梳理着我们对生活的审美和定位。


姜黄色的复古风沙发搭配纹理丰富的蓝色地毯,形成色彩的冷暖平衡,电视墙的流线型壁炉在冬日里静静升温,植物在沙发与窗帘之间很好的过渡了姜黄色的热情,如果是在静怡的午夜,一杯红酒一本情怀书籍,涌入包裹性很棒,有踏实感的老虎椅子,享受夜晚带来的宁静,体会岁月静好,这不就是我们需要的生活吗?

· 厨房

· 餐厅

即便是简约的餐厅空间,但也不能失去仪式感,餐边柜上可以自由调酒,好看的餐具一样也不能少,精致的神秘蓝色桌布映衬着金属质感的果盘子,搭配有生机活力的植物也是满满的幸福甜蜜感;

· 卧室

卧室的色彩搭配层次丰富协调,墨绿色+灰蓝色+棕色+大胆的肌理砖红色 形成了浓郁的视觉画面,饱和度用到恰到好处,色彩之间的相互呼应和强度的平衡带来了整体感,在生活方式多元主义的时代,我们对风格的定义更加的大胆,这些风格之间的相互和谐转换所形成的篇章被我们定义为“混搭”,与其我们去热爱“风格”,倒不如说我们热爱我们的“喜欢”,我们可以完美的将我们的“喜欢”通过一物一件来诠释,我们自己的“美”;

· 书房




蓝色会给人在视觉上有冷静和放松感,搭配木质元素的书桌台面,也是再惬意不过了,绵柔的毯子,浓郁气息的深色地毯,奶油色的椅子,和复古的三角柜,让精致的灰蓝色更加的出挑,再搭配一些可爱精致的画作,有轻奢复古质感的灯,让整个空间多了几分家居生活的艺术感,也会让人想要在这样的环境里伏案写作,让回到家的疲惫身躯还能再为生活去工作和奋斗;


· 儿童房

果绿色的清新毯子,让棕色的床面变得生趣很多,灰色的墙面没有过分炫耀的争宠,搭配贝壳壁灯,和绿色干枝,倒也是形成了一副干净美的空间
更多推荐
发表您的看法…
目录
户型图
玄关
客厅
厨房
餐厅
卧室
书房
儿童房



评论 0