梦想改造家 | 赖旭东打造多功能之家 定制毛坯房改造指南
户型别墅
面积85m²
花费50万以上
位置成都市
风格 现代
前言
小杨常年居住在成都,为了方便照顾父母,想把即将退休的父母从老家接到成都一起生活。考虑到父母能够更好地宜居养老,加上自己本身向往田园生活,在空气环境均优于成都市区的郊区购置了一套小别墅。
这套房子所在小区环境绿树如荫、风景如画,整体居住条件也很安逸。然而等他验收新房时,看到这个85㎡的小别墅大失所望。不仅与当时他所看的样板间相差甚远,房子所处的位置周围还都是黄土高坡。
除了外部环境,房子内部的整体结构也不太合理。客厅开间面积太小,厨房面积不足5㎡,卫生间很局促,而且还存在房屋漏水的情况。这套小别墅一方面是用作养老房来使用,现在上下楼的楼梯坡度太大,小杨的父亲腿部做过大手术,腿脚行动不便,这无疑来说是个棘手的问题。另外,小杨作为一名大龄单身男青年,也到了快要结婚的年纪。他经常一回老家,就会遭遇到家里父母以及亲戚朋友们的各种花式催婚。因此,委托人希望改造后的新房既要考虑自己的私人空间,又要为退休的父母打造舒适的养老环境,还要为他自己将来成立家庭作打算。
装修费用共54.09万:硬装(含人工)28.8万、软装(含绿植)14.2万、电器(含电梯)11.09万
这套房子所在小区环境绿树如荫、风景如画,整体居住条件也很安逸。然而等他验收新房时,看到这个85㎡的小别墅大失所望。不仅与当时他所看的样板间相差甚远,房子所处的位置周围还都是黄土高坡。
除了外部环境,房子内部的整体结构也不太合理。客厅开间面积太小,厨房面积不足5㎡,卫生间很局促,而且还存在房屋漏水的情况。这套小别墅一方面是用作养老房来使用,现在上下楼的楼梯坡度太大,小杨的父亲腿部做过大手术,腿脚行动不便,这无疑来说是个棘手的问题。另外,小杨作为一名大龄单身男青年,也到了快要结婚的年纪。他经常一回老家,就会遭遇到家里父母以及亲戚朋友们的各种花式催婚。因此,委托人希望改造后的新房既要考虑自己的私人空间,又要为退休的父母打造舒适的养老环境,还要为他自己将来成立家庭作打算。
装修费用共54.09万:硬装(含人工)28.8万、软装(含绿植)14.2万、电器(含电梯)11.09万
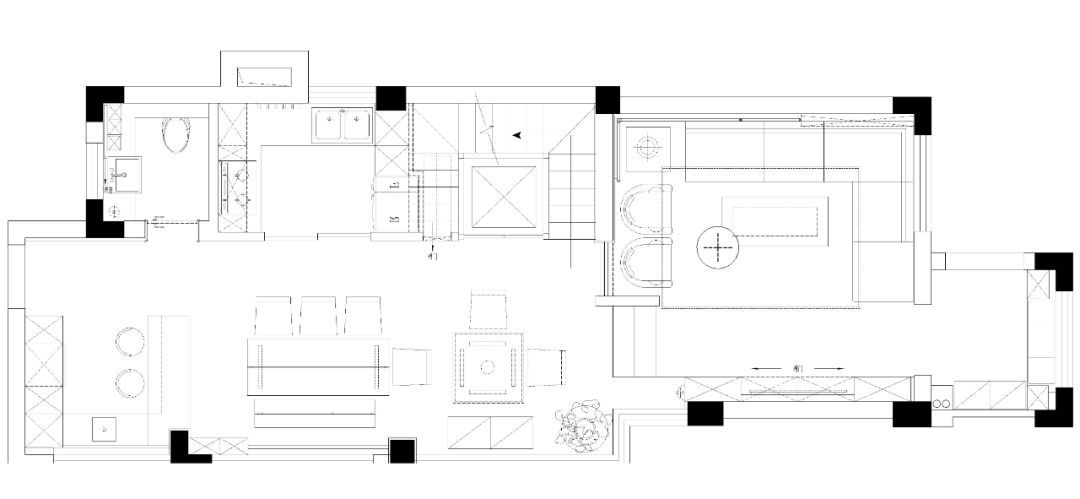
· 户型图

赖旭东通过对现场的考察后,结合居住难题,从可预见性、隐蔽工程、暂劳永逸三个方面出发进行改造。
首先合理利用别墅住房最大的优点——附赠面积,在不影响外立面和安全结构的前提下,对整个房子的功能区进行了合理规划。
首先合理利用别墅住房最大的优点——附赠面积,在不影响外立面和安全结构的前提下,对整个房子的功能区进行了合理规划。

在一楼的布局上,设计师将入户门移到入户花园,增加了玄关部分;调换厨房和卫生间的位置,并将中间的隔墙前移,增大了厨房的面积。

客厅和厨房高达6.5米的空间被隔开,将二楼入户处的挑高空间做成了卫生间。二楼卧室的门窗外移到阳台,把阳台纳入到室内空间来用,增加了次卧的面积;因隔断增加的二楼多功能房,平时作为影音室和客房使用,未来通过软装布置,可以变成儿童房,大大延展了房屋的使用需求。

三楼的露台变成阳光房,这样一来,增加主卧卫生间面积的同时,也实现了干湿分区的功能。
· 客厅

当初委托人之所以很失落,是因为屋内的空间不能和外部园林景观相匹配。为了让自然元素真正地融入到家里,设计师创新采用制作硬包画的方式用来替代传统的墙面装饰。除了装饰画外,设计师还大胆地在浴室瓷砖上运用了打印的新工艺,把画好的图案转印在瓷片上。针对委托人的居住需求,设计师全方位考虑,从方方面面打造这个原本“失落”的新家,交出了一份令人满意的答卷。


· 餐厅




· 卫生间

· 卧室

· 阳台

· 走廊

基于委托人父亲的腿脚不好,设计师拆除了原本的楼梯进行重建,放缓楼梯坡度的同时,也释放了2到3㎡左右的空间。这样根据节省出来的面积,设计师在调整形成的楼梯井空间加装了电梯,为老人上下楼提供了便捷。
更多推荐
发表您的看法…
目录
户型图
客厅
餐厅
卫生间
卧室
阳台
走廊



评论 0