新作 | 用细节雕刻,塑造三代人的对话式空间
户型三室
面积120m²
花费50万以上
位置杭州市
风格 现代
前言
追求极致的平静与永恒的优雅
The pursuit of ultimate peace and eternal grace
The pursuit of ultimate peace and eternal grace
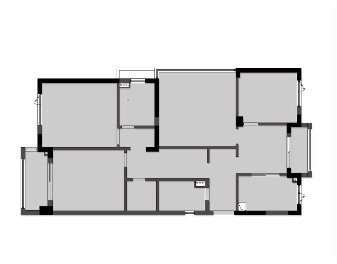
· 户型图


现代居所除了满足基本“住”的机能外,其扮演的角色,可以更加丰富,犹如游戏般,无论形体、机能、感官上,都能产生不同的趣味变化。
· 客厅




圆形地毯将高低茶几与异形云朵沙发、完美的融合在一起,创造出轻松而和谐的家庭氛围。


流畅的弧形元素散布于沙发、地毯、茶几、悠闲椅等。温柔的艺术线条将舒适的生活,完美勾勒出来。


利用木饰面凹凸造型,实现次卧隐形门,激发整体感和秩序感。拿掉多余隔墙,使空间更加通透,增加亲人之间交流。
· 厨房

· 餐厅



空间结构和吊顶中出现的几何元素,分别传达出不同寓意:笔直利落的线条,传递着理性思维,大圆的运用意喻圆满。不同元素的交融汇集,于此展开和谐的对话。
· 卧室


主卧背景墙立面分色,轻快色彩的块状量体,略去拖泥带水的过多装饰,形成强烈的视觉冲击。
· 次卧


莫兰迪粉细腻的纹理、暖灰色木质地板,搭配出令人感到舒压的寝居氛围,当代画作成为空间的调和剂,从各类细节呈现独运匠心
· 儿童房

蓝白乳胶漆分割拼色,使整个儿童房充满未知与想象力。
· 卫生间

更多推荐
发表您的看法…
目录
户型图
客厅
厨房
餐厅
卧室
次卧
儿童房
卫生间



评论 0