他家400㎡的别墅,除了地面其他结构竟然全都改动了
户型复式
面积400m²
花费50万以上
位置上海市
前言
胡先生儿子2017年打算结婚,胡先生便在16年下半年着手为儿子准备新房。做皮料布艺生意的他经常出差,住惯了超五星酒店,所以对于家的舒适度和皮料布艺的要求就会更挑剔。之前了解过很多风格,一直没定下来,设计师根据年龄与房型介绍了轻美式,既适合50多岁的胡先生与太太,也适合20多岁的儿子儿媳。
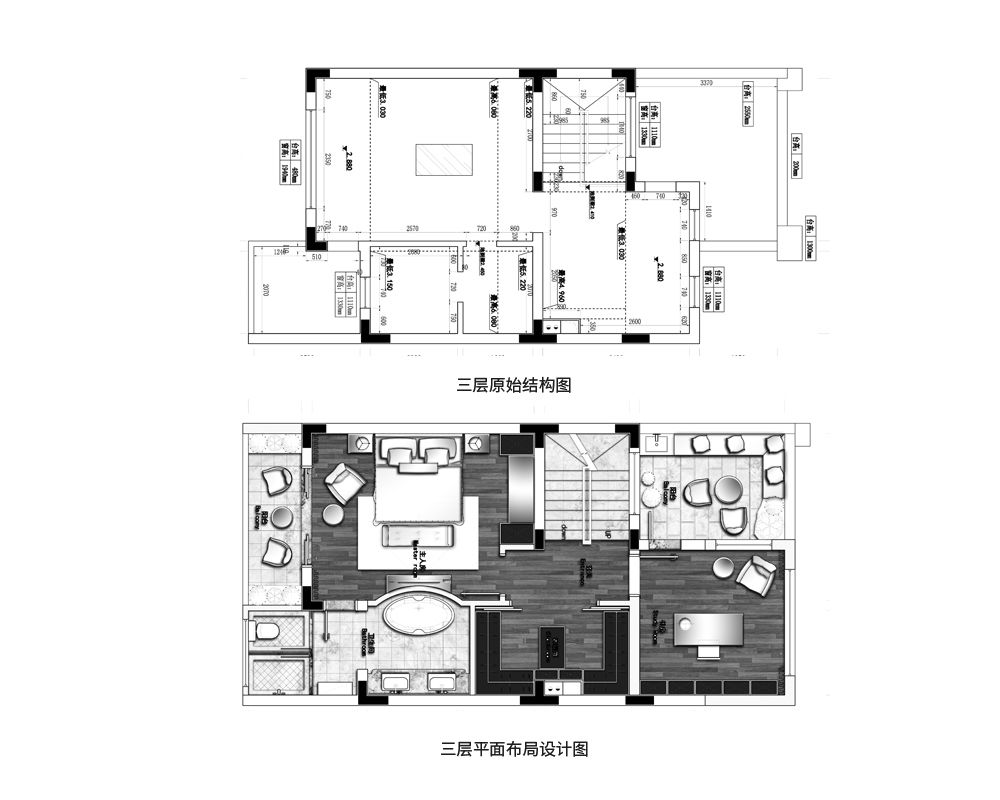
· 户型图

客厅主要是读者以及朋友们的会客地,地下室就主要是年轻人的集中地了。中年人更注重待客的正式与仪式感,而年轻人则比较推崇休闲放松的聚会场所。地下室新增了洗手间与储藏室,将原先的墙体去掉,让空间的整体和动线更加流畅,最重要的一个改动是在地下室开了一个窗,将原本阴暗潮湿的地下室完全改变成为家里另一个客厅



· 玄关

将玄关处的墙推后,中间做了弧形的处理方式,放置一个圆几,背后是跑了很多壁画,两边看似是护墙板其实是两个非常大的鞋柜。
· 客厅

客厅的整个局部都换掉,以前的客厅相对来说比较小,而且是长方形很难布局,现在将墙体往外移动1米2左右,正是读者想要的大空间。读者是上海青浦当地人,比较注重形式感,客厅是会经常举办聚会的地方,整个空间大概有7~8个㎡,无论是视觉还是动线都特别舒服。为了体现客厅的正式感,客厅的墙面全部使用护墙板木饰面材质。





· 厨房

U字形的厨房,考虑一家人基本不会多使用厨房,所以没有做到很大,就满足简单的使用功能。读者对于餐厨房的唯一的需求就是希望有个大圆桌,圆桌一家人吃饭比较方便,橱柜以及储物间的柜体都是用樱桃木门板定制的。
厨房的墙面采用了小方砖铺贴,之所以在油烟机下方的一块区域采用斜拼,是为了与空间有个呼应,增加点活泼性。它的镶贴工艺和现行的墙砖施工方法是一样的。
厨房的墙面采用了小方砖铺贴,之所以在油烟机下方的一块区域采用斜拼,是为了与空间有个呼应,增加点活泼性。它的镶贴工艺和现行的墙砖施工方法是一样的。
· 餐厅


· 卫生间



卫浴间现在的淋浴区和放浴盆的地方都是原先的露台,跟卧室一样也是现浇的顶,这样的设计让卫浴间宽敞了很多,不拥挤的体验让生活的舒适度提高了很多。对胡先生夫妇来讲,卫浴间的双台盆设计不需要太大,所以将更多的空间让出来作为衣帽间的空间。墙面使用的是美国人会用的这种小方砖,地面使用大理石拼花,台面是大理石。
· 卧室

三楼卧室外面的阳台之前也是没有的,为了跟卫浴间外围平齐,也做了现浇变成一个阳台,将原来的卫生间一面墙体外移,扩大成为一个8㎡的衣帽间。

二楼的两间房都是套房,另一间是为偶尔来做客的客人准备。原来床旁边的阳台区以前是露台,做了现浇顶,扩进来之后变成休闲区,室内面积变大很多,以前靠墙有个衣柜的设计,拆除衣柜,增加了单独的衣帽间。喜欢衣帽间的读者编辑推荐参考衣帽间的文章:衣帽间再也不是梦想
· 书房

因为胡先生儿子有玩游戏的爱好,在装修时就提出希望有个单人书房,于是也现浇了这个空间,书房的玻璃特别多,有助于良好的采光与视线。
· 走廊



二楼楼梯处的平台这里做了处理手法,原来的楼梯过道太拥挤了,将原来平整的墙体做成了弧形,让上楼的平台这里空间更加宽阔,压抑感没这么大。
更多推荐
发表您的看法…
目录
户型图
玄关
客厅
厨房
餐厅
卫生间
卧室
书房
走廊



评论 0