恬素生活,寻觅心中向往
户型复式
面积400m²
花费50万以上
位置温州市
风格 现代、简约、现代简约
前言
"所谓住宅,是生活与密切相关的人们,
依据自己的生活方式亲手打造而成的。
依据自己的生活方式亲手打造而成的。
· 户型图

一层平面图

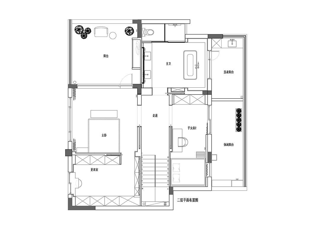
二层平面图

三层平面图
· 客厅

人们对住宅的需求,实质是追求一个完美且能够高效运作的住宅空间。
原木与大理石交融、自然与自然的拼接、细腻的艺术境意,无处不透露着简洁大方,沁润人心的空间美学。
原木与大理石交融、自然与自然的拼接、细腻的艺术境意,无处不透露着简洁大方,沁润人心的空间美学。



· 厨房

· 餐厅

餐厨有序衔接,客餐厨各空间形成自由的开放组合,去除之间屏障,餐桌上的其乐融融、厨房中的喷香美食,都为美好的生活开启了全新的可能。

· 卫生间


· 书房

装饰材料仅限于原木、玻璃与纱帘,居住的内部空间不再加入其他组织结构。通透、明亮,洒落的光影使栖室充满着光和宁静的气息。
· 儿童房

小朋友们都有个愿望,披星戴月,观察万物的变化。以那坡里黄作为主色调,利用卡通元素定格小朋友可爱的瞬间,释放出孩子的天真与浪漫,让梦想一点一点靠近。
· 衣帽间

光来到了更衣室仿佛提了线的木偶,被掌控在梳妆台间,早晨的睡眼惺忪,时间顺着光线自由散落,所有装饰都被排除在外,成为真正纯粹的空间。

· 走廊

楼梯在空间中起到交织生活的作用,我们所能做的便是在狭窄的空间带去想象。在空间中注入天光,温润的软木与洁净的玻璃组合,没有过多的修饰,仅留下光与影,斑驳了时分。

中庭天窗的出现,会为这个空间注入些许自然,内外空间瞬间打破隔阂,来到这里,抬头一望,蓝天白云、漫天星辰坦然的展示在你的眼前,楼梯成为具有探索的宇宙场所。

更多推荐
发表您的看法…
目录
户型图
客厅
厨房
餐厅
卫生间
书房
儿童房
衣帽间
走廊



评论 0