重组空间的黄金比例之家
户型三室
面积135m²
花费50万以上
位置广州市
风格 简约
前言
原户型是一套配置完善的大三房平层住宅。 空间的初期使用状态为屋主Tao&Jenny的两口之家,屋主对本次设计的明确诉求重点在于空间视觉的气质,其次是空间细节;屋主希望未来的居所是温馨舒适的,且希望尽可能更多的强调空间互动性。 围绕着屋主两小口的需求所展开的设计,我们以空间的尺度重新分配为起点,围绕着互动性展开空间新的链接关系,最后以材质的细致搭配统一整体空间气质。其中设计的核心都是围绕在客餐厅空间的比例刻画上,从而诞生出新的空间秩序(功能链接),因此客餐厅整体空间可以说是本案的重中之重也是设计的亮点所在。
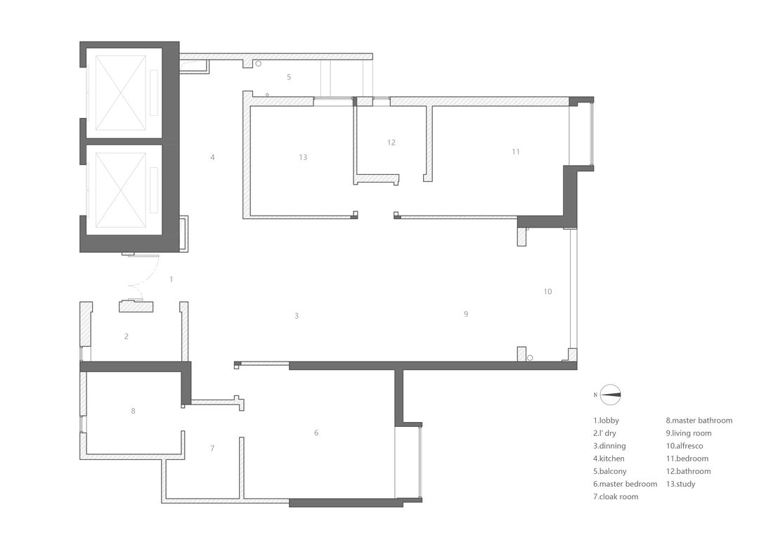
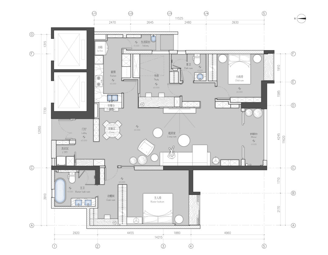
· 户型图

『Before』 首先讲一些原户型的小问题: 1.其中多处空间功能尺度都表现为不充分或不完善的状态(其中客餐厅及厨房的情况较为严重); 2.空间功能形态单一且缺少空间链接关系(在整体空间中随处可见); 3.空间整体偏低的利用率。 以上问题点都直接影响到空间的实用性、感官,从而影响到其空间本身的价值。因此以上所提及都是本案在初期空间分配上急需要解决的问题。

『After』 新的空间方案当中,我们从重新分配客餐厅的空间以及功能立面的尺度为起点展开整体空间设计。 重新分配的客餐厅比例更好的容纳了对应功能区的家具元素且避免了尺度的浪费,强调贴近功能的链接性: 1.重点表现在餐厨空间的交互——餐厨之间插入了互动吧台窗口概念; 2.书房设计了与客餐厅空间互动的内部窗口; 3.客厅空间以电视墙立面的重新划分将客厅置于整体空间的中间部位,进而使得客餐厅距离更加贴近,且释放出临近阳台的空间,在阳台门的开合之间将两部分空间串联相互提升和补足; 4.厨房内部空间重新划分,从厨房入口动线的重新定义而创造出更具实用性和体验感的新厨房空间——一个非常充足舒适且高效的功能空间。
· 玄关

新的玄关空间是借由重新定义入户部位的空间功能及内部尺度得以实现的,这部分空间是在本次空间改造中首个强调空间层次的表达。 空间中以柜体分割内部空间的视觉关系,为内部私密生活空间带来足够的隐私保护,围合式的功能柜体设计也为此部分空间带来非常便捷且实用的收纳功能以及良好的空间视觉效果。 借用柜体的功能尺度组合和适度开放设计为这部分空间带来视觉上的丰富以及细节上的刻画。 画面左侧的入户直面的收纳柜是一个三段式柜体设计: 1)底部作为入户鞋柜高度上最适合平时拿放 2)中间开辟了一条细长的壁龛很好的解决了随手小物件的摆放同时也可以作为站着换鞋时的扶手功能使用 PS:细长的比例尺度刚好满足常用小件随身物品的摆放高度同时
· 客厅

客厅坐卧区域以强调家具整体氛围为主。 硬装部分运用大面灰色水泥墙面作为承托,将空间尺度感很好的保留; 邻近阳台的部分以装饰的手法保留了一组大容量收纳柜用以解决日常收纳的同时也为整体扁平的家具组合带来一个高度上的跳跃式搭配,形成了视觉上的稳定三角构图; 客餐厅的空调统一安排在沙发区上方天花空间,吻合了行为活动对空间高度的需求并更好的保留了整体空间的层高和天花整体性,同时让出回风角度变得非常舒适。





· 厨房

互动式用餐区,新的用餐区更加贴近厨房区域,餐厨功能之间高效的配合很好的提升了生活效率和品质。 图中右侧厨房开放窗口的背后是洗菜盆的位置,洗菜的同时可以透过窗口享受外部的大空间视野可以带来舒适的操作体验; 图中左侧木质柜体是进门三段柜的背面部分,顶部的柜体就是留给用餐区的餐边柜功能,餐边柜的门高度刚好设定在餐桌以上的位置,为餐桌上的摆放预留了足够的高度空间,因此无论任何时候餐边柜的柜门都可以无阻的开启,包括吊灯与餐边柜的距离都是经过精密计算的完全不会影响开门,由此更可以看到设计师对功能尺度的深度利用。

· 餐厅

新的厨房空间内部功能尺度得到很大的扩充,尤其是台面的长度尽可能的做到了最长,且中西厨功能分配清晰,典型的L型厨房台面配合三角功能动线使得内部操作自如流畅。 厨房门采用了透镜玻璃设计,一方面可以配合互动窗口带来更多的自然采光,同时在进出时可以清晰掌握对面的人员活动有效的避免内外的人员活动冲撞。
· 卧室

主卧是一个强调安静舒适的功能场所,整体的内部设计采用减法,排除繁杂的造型以强调空间的空性来营造绝对纯粹的睡眠环境。



· 衣帽间


· 主卫

更多推荐
发表您的看法…
目录
户型图
玄关
客厅
厨房
餐厅
卧室
衣帽间
主卫



评论 0