客餐厅一体+两居变一居,小户型也能有大套间
户型一室
面积72m²
花费30~50万
位置北京市
风格 现代简约
前言
好的空间规划,
应该是既满足业主的需求,
又能最大化的利用空间,
甚至,能更好地展示空间。
本案是非常方正、合理的两居室结构,
但结合业主需求,做了两点改动,
也是本案的格局改造亮点。
应该是既满足业主的需求,
又能最大化的利用空间,
甚至,能更好地展示空间。
本案是非常方正、合理的两居室结构,
但结合业主需求,做了两点改动,
也是本案的格局改造亮点。
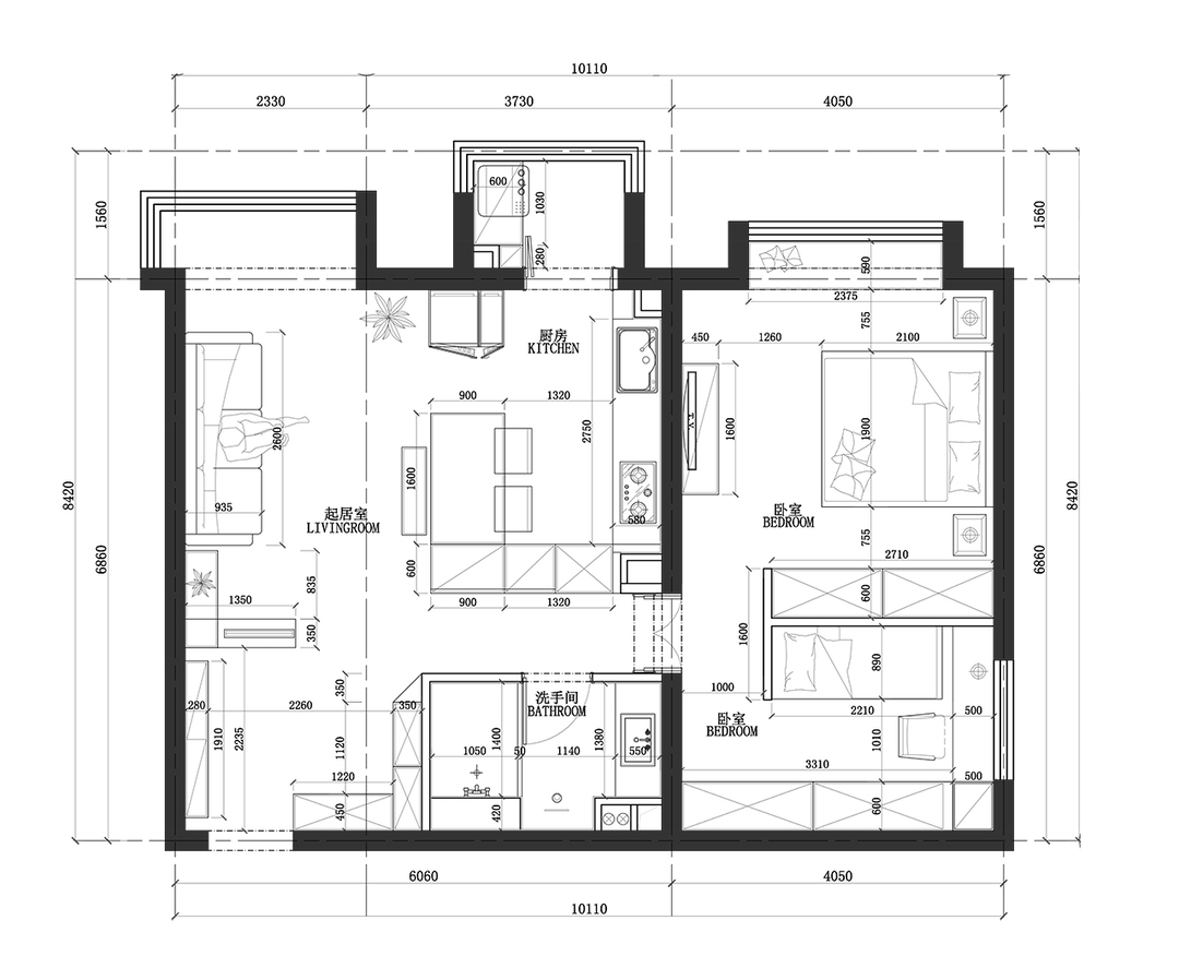
· 户型图

原始户型是72平米两居室,户型非常方正,唯一的问题是厨房门和卫生间门正对,风水上不太吉利。

1、格局改动一:客、餐、厨融为一体
开放式厨房有两大优点:
一是厨房与外界打通,显得空间很大;
二是可以解决厨房门正对卫生间的风水问题。
应用于本案,可以说是非常合适。
当然开放式厨房的问题也有:
油烟问题和厨房物品多会显得凌乱。
这就需要屋主勤于整理。
开放式厨房首先要拆掉隔墙,
一般这个隔墙都是非承重墙,
可以拆除。
但也有个别的情况:
这面墙里埋着燃气管或者主水管。
一般情况下这些管道都不能改动,
也就需要设计师开动脑筋去美化这些管道了。
开放式厨房有两大优点:
一是厨房与外界打通,显得空间很大;
二是可以解决厨房门正对卫生间的风水问题。
应用于本案,可以说是非常合适。
当然开放式厨房的问题也有:
油烟问题和厨房物品多会显得凌乱。
这就需要屋主勤于整理。
开放式厨房首先要拆掉隔墙,
一般这个隔墙都是非承重墙,
可以拆除。
但也有个别的情况:
这面墙里埋着燃气管或者主水管。
一般情况下这些管道都不能改动,
也就需要设计师开动脑筋去美化这些管道了。

这是玖雅其他案例当中,
厨房隔墙存在水管的处理方式:
用水管当作玻璃隔断的一边“窗框”,
很巧妙地隐藏了起来。
厨房隔墙存在水管的处理方式:
用水管当作玻璃隔断的一边“窗框”,
很巧妙地隐藏了起来。

厨房的隔墙还往往兼顾客厅电视背景墙的作用,
一旦去掉,电视的位置也就成了问题。
一般的解决思路有两个。
一旦去掉,电视的位置也就成了问题。
一般的解决思路有两个。

第一个解决方式是厨房做岛台,将客厅沙发位置反向,背靠岛台。
这样备餐,做饭的时候能跟家人一起看电视,互动。
这样备餐,做饭的时候能跟家人一起看电视,互动。

第二个解决方案是将餐桌放到厨房和客厅中间。
这样能进一步模糊客厅和厨房的分界线,
让空间融为一体,显得非常宽敞。
电视可以采用吊挂式或者移动式来解决。
本案就采用的这种方案。
这样能进一步模糊客厅和厨房的分界线,
让空间融为一体,显得非常宽敞。
电视可以采用吊挂式或者移动式来解决。
本案就采用的这种方案。

客、餐、厨空间融为一体。
门厅进行了视线遮挡,
欲扬先抑,
进入客厅豁然开朗。
门厅进行了视线遮挡,
欲扬先抑,
进入客厅豁然开朗。


2、格局改动二:两居室改为一个大套间
平时主要是夫妻二人居住,
对于第二卧室的需求不强。
本案原始户型动静区分明,
而且两个卧室之间的隔墙均为非承重墙,
这为改造成套间创造了先天条件。
平时主要是夫妻二人居住,
对于第二卧室的需求不强。
本案原始户型动静区分明,
而且两个卧室之间的隔墙均为非承重墙,
这为改造成套间创造了先天条件。

设计师用一面“T”字型隔墙来对两个卧室进行划分,
“T”字型一边内嵌主卧衣柜,
一边作为进入套间的“玄关墙”,用来遮挡视线。
小隔间是多功能的,
兼顾书房、衣帽间补充、储物等。
“T”字型一边内嵌主卧衣柜,
一边作为进入套间的“玄关墙”,用来遮挡视线。
小隔间是多功能的,
兼顾书房、衣帽间补充、储物等。

为了增加趣味,
也让这个小隔间不那么“堵”,
设计师还在进门的墙上做了窗景:
一个简约中式的窗洞手法。
也让这个小隔间不那么“堵”,
设计师还在进门的墙上做了窗景:
一个简约中式的窗洞手法。

3、整体色调:现代简约+复古元素点缀(客厅)
一个家的整体色调一般由客厅来“掌握”。
浅,且没有颜色倾向的灰色墙漆,
可以包容所有家具自带的,不可控的颜色;
直,且没有任何造型的顶面结构,
也同样可以包容所有家具、木作自带的各种元素。
即便业主几年后换掉了所有的家具,
也同样可以融入到这个空间。
灰色墙漆,在白天有阳光的照射,会偏蓝;
到了夜晚,又会受灯光的影响,发暖,
非常百搭的选择。
一个家的整体色调一般由客厅来“掌握”。
浅,且没有颜色倾向的灰色墙漆,
可以包容所有家具自带的,不可控的颜色;
直,且没有任何造型的顶面结构,
也同样可以包容所有家具、木作自带的各种元素。
即便业主几年后换掉了所有的家具,
也同样可以融入到这个空间。
灰色墙漆,在白天有阳光的照射,会偏蓝;
到了夜晚,又会受灯光的影响,发暖,
非常百搭的选择。

木作颜色是空间中的中度色调,
选用了犹如水泥色的玫瑰橡木板,
平和中夹杂着些许“野性”。
活动家具,例如沙发和餐椅的皮质色系,
给这个空间带来了家的感觉,
也给空间定了颜色倾向:暖色。
选用了犹如水泥色的玫瑰橡木板,
平和中夹杂着些许“野性”。
活动家具,例如沙发和餐椅的皮质色系,
给这个空间带来了家的感觉,
也给空间定了颜色倾向:暖色。

餐椅和餐边柜的复古造型,
正好映衬了定制柜的“野性”,
非常契合。
正好映衬了定制柜的“野性”,
非常契合。


客厅沙发实景图

带尺寸平面图
· 玄关

进入门厅有一面灯芯玻璃的隔断墙阻隔视线。
转过身就能看到这面储物能力MAX的门厅柜。
转过身就能看到这面储物能力MAX的门厅柜。

门厅柜体结构图。
柜体由两部分组成,
一面放进门随身物品,
一面放衣物。
两组柜体均顶天立地。
柜体延申到墙边,
还做了弧形的展示格来收口。
柜体由两部分组成,
一面放进门随身物品,
一面放衣物。
两组柜体均顶天立地。
柜体延申到墙边,
还做了弧形的展示格来收口。

进门换衣镜。
· 厨房

橱柜与餐桌,打造“U”型布局
橱柜布局为“L”型,
靠墙一面解决烹饪和洗菜的需求;
橱柜布局为“L”型,
靠墙一面解决烹饪和洗菜的需求;

另一面为高低柜组合,
高柜内嵌烤箱,上下为储物空间,
矮柜为操作台,配推拉抽屉储物,
被餐桌占据的部分,柜门在背面开启,
作为生活区的储物补充,设计非常贴心。
高柜内嵌烤箱,上下为储物空间,
矮柜为操作台,配推拉抽屉储物,
被餐桌占据的部分,柜门在背面开启,
作为生活区的储物补充,设计非常贴心。

升降插座带来了满满的科技感。

餐桌靠着的矮柜,柜门是假的,开启方向在对面。

门厅看向厨房。

高低柜的一边是过道,通往静区

橱柜详解图。
· 餐厅

餐桌椅的橘黄色系以及复古的造型,
柔化了整个空间硬朗的风格。
哪怕下班后的一杯清水,也是惬意。
柔化了整个空间硬朗的风格。
哪怕下班后的一杯清水,也是惬意。

餐桌椅的细腿造型,削弱了柜体笨重的印象。
· 卧室

延续简约的风格。
床体省去了笨重的床头,
转而由定制半高护墙板代替,
无论床品怎么换,都能与环境搭配起来。
床体省去了笨重的床头,
转而由定制半高护墙板代替,
无论床品怎么换,都能与环境搭配起来。

定制衣柜顶天立地,
严丝合缝。
把手精心选择了成品金属扣条,
既起到了拉直柜门板的作用,
也从视觉上带来了拉伸房高的效果。
严丝合缝。
把手精心选择了成品金属扣条,
既起到了拉直柜门板的作用,
也从视觉上带来了拉伸房高的效果。

主卧衣柜搭配床头板的详解图

床头柜一边为复古造型;

一边为简约造型,制造视觉冲突。


小套间为多功能,有办公桌,衣柜等。
· 卫生间

马桶上方的洗衣机,
从外观看上去,没有任何管线,
非常整洁。
想要实现这样的效果,
需要在水电改造阶段,
将上水和下水都埋到墙体里面,
需要提前规划好。
从外观看上去,没有任何管线,
非常整洁。
想要实现这样的效果,
需要在水电改造阶段,
将上水和下水都埋到墙体里面,
需要提前规划好。

灰色的墙地砖,
非常耐脏而且易于清理。
非常耐脏而且易于清理。
· 阳台


洗衣机和烘干机集中在了厨房旁边的小阳台,
洗衣晾晒一个空间完成。
而且晾晒衣服也不会像客厅阳台那样影响美观。
洗衣晾晒一个空间完成。
而且晾晒衣服也不会像客厅阳台那样影响美观。
· 合照

业主与设计师、工长合影
· 装修花费表

~版权归作者JORYA玖雅所有
~如需转载本文请联系“JORYA玖雅”账号
~如需转载本文请联系“JORYA玖雅”账号
更多推荐
发表您的看法…
目录
户型图
玄关
厨房
餐厅
卧室
卫生间
阳台
合照
装修花费表




评论 0