《西悦厨》寻一处有鲜花绿意的静谧,去治愈生活里匆忙的脚步
空间类型餐饮
面积180m²
花费50万以上
位置重庆市
风格 自然风
前言
在喧嚣城市里,寻一处有鲜花绿意的静谧,去治愈生活里匆忙的脚步,静静感受这一刻的闲暇时光,静谧安然,自由放松,给予生活一点仪式感的浪漫与愉悦。
放慢脚步,寻一处绿洲,感受美食带来的治愈时刻。
放慢脚步,寻一处绿洲,感受美食带来的治愈时刻。
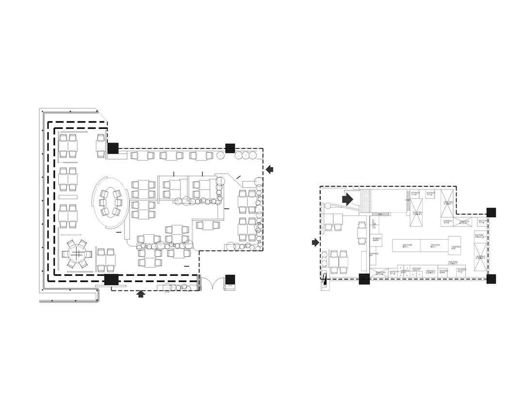
· 户型图

@合壹空间设计:此处是两个分离的空间,如何合理地分配用餐区与后厨区,以及对于餐桌椅的分布摆放,怎样能避免浪费,都是十分重要的。

@合壹空间设计:设计师根据业主的需求,将右侧小一点的空间设置为后厨区,极大地保证了后厨的操作空间,多出来的空间也能提供一个单独的用餐区,避免了空间的浪费。
左侧区域有两个入口,且都是靠近人流的方向,十分方便,整体动线流畅,有开放式的区域,也有相对更安静的单独用餐区域,动静分明,也让整体用餐环境更舒适。
左侧区域有两个入口,且都是靠近人流的方向,十分方便,整体动线流畅,有开放式的区域,也有相对更安静的单独用餐区域,动静分明,也让整体用餐环境更舒适。
· 客厅



@合壹空间设计:如云朵的灯光,层层叠叠,经过过滤的光影,柔软而梦幻。



@合壹空间设计:有鲜花有绿叶也有云朵,在一片绿意里用餐,在喧嚣城市里,找寻一片静谧的绿洲,去沉浸于此刻的放松惬意。






@合壹空间设计:用曲线以及弧形造型,展现出空间的柔和力,曲线的延伸,让空间的线条更流畅,随处可见的绿意,在高低错落中,自由舒展。
· 餐厅



@合壹空间设计:弧形的曲线空间,留出一隅的静谧,给予顾客一个松弛且自然的用餐氛围。




@合壹空间设计:靠近玻璃护栏的一侧,更开阔更明亮通透,用整棵的绿植来作为不同用餐区的分割,自然和谐。放松下来,围聚在一起,享受这宁静自由的用餐时刻。
更多推荐
发表您的看法…
目录
户型图
客厅
餐厅



评论 0