120㎡绝美梦幻暖白,增亮显大,巧用石膏线
户型三室
面积120m²
花费30~50万
位置北京市
风格 现代、北欧、简约、现代简约、自然风、原木
前言
我们是通过老客户介绍认识的。起初,我见到了男业主,我们进行了简短的面谈,并参观了施工工地以查看设计还原度。直到施工开始时,我才见到了女业主,期间我们一直在线上沟通。由于恰逢疫情,整个过程耗时近一年。女业主非常漂亮,男业主非常帅气,他们的外貌与审美都非常出色。
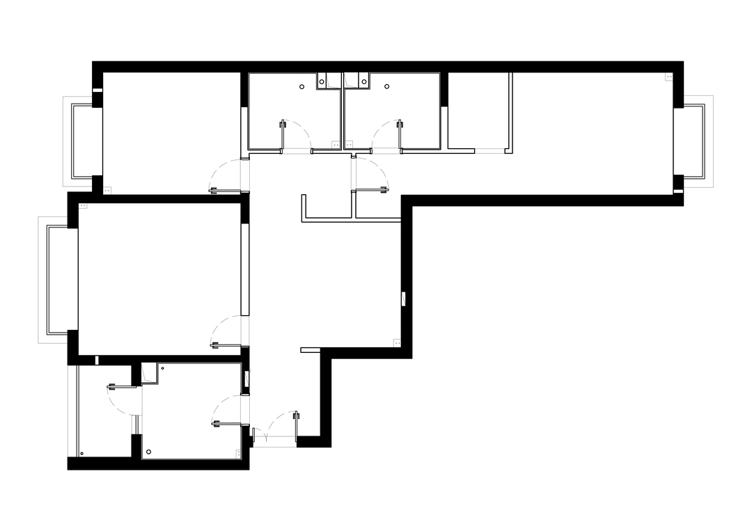
· 户型图

需要解决的问题:
1. 需要三个卧室。
2. 客餐厅光线明亮。
3. 需要一个衣帽间。
1. 需要三个卧室。
2. 客餐厅光线明亮。
3. 需要一个衣帽间。

解决问题的方法:
1. 拆除原先房间的隔断,把次卧放在右下角的位置,次卧用玻璃砖、玻璃推拉门,来增加卧室的采光和通风。
2. 原先卧室就有衣帽间的位置,重新规划了主卧、衣帽间、两个卫生间的尺寸,使得用起来更加的便利合理;
1. 拆除原先房间的隔断,把次卧放在右下角的位置,次卧用玻璃砖、玻璃推拉门,来增加卧室的采光和通风。
2. 原先卧室就有衣帽间的位置,重新规划了主卧、衣帽间、两个卫生间的尺寸,使得用起来更加的便利合理;
· 玄关

出门必备!全身镜,美妆整理神器!它不仅可以让你打理仪容仪表,还能为空间增色哦!镜子的魔力,让空间瞬间延伸,仿佛打开了一扇神秘的窗户。在特定角度观察,更能发现空间的介入点。

门洞 + 门套 = 完美收口,清晰界限,美观加分!白色洁白如雪,搭配鱼骨木地板,干净又温暖的感觉。别致的柜门造型,不仅实用,更是装饰艺术!审美,一步到位!

这是一个非常巧妙的玄关设计!白色的大门内外双色处理,不仅增加了防盗门的美观度,而且门套直接延伸到顶部的设计提升了整体空间的视觉高度。对于不能做一门到顶的情况,这样的处理确实是一个很好的参考方法。左边柜子的功能设计也非常实用,衣柜、鞋柜、换鞋凳的组合,通过调整厚度和高度,让不同功能的部分更加协调,并提供了一个舒适的换鞋区域。这样的设计不仅实用还兼具美观,简直就是完美的家居方案!
· 客厅

还别说这个角落看着有种咖啡厅的感觉,中古的配色,英文的抱枕,加上绿植的搭配,小资的生活悠哉游哉。我们把暖气片放在了窗户底下,巧妙地弱化了它的视觉感,保持了空间的美观和舒适度。这样的设计真是太巧妙了!

安装百叶窗不仅增加了空间的简洁度,还可以根据需求调节不同的光照角度和进光量,确实是实用又美观的选择。飘窗上的定制垫子不仅为客厅增加了座位,也为整个空间增添了舒适的环境。而一高一低的茶几则增加了区域的层次感,地毯的存在也能增加围合感,为空间带来更温暖、舒适的氛围。

墙上的石膏线作为简单的背景装修,增加了层次感,又不显突兀,为整个空间带来了背景区域的美感。沙发侧面的内嵌式储物柜一个极其巧妙的设计,不仅美化了沙发区域,还提供了方便的储存空间。将弱电设备和这块区域所需用品放在里面,确实让空间更加整洁和有条理。

作为设计师本人兼任模特,为空间内的生活场景展示增添了独特的个人风采。挪开地毯和茶几,留下一片宽敞的活动空间,为小朋友的游戏和健身提供了理想的场所。这样的设计不仅能展示空间的多功能性,还能为大家带来更多的活动乐趣和舒适体验。真是一个聪明又实用的创意,让空间更加灵活,适应不同的生活需求!
· 餐厅

餐厅,最百搭的空间,吃饭、办公、聊天,应有尽有。曾纠结各种尺寸款式,追求流行的吧台+餐桌布局,预算、尺寸都要考虑。最后找到了一款实木老木头感觉的餐桌,真心满意!关于墙面,仍在寻找喜欢的装饰品挂画,目前空着。不过没关系,看到喜欢的再补上!
· 厨房

橱柜的款式有些像宜家的款式,也像北欧的一些厨房,墙面贴了小砖,我们也看过那种例如300*600规格的砖,砖的造型就是一片片小砖拼接在一起的效果,但是觉得细节感还是没单独的小砖好,虽然买砖和贴砖工时都会更贵,但是从美缝以及砖本身的质感来说会更好一些。橱柜的台面用了实木做台面,市场上做橱柜定制的都没有木头台面,我们是另外找卖木头的厂家定制的,之前也了解过木纹岩板,成本高,而且触感还是和木头的不一样。
· 走廊

过道有种中转站的感觉,右边大大的木头是卫生间的门,做成了幽灵门的形式,隐藏轨道,没有顶面的吊轨和地面的地轨,显得很简洁大方。
· 儿童房

公主的房间不一定是要很卡通,也不一定要像欧美电影里面那样城堡般的房间,像我们这种用一些细节去体现也是可以的,比如说顶面的石膏线就很公主,床以及床品也很公主。
· 卧室

进门后,左手边的墙面贴了石膏线,与床头背景墙形成一个统一的面,衣帽间的门也是做了与石膏线相呼应的造型。

石膏线是一个便宜又容易出效果的材料,又有些轻奢的感觉在这里。衣帽间和主卧的墙体用玻璃砖作为隔断,让卧室也有一个小亮点。开关插座也是很精细的计算好尺寸,卡在了石膏线之间。壁灯、床头、床都是木质感的元素,中古的感觉。

逆光拍摄黄昏,别有一番风味。可见百叶窗带来的光影效果还是很奇妙的。而且没有窗帘那种厚重感,更符合我们想要简洁的效果。
· 卫生间

奶油风的卫生间,搭配环氧采砂的美缝,能够尽量弱化缝隙的存在,倒也没网上说的那么夸张完成缝隙消失术,现场看还是能够看到的。也有一些仿微水泥的效果,和外面简洁的感觉一致。没有那么的奶,但是又挺温馨的。壁挂马桶的上方也没浪费空间,做了一个防水的储物柜进行收纳补充。
更多推荐
发表您的看法…
目录
户型图
玄关
客厅
餐厅
厨房
走廊
儿童房
卧室
卫生间



评论 0