NO.19
户型三室
面积188m²
花费50万以上
位置上海市
风格 现代、现代简约、轻奢、意式极简
前言
上海前滩烫金地段的精装修改造,我们在保留原本大致格局的前提下做了一些微小的处理,通过一条中轴线,将空间切分出动区与静区,我们利用这条中轴线展开设计调整,用三扇“隐藏式移门”让整个公区空间做到全开的通透状态或全闭后各自独立的状态。
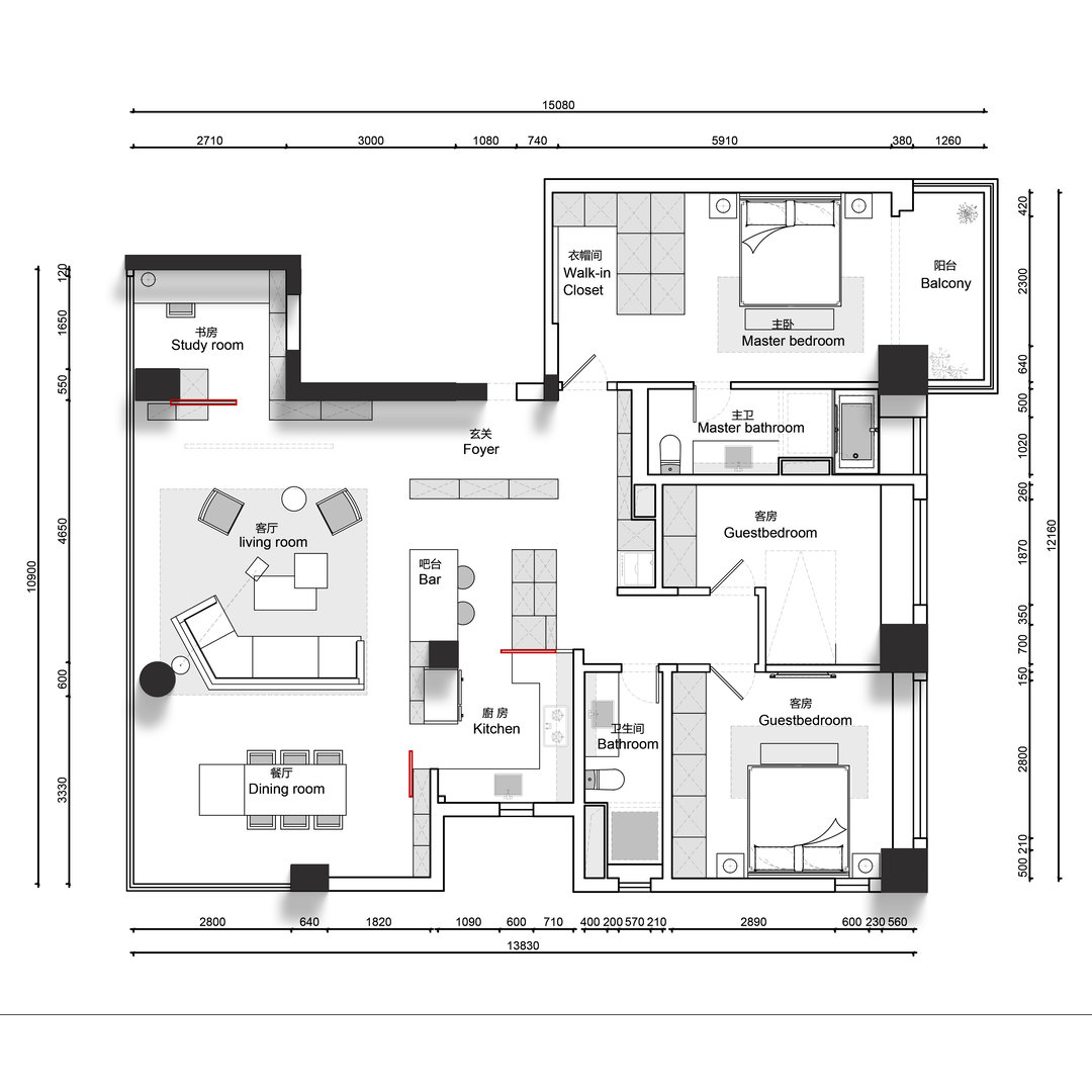
· 户型图


设计改动用三扇“隐藏式移门”让整个公区空间做到全开的通透状态或全闭后各自独立的状态。
厨房区域改动后,中轴线上的功能区变得更加灵动,从而带动整个空间更加灵动。
增加入户玄关后,动线被分流成两侧,延展出厨房的吧台与西厨功能,与客厅形成交互并与窗景互动,满足对着窗景早餐,小酌的感官体验,最大程度享受两面环窗户型带来的体验。
厨房形成了洄游动线的布局,动线贯穿西厨,客厅,餐厅,将公区串连在了一起。
厨房区域改动后,中轴线上的功能区变得更加灵动,从而带动整个空间更加灵动。
增加入户玄关后,动线被分流成两侧,延展出厨房的吧台与西厨功能,与客厅形成交互并与窗景互动,满足对着窗景早餐,小酌的感官体验,最大程度享受两面环窗户型带来的体验。
厨房形成了洄游动线的布局,动线贯穿西厨,客厅,餐厅,将公区串连在了一起。
· 玄关




以储物鞋柜作为玄关区隔,柜体间适当留缝来减少压迫感,当中的方框用来放钥匙并且可以“透景”的隐约看到内部空间,借鉴了中式园林的手法。
· 客厅









利用270度落地窗的户型优势,由厨房延展出的西厨空间,满足日常轻食及小酌,面向窗景及客厅能够更大程度的与客厅形成交互并与窗景互动。
入户玄关分隔出了十字动线,地面用不同材质的花砖区分,过渡场域。
入户玄关分隔出了十字动线,地面用不同材质的花砖区分,过渡场域。
· 厨房



通过两道移门区隔出厨房,第一道可以完全藏在归体内,第二道玻璃移门闭合状态下成为厨房隔断,打开时成为边上金属展示架的门扇,无论开启还是关闭状态下都有其功能。这样厨房可以随意在“开放式”和“封闭式”之间切换

· 餐厅



餐厅的位置毗邻客厅,能实现用餐时的交互。厨房新隔出的另一条动线也通往餐厅,这样也能更好的契合厨房与餐桌的用餐关系。
· 书房



为了使客厅拥有更纯粹的体验,通过一道银色的移门区隔出书房,银色矮柜后的移门平时打开状态下作为墙饰,闭合状态下隔离出独立书房。
· 卧室



卧室增加了独立衣帽间,睡眠区用木皮与布纹作为床头背景,整体深棕色的基调温润沉稳。
· 卫生间


卫生间我们选用带有肌理的墙地砖,配合窗外的自然光线很有质感。淋浴房无挡水条的无障碍做法对老人更友好,加大的淋浴区尺度考虑未来给老人护理洗浴的方便性。
更多推荐
发表您的看法…
目录
户型图
玄关
客厅
厨房
餐厅
书房
卧室
卫生间




评论 0