设计师的归心之宅,夯土色×旧物重拾,157㎡侘寂风变乡愁博物
户型四室
面积157m²
花费50万以上
位置永州市
风格 侘寂
前言
人生旅途崎岖修远,第一眼看见的世界就是生育我们的乡土。纵然阔别家乡,远赴异乡打拼多年,“探望家乡的人与物仍然是我提升幸福感很重要的一部分”,屋主兼设计师如是说道。这座由他亲手打造并命名为《归心》的宅邸,寄寓着“归期未定,风景如画,心之所向,即是归处”的浓郁故土情怀。
房子定位为老家的度假居所,无需为功能性过渡让步,设计的重点,转向艺术格调的彰显、故土情怀寄托与空间故事感的营造。得益于层高、双阳台的多重优势,整屋南北通透,空间大胆启用夯土色调与自然材质,奠定整屋侘寂怀旧的基调。
对故土的惦念与依恋,始终萦绕在屋主的心头,老家山上就地取材的茶室石材、玄关百年的立柱屏风、由曾经家用的扁担改造而成的挂饰和阳台的老式放映机……大量贴近屋主儿时生活的元素被搜罗搬运至新家,打造出一处旧物博物馆,妥善收藏着屋主对家乡的点滴回忆。
格局上,五居改四居,拿出一间次卧,作为品茗闲谈的悠闲茶室,局促封闭的厨房打开,餐厅空间融合,提供开敞舒适的用餐和下厨体验,为一家人难得的度假时光,更添几分从容、惬意。
房子定位为老家的度假居所,无需为功能性过渡让步,设计的重点,转向艺术格调的彰显、故土情怀寄托与空间故事感的营造。得益于层高、双阳台的多重优势,整屋南北通透,空间大胆启用夯土色调与自然材质,奠定整屋侘寂怀旧的基调。
对故土的惦念与依恋,始终萦绕在屋主的心头,老家山上就地取材的茶室石材、玄关百年的立柱屏风、由曾经家用的扁担改造而成的挂饰和阳台的老式放映机……大量贴近屋主儿时生活的元素被搜罗搬运至新家,打造出一处旧物博物馆,妥善收藏着屋主对家乡的点滴回忆。
格局上,五居改四居,拿出一间次卧,作为品茗闲谈的悠闲茶室,局促封闭的厨房打开,餐厅空间融合,提供开敞舒适的用餐和下厨体验,为一家人难得的度假时光,更添几分从容、惬意。
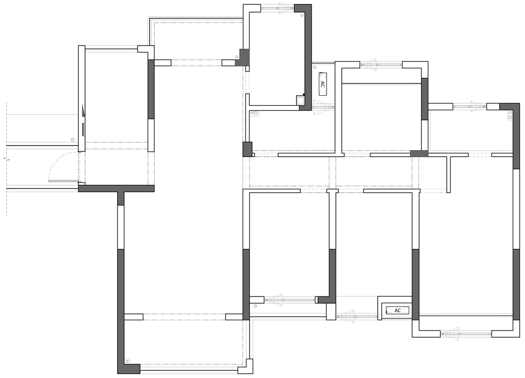
· 户型图

原始户型图

平面布局图 1、压缩进门的次卧面积,改设为开放式的榻榻米茶室,为家人提供品茗闲谈之所,屋主也可约上三五好友,谈天说地。 2、得益于进门次卧的改造,玄关获得更开阔的空间感,并设计木柱屏风隔断进门直白视线,给予归家隐私感。 3、打通餐厅阳台与厨房,打造开敞的餐厨一体空间,便于聚餐与待客。墙体拆改遗留的承重柱与岛台结合,弱化突兀感之余,增加更多收纳、操作空间。 4、重新分配次卫面积,摈弃淋浴功能,划分出小储藏间,卫浴干区外置,并挪入洗烘套间,布局干湿分离,一并实现空间利用率最大化。 5、主卧移除进门的隔墙,增加衣帽间功能,敲掉室内飘窗,扩大室内活动空间,主卫改装轻便玻璃移门,争取浴缸的安置空间,出入也更为宽敞便捷。
· 玄关

萦回着自然色调与古朴元素的门厅,率先宣告了整屋返璞归真的淳朴格调。得益于毗邻茶室的调整,门厅一改狭长局促模样,重拾开阔大气,入户感受豁然开朗。 #玄关 #隔断 #艺术漆

立面斑驳的立柱屏风,缓释了开门见厅的直白,引入内敛的归家仪式感。木柱历经百年沧桑,本已被弃置为柴火,屋主从农村的旧宅将它们淘捡拾掇出来,未经任何修饰甚至是油漆工艺打磨,以其天然自成的岁月底蕴,引出屋主“心之所向,即是归处”的思乡情怀。 #玄关 #屏风 #隔断

立柱细节。斑驳的痕迹,记录着世事变迁,也成为屋主心头萦绕不散的家乡记忆。 #屏风 #木质 #玄关

夯土质地的艺术涂料由墙及顶,模拟出乡村土地的自然朴实气息,给予归家游子一种踏实与慰藉感。黑色顶天立地高柜,包揽了玄关的琐碎收纳,也一并藏匿起暴露的电表箱,让空间归于整洁清爽。 #玄关 #艺术漆 #顶天立地柜

做旧的斗柜弥补了玄关过分的空旷感,内置的粗陶花瓶、摆件,也隐约可窥老家乡村的印记。台面上老式收音机,是特定年代的结婚必备物品,也是时代生活变迁的重要见证。玄关宛如微缩的旧物博物馆,存储着过往的老物件与屋主对儿时生活的追忆。 #玄关 #斗柜 #石墩

默立于斗柜旁的石墩,是独具一格的装饰,亦可作为换鞋凳使用。屋主在少年时期,便将其收集珍藏并保留至今,现下新家又赋予了其新的使命,在接触到石墩的某一刻,过往的点滴总会不断在眼前浮现,触及心灵,牵引思绪。 #石墩 #玄关 #边柜
· 茶室

人生是旷野而非轨道,无论是按部就班的生活还是空间布局,终归失之无趣,人也离不开精神角落的滋养,将进门的次卧改为清雅榻榻米茶室,在喧嚣的尘世,给自己留一处“世外桃源”,可以独处关照内心,也能与三五好友,小聚清谈,乐而忘忧。 #茶室 #榻榻米 #茶桌

传承东方美学,茶室以修身、静心为立意,舍弃矫揉繁复的装饰,以古拙自然的材质与温润肌理,营造古朴雅幽之境,气质出尘,见而忘俗。 #茶室 #石材 #榻榻米

茶室内的石壁墙,从老家的山上就地取材铺贴,天然石材独有的粗犷和纹理的生动感,让空间与屋主记忆中的家乡,产生更紧密的链接,来自大自然平和与治愈力,也悄然抚慰着快节奏都市精人内心的浮躁。 #石材 #茶室 #榻榻米

石材细节。#石材 #榻榻米 #茶室 #背景墙

一袭软帘,让茶室与玄关似隔非隔,历经岁月洗礼的石壁与木柱屏风,隔空对望,仿佛上演了一场时空穿梭之旅,关于过往的记忆,如潮水般涌来。 #玄关 #茶室 #石材

茶室采用局部照明与间接照明结合的方式,产生明暗、虚实的变化,适应多场景的氛围感营造的需要,有力增强了空间的视觉表现力。 #茶室 #木百叶 #石材

· 客厅

客厅着力于尺度与包容性的塑造,从而构建人与空间,人与物,物与物的和谐关系。层高与视野无遮的优势,赋予家充沛采光,大面夯土色的艺术涂料得以继续从容挥洒,地面适配以接近水泥地质感的灰色地砖,由玄关转入客厅,家居的主题风格延续不变,观感连贯不曾中断。 #客厅 #艺术涂料 #地砖

干净的平顶在嵌入式无主灯光源的加持下,进一步拉伸层高,扩大舒展空间,化解生活区的拘谨感,令人物的互动更为轻松舒畅。 #无主灯 #吊顶 #艺术漆 #客厅

软装作为“生活方式”的外在体现,通过色彩搭配、审美和实用需求的调和,赋予空间张弛有度的节奏感。大地色系的棕色、褐色依附皮质、木质与布艺等材质,对客厅加以修饰,局部穿插深沉的黑色,更添一份沉稳与神秘,引发居者对自然的贴近与依恋。 #客厅 #软装 #大地色系

细腻柔然、纹理自然的苯胺皮沙发演绎着复古腔调,比沙发稍浅两度的咖色羊毛沙发,敛去地砖的冷硬,为空间注入柔和感触,进一步彰显客厅层次。沙发背景墙删繁就简,一幅简单的复古小画,加以氛围灯带的装点,便足够撩人心弦。 #客厅 #沙发 #地毯

立于沙发后的丹仙鹤祥云屏风,汲取中式美学与隔断设计精髓为一体,填补客厅过分的空白,高饱和度的靛蓝底色,蕴含着高贵冷艳气质的同时,也成功激发出空间的活力感。 #客厅 #屏风 #茶几

与家人的云南之旅中,偶然发现的木联,让屋主如获至宝,如今它也被妥善安置于客厅角落处,与中古屏风产生和谐的化学反应,时时提醒着屋主在旅途中的那份心境与感受。 #屏风 #木联 #装饰品

寻于山野的奇石,在大自然鬼斧神工的雕琢之下,形似一只犀牛,一只蜜蜂,也像极了一只狗,为客厅增加了诸多野趣。 #立柱 #屏风 #客厅

由做旧的木头,刀刻斧凿而成的茶几,视觉张力爆棚,每一道凿痕,都藏着一段不为人知的故事,至此,器物本身,跳脱出单一置物功能的设定,也是惊艳空间的艺术装置。 #茶几 #客厅 #木质

沙发另一侧的立柱,也是屋主在云南之旅中收获的藏品,与亚麻灯罩创意性结合,组成一盏世间独一无二的落地灯,为客厅增色良多。 #沙发 #落地灯 #客厅

夜幕四合,落地灯被点亮,犹如一颗黑夜中冉冉升起的启明星,灯光惠及的场域,围合成舒适温馨的一角,足以慰藉身心,安放灵魂。 #客厅 #落地灯 #灯光

简约的电视背景墙,贯穿客厅与阳台两个空间,横向延展着视线,视觉开阔大气。地台柜与黑色悬空柜以半包围的形式,勾勒出造型的立体感,又兼顾了客厅的储物需要。 #客厅 #电视背景墙 #悬空柜

悬空柜底部,均匀码放着一排木桩,宛如屋主记忆里家乡的柴火垛,对乡土的眷念,贯穿整屋设计始终。 #客厅 #悬空柜 #木桩

层高的优势,令客厅享有俯瞰整个城市的开阔视野,全景式落地窗,毫不吝啬的将窗外之景邀约入内,精心布置的艺术茶几与靠背椅,构建惬意的休闲角落,邀友相会、品茗闲谈,不失为人生一大乐事。 #落地窗 #茶几 #客厅

客厅阳台也不乏老物件的身影,由山东淘来的老式放映机,承载着屋主对农村露天电影热闹场景的回忆,机器仍能正常运转,并附带有一本工作手册,详细记录着当初放映的场地与场次,仿佛将屋主脑海中过往的岁月再次重现。 #客厅 #阳台 #放映机

看似古朴的阳台柜,实则是采用榆木老板,结合现代工艺,重新定制而成,既有着强大的收纳功能,又不失年代的厚重感。 #阳台柜 #收纳 #榆木
· 餐厅

双阳台的配置,让餐厅也拥有着与自然相通的窗口,伴随阳台与厨房的打通,空间尺度愈发开阔,视野也一并拓展,远处连绵的山峦与山脚下的乡村,定格成一幅隽永的山水画,俨然成为天然的背景装饰。 #餐厅 #开放式餐厨 #阳台

南北通透的设定,确保了餐厅与客厅对望视角,朗阔无阻,和煦的自然光从两侧阳台引入,为室内镀上一层柔和滤镜,如梭的光阴也在此间慢下了脚步,居者可以与亲友把酒言欢,欢聚一堂,从容享受悠闲度假时光。 #餐厅 #餐桌 #客餐厅一体

既是度假之所,免不了聚会宴饮,打开各自为政的厨房和餐厅阳台,化零为整,辟就全新开敞的餐厨区域。嵌合承重柱而延伸出的西厨岛台,提供更多操作台面与储物空间,让每一次的欢聚,都尽兴满意而归。 #西厨 #岛台 #餐厨一体

横阔岛台直面宽尺落地窗,临窗小酌、闲话,顿觉神清气爽,心胸舒畅。 #岛台 #餐厅 #落地窗

餐厅侧墙上立挂的细而长的尖头木,原是屋主老家挑柴的一根扁担,随着时代的变迁,它早已退出了日常生活的舞台,屋主偶然在柴火堆里瞥见其身影,旧物重拾,让它以另一种方式挥洒其价值,在这个家里不仅能看到时代的印记,也有着家庭的传承。 #餐厅 #墙饰 #餐边柜

圆是中国文化的一个重要精神原型,给予人们团圆美满的视觉联想,圆桌则是最具象征意义的团圆图腾,两者契合中国人内心深处的向往,木质支撑的石材圆桌,围拢起一室的圆满与相聚,成为链接家人情感的重要载体。 #餐厅 #餐桌 #餐椅


与柚木结合的草编餐椅,充盈着怀旧而复古的风情,而仅有的一把铸铁工艺的金属靠背椅,表达方式则更为粗犷直接,餐厅的设计语言同时具备内敛与直白两种不同属性,展现出空间的延展多面性。 #餐厅 #餐桌 #餐椅

抽象形态的金属吊灯,如秋日的枯蓬,突显饱经风霜的侘寂质感,将空间的格调再次升华。 #吊灯 #餐桌 #餐椅
· 走廊

衔接动静区的廊道左侧镜面折叠门后,是一个小型的储物间,用于存放家中的杂物,通透的材质与隶属同侧的次卫干区开放处理,保证了走廊的开阔自由。 #走廊 #镜面 #折叠门 #储物间

依托镜面的反射,行走于廊道之间,客厅乃至玄关的陈设,皆局部可窥,增加了空间的互动感,也让平淡无奇的走廊,获得更多装饰加持。 #走廊 #镜面 #艺术漆
· 卧室

肌理感艺术漆与木纹地板的搭配,延续到就寝区,主卧私密有序。放弃吊顶的设计,明装筒灯保留空间呼吸韵律与视觉设计感。伴随飘窗的纳入,主卧收获更广阔的采光面,光影交织,尽显静谧自在。 #主卧 #艺术漆 #无主灯

借由墙体拆改,主卧新增衣帽间功能,进阶功能配置更为齐全的套房之余,一并转移就寝区的收纳压力,打造沉浸私密的睡眠场域,在都市打拼,略显奢侈的安然入梦,却是老宅度假的生活日常。 #主卧 #衣帽间 #套房 #主卫

木质的温度与自然的触感,依然是主卧不变的主题,深邃的棕色落地床与床头柜,理所当然的凝聚空间的视觉焦点,以柔软俯身的姿态,承载着屋主日常的起居,让身心与天然纯粹的材质更为贴近,从而汲取力量与心灵的滋养。 #落地床 #主卧 #床头柜

米灰色纱帘揉碎阳光,洒落在斑驳的木地板上显现出独有的纹理,柔和且宁静。充满古拙气息的木质窗帘盒,与整屋的调性不谋而合,也暗含屋主对往昔乡村生活的追溯。 #主卧 #窗帘 #窗帘盒

透着年代感的木质斗柜,完成了床尾收纳与展示美感的统一。台面上老式的电视机,开机后满屏雪花点和耳畔传来的沙沙声,将思绪带回到那个没有电子产品的纯真年代,与小伙伴,三五成群下河游泳、抓泥鳅,累了就躺在竹椅上吹凉风……物质生活也许不甚富裕,但精神层面,屋主却倍感富足。 #主卧 #斗柜 #电视

床头背景不饰他物,唯有抽象黑白涂鸦画点缀其间,将东方美学的留白与平衡,拿捏得恰到好处,衍生出空间的无尽想象力。粗陶花瓶台灯,质感粗粝,与艺术漆包裹的纯粹主卧相得益彰,营造出简洁的朴素感。 #床头背景墙 #装饰画 #台灯
空间是建筑的实质,而光则是其灵魂,微黄的暖光从床头向四周晕染开来,沉寂的空间便有了家居的温度与灵魂。 #灯光 #床头灯 #斗柜
空间是建筑的实质,而光则是其灵魂,微黄的暖光从床头向四周晕染开来,沉寂的空间便有了家居的温度与灵魂。 #灯光 #床头灯 #斗柜

90年代以前农村常见的扶梯,摇身一变,成为主卧的挂衣架,作为度假的居所而言,软装陈设大可不必追求现代与时髦,反而是老旧的物件,更能营造屋主希冀的松弛感。 #主卧 #木梯 #斗柜
· 儿童房

在既定的怀旧基调之上,儿童房又呈现出童趣生动的一面,粉色床品与棉麻质地的床幔,契合小女孩的天真烂漫。木质吊扇灯,则透着十足的灵动与趣味性。鸡肋室内飘窗被移除,用于增加空间感与打造功课区,儿童房切实践行了美学与功能性统一。 #儿童房 #吊扇灯 #飘窗
· 其他

夯土色的艺术涂料,一如既往的晕染出怀旧的卧室底色,暖棕色皮质沙发床加入,为空间植入沉稳与质感。橘色复古挂毯,成为背景墙的唯一装饰,既保有旧日的印记,又令空间不至单调乏味。一门到顶的衣柜,配以古朴拉手,将现代与过往结合,碰撞出奇妙视觉体验。 #长辈房 #艺术漆 #挂毯 #床
更多推荐
发表您的看法…
目录
户型图
玄关
茶室
客厅
餐厅
走廊
卧室
儿童房
其他



评论 0