半价住就能别墅?买带地下室的房子!
户型两室
面积100m²
花费50万以上
位置北京市
风格 现代
前言
有了孩子之后,家如如麻,生活也一地鸡毛,不知道是多少父母的心声。
这对北京夫妻两,最近却重新找回二人世界:他们买了一个下跃户型,一楼精装房三世同堂,毛坯的地下室被我们改成了两人的小天地。
每天在一楼一家人一起吃饭聊天,辅导完孩子作业,两人就回到地下室找回自我:健身,游戏,看电影、玩音乐、阅读办公。
既有一家人共处的时间,也给自己的世界留有余地,这样的有娃生活,谁看了不羡慕。
这对北京夫妻两,最近却重新找回二人世界:他们买了一个下跃户型,一楼精装房三世同堂,毛坯的地下室被我们改成了两人的小天地。
每天在一楼一家人一起吃饭聊天,辅导完孩子作业,两人就回到地下室找回自我:健身,游戏,看电影、玩音乐、阅读办公。
既有一家人共处的时间,也给自己的世界留有余地,这样的有娃生活,谁看了不羡慕。
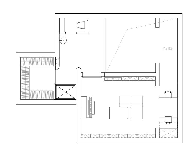
· 户型图

原始户型的地下室只有一层,完全毛坯的状态,采光全靠南向天井,白天室内进光量是很有限的。我们利用5.5米的层高优势,搭建出半层空间,在不影响采光的同时,尽可能将空间利用最大化,安排下业主夫妇想要的影音室、健身房、衣帽间、会客厅、阅读室等功能。

改造后-1F

改造后-2F
地下室想要住得舒服,关键在于采光、空气、温湿度、防水和污水系统的处理,基于这三点,我们也针对地下室空间做了有针对性的改造:
A.巧用天井,引光入室
作为地下室空间的唯一采光点,利用天井才是改善采光问题的正解。业主家的天井仅1米宽度,虽然只有“一线天”的采光,但利用好也能将自然光尽可能多的引进来。
B.暗装提升泵,完善地下污水系统
楼梯的主下水管通常是在地下一层的顶面,为了解决地下室的用水问题,我们在负一层暗装污水提升泵,经管道连通污水主管,解决日常生活污水的排放。
地下室利用层高优势搭建出半层空间后,我们在靠近会客厅的区域新增水吧台,水吧台柜内暗装污水提升泵。
C.电梯串联三层空间,精准拿捏“别墅感”
本案中,串联三层空间的不是楼梯,而是以家用电梯代替。
相比原本的楼梯,电梯的占地面积会更小,能够留出更多空间给到业主想要的娱乐休闲功能,同时,电梯也会更方便家里的老人使用,室内电梯有备用电源,断电也会自启动,加上地下一层是停车场,门外就是公用电梯和楼梯,非常方便。
改造完成后的地下室,早已感受不到之前的“地下感“,采光、通风和功能都得到极大提升,成为家中“别有洞天”的一处存在。
地下室想要住得舒服,关键在于采光、空气、温湿度、防水和污水系统的处理,基于这三点,我们也针对地下室空间做了有针对性的改造:
A.巧用天井,引光入室
作为地下室空间的唯一采光点,利用天井才是改善采光问题的正解。业主家的天井仅1米宽度,虽然只有“一线天”的采光,但利用好也能将自然光尽可能多的引进来。
B.暗装提升泵,完善地下污水系统
楼梯的主下水管通常是在地下一层的顶面,为了解决地下室的用水问题,我们在负一层暗装污水提升泵,经管道连通污水主管,解决日常生活污水的排放。
地下室利用层高优势搭建出半层空间后,我们在靠近会客厅的区域新增水吧台,水吧台柜内暗装污水提升泵。
C.电梯串联三层空间,精准拿捏“别墅感”
本案中,串联三层空间的不是楼梯,而是以家用电梯代替。
相比原本的楼梯,电梯的占地面积会更小,能够留出更多空间给到业主想要的娱乐休闲功能,同时,电梯也会更方便家里的老人使用,室内电梯有备用电源,断电也会自启动,加上地下一层是停车场,门外就是公用电梯和楼梯,非常方便。
改造完成后的地下室,早已感受不到之前的“地下感“,采光、通风和功能都得到极大提升,成为家中“别有洞天”的一处存在。
· 入户影音室

这个房子有两个入户口,地下二层的入户口连通地下车库,我们在入口位置新增盒体解决地下室的入户收纳问题,同时它也是入户影壁墙,作为空间的软性隔断,将入户会客厅分成两个功能区,柜子背面就是家庭影音室。

能看到入户客厅围绕柜子自然形成洄游动线,柜子背面也是影音室的电视墙。
这个空间是整个地下室最靠里侧的空间,为解决采光问题,能看到顶面我们用到了软膜天花,去模拟自然添光自上而下倾泻的效果
这个空间是整个地下室最靠里侧的空间,为解决采光问题,能看到顶面我们用到了软膜天花,去模拟自然添光自上而下倾泻的效果

电视墙对面就是卡座沙发区,这边的卡座巧妙利用了原本地下室的承重垭口,通过加宽处理后,形成长近3米的休闲沙发,满足一家人的影音休闲需求。卡座系统1米多的坐深尺度,使用者在观影时可坐可卧,舒适度更高。

将距离自然采光最远的空间给到影音室,更多考虑的是影音空间隔音密闭的功能性要求,但我们并没有完全舍弃自然采光,而是利用隔音玻璃在卡座侧边小面积从天井引光入室,这样在日常使用中这个空间也不会给人特别憋闷的感觉。


影音室是连通地下二层的水吧和会客厅的,通过电视墙侧边的这扇门即可到达。能看到,门板我们同样做了方块元素的造型设计,在细节上与水吧区的柜体门板相呼应。
· 会客厅


水吧台在负二层的中间区域,搭建完二层楼板并安装新风、中央空调等设备后,水吧区域的层高只有2.2米,我们在顶面利用大波浪的水波纹不锈钢钢板的材质特性,一方面可以形成光线的折射,为水吧区域提亮,另一方面通过镜面效果也能在视觉上有一个向上拉伸的效果。


负二层的会客厅区域是整个地下室采光最好的空间,虽然我们搭建了二层,但这边仍保留了5.5米的挑空,圆拱门洞造型自然衔接会客厅与天井区域,无形中也增强了天光的仪式感。


会客厅中,天井的自然光倾洒在侧边的花木小景间,足不出户,即可感受大自然的暖暖絮语。
· 健身区

以电梯代替楼梯间后,原本楼梯的位置给到了健身房,整个空间的立面用到了镜子,方便健身时观察健身姿势,同时镜面也有放大空间的效果。健身区以光线柔和的反光灯带人工补光,健身时不会很刺眼。
· 阅读办公区

从电梯上来,来到负一层的阅读办公空间,之类也是夫妇两人的精神角落。


空间内,两侧设置整墙的书柜,柜子最长一侧近5米,给夫妇两人的海量藏书预留了充足的存放空间,正中央安排岛屿沙发,方便两人随时随地阅读。

顶面利用圆弧穹顶造型,将书柜的高度控制在2.25米的合理高度,同时,穹顶在一定程度上也削弱了地下室空间的压抑感,让室内氛围既亲密舒适,又不显逼仄。
而穹顶搭配天际线性灯的漫反射光源,也能让阅读区的光线更舒适,为日常阅读带来更好的体验。
而穹顶搭配天际线性灯的漫反射光源,也能让阅读区的光线更舒适,为日常阅读带来更好的体验。


采光最好的位置留给了双人办公位,顶光更适合桌面办公。从日出之时到傍晚之前,这个区域都会有透过天井从高处洒下的莹润阳光,光影随时间流转,也能为办公区带来不一样的使用体验。
· 卫生间

阅读工作区对面就是负一层的卫生间,一层还有其他的卫浴空间,所以这边以简单的功能为主,仅保留了洗漱和马桶。这一层因为刚好在连通一层与负二层的夹层空间,管道会比较多,通过马桶间的体块结构将裸露的管道设备巧妙隐藏。
马桶间外侧我们也小面积的用到了水波纹板,搭配筒灯以及反光灯带人工补光。
马桶间外侧我们也小面积的用到了水波纹板,搭配筒灯以及反光灯带人工补光。
· 衣帽间

马桶间侧边就是新增的步入式衣帽间,既能作为一层生活空间的收纳补充,同时这里离电梯非常近,不论是从负二层的地库回家还是去健身房运动,都能方便业主在这边更衣使用。
更多推荐
发表您的看法…
目录
户型图
入户影音室
会客厅
健身区
阅读办公区
卫生间
衣帽间



评论 0