80㎡ 原地抢面积,3卧室,餐客厨卫还能超宽敞
户型三室
面积86m²
花费30~50万
位置北京市
风格 新古典、自然风
前言
小户型小到极处,纷飞的杂念、飘摇的浪漫,好似都没了容身之处,只剩下基本与实用。
难道小房子在满足功能后,真的不能兼顾审美?
带着这个疑问,我们今天来看一下新案:套内63㎡,不仅实现了三个卧室,客厅和厨房都很开阔,连卫生间都是分离式的,更可贵的是在温暖质朴的底色中,散发出自然的松弛感和舒适感,这种隐晦克制的观感也符合国人居住的含蓄美学。
难道小房子在满足功能后,真的不能兼顾审美?
带着这个疑问,我们今天来看一下新案:套内63㎡,不仅实现了三个卧室,客厅和厨房都很开阔,连卫生间都是分离式的,更可贵的是在温暖质朴的底色中,散发出自然的松弛感和舒适感,这种隐晦克制的观感也符合国人居住的含蓄美学。
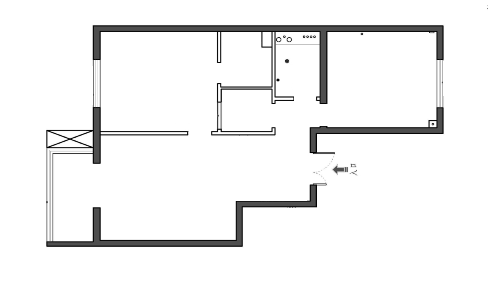
· 户型图

改造前,户型有几个缺陷:
1.位于一层,窗外树荫遮蔽,采光不佳。
2.单元门正对入户门,且室内没有玄关遮挡,开门见厅。
3.客厨卧各自独立,只有一间房,不足以满足三个独立的休息空间(一位老人、屋主夫妇、小朋友)。
第二居所的设计,业主夫妇希望营造不一样的居住体验,给孩子更多的陪伴和监护;以及老人小孩的需求,寝、食两大功能最为基本,需要认真对待。
1.位于一层,窗外树荫遮蔽,采光不佳。
2.单元门正对入户门,且室内没有玄关遮挡,开门见厅。
3.客厨卧各自独立,只有一间房,不足以满足三个独立的休息空间(一位老人、屋主夫妇、小朋友)。
第二居所的设计,业主夫妇希望营造不一样的居住体验,给孩子更多的陪伴和监护;以及老人小孩的需求,寝、食两大功能最为基本,需要认真对待。

小户型空间多功能使用,如何灵活安排朝夕功能,保证在不同时段合理使用,我们的做法是:
1.拆除非承重墙,将采光面连通起来,作为全家人活动的空间。
2.在入户处新建储物玄关,改变入户方向,改善心理体验。
3.用睡眠舱的形式合理安排三个休息空间。
1.拆除非承重墙,将采光面连通起来,作为全家人活动的空间。
2.在入户处新建储物玄关,改变入户方向,改善心理体验。
3.用睡眠舱的形式合理安排三个休息空间。

三个睡眠舱的布局,老人舱靠近卫生间,起夜方便;孩子舱居中,被包围更有安全感,结构延伸出学习区,功能齐全;爸妈的睡眠舱靠里,呈一字排布;三个睡眠舱都在迎光面,日出而作,入夜而息;
· 玄关

我们在入户处新建墙体,形成一个玄关缓冲区,四周做成储物柜和洞洞板,进门后可以在这里换鞋更衣,放置物品,再从另一个方向进入房间。此外,家政物品的收纳也有条不紊的安排在这里。

针对入户采光的问题,我们在玄关顶部设计了软膜天花,模拟自然光照,柔和明亮,让人一进门就心情舒畅。
· 客厅


穿过,玄关向左是客厅,向右是厨房。

客厅在采光优越的一侧,我们尽量将空间打开,形成一个视觉上宽敞通透的「多功能家庭厅」,它由几个功能区构成:

平时老人送完孩子,喜欢在家看电视,客厅的娱乐区多为老人使用,传统电视更符合他们的使用习惯。


旁边就是他们的睡眠舱,躺在床上也可以看电视。
老人的睡眠舱搭配了木百叶和透光不透影的纱帘,兼顾遮光、透气和隐私的需求。在睡眠舱内部有衣柜的空间。#卧室 #木百叶 #纱帘
老人的睡眠舱搭配了木百叶和透光不透影的纱帘,兼顾遮光、透气和隐私的需求。在睡眠舱内部有衣柜的空间。#卧室 #木百叶 #纱帘

适老化设计在睡眠舱靠近走廊的一侧,在抬手的高度做了一道弧形灯槽(同时也是主卧的通风口),既可以作为老人夜间去往卫生间必经之路上的照明,凹槽本身也可以作为扶手,在行走时支撑借力,却不会像真正的扶手那样刻意,既美观也尊重了老人的心理感受。


客厅中部是可供一家人共同使用的阅读区,旁边放置了沙发椅,取书方便,晚上打开落地灯,看书也不累眼。

小朋友的书桌也靠近书架,平时学习非常方便,茶余饭后大家也可以围坐在大桌子四周和沙发椅上一起看电视,给彼此高质量的陪伴。

钢琴区位于里侧,连接休闲阳台,光照充足。这里日常是小朋友练琴使用,钢琴居中,充分利用两边和上方的垂直空间做书架墙,对称的设计,给人以秩序的美感。


钢琴一侧并排设立了两个睡眠舱,可以供小孩和偶尔留宿的屋主夫妇使用。


爸妈舱细节
· 儿童房

儿童舱,充分利用了垂直空间。床位于树屋上层,靠近拱门一侧有单向透视镜子作为遮挡,从公共区域无法望见里面。

下层书桌与阅读区相连,可以一个人在房间内学习、玩耍,也可以和大人们一同坐在外面。


儿童房有专属的衣物收纳柜和绘本架,外部移门拉上,就是一个独立的小世界。


儿童房移门闭合时,便露出了面向走廊的柜体,可以作为家庭收纳的补充部分。
· 厨房

厨房是一个独立的方向空间,很符合业主一家人的生活习惯,原始结构无法更改,我们设计成餐厨一体,橱柜L形布局,餐桌在中间也可以作为台面的补充,老两口做饭时,孩子也可以在餐厅学习,彼此陪伴。

橱柜的设计,左侧是洗烘一体机和咖啡角的区域,连着嵌入式冰箱和蒸烤箱,电器柜的集合一定要在设计橱柜时考虑好尺寸问题。



电器柜的右侧依次是烹饪区—操作台和洗菜区,动线便利。

燃气热水器被隐藏在百叶柜里,非常整洁好看。
· 卫生间

并非只有彻底的分离式卫生间才是最高效的选择,根据现有条件,我们给这个家庭设计了一个独立的马桶间,和一个传统布局的卫生间。
更多推荐
发表您的看法…
目录
户型图
玄关
客厅
儿童房
厨房
卫生间



评论 0