境相作品 | 繁花
户型四室
面积173m²
花费50万以上
位置深圳市
风格 混搭、美式、法式
前言
当设计与生活的链接被一次次的打开,居住回归住所的质朴内核,而设计恰恰需要在生活之上发现潜藏的功能与心理诉求,以更契合当代生活习惯与审美视角的方式呈现。
以新古典主义风格去构思空间,在注重装饰效果的同时,用现代的手法和材质还原古典气质,将怀古的浪漫情怀与现代人对生活的需求相结合,使居所内具备了古典与现代的双重审美效果,完美的结合也让居者在享受物质文明的同时得到了精神上的慰藉。
以新古典主义风格去构思空间,在注重装饰效果的同时,用现代的手法和材质还原古典气质,将怀古的浪漫情怀与现代人对生活的需求相结合,使居所内具备了古典与现代的双重审美效果,完美的结合也让居者在享受物质文明的同时得到了精神上的慰藉。
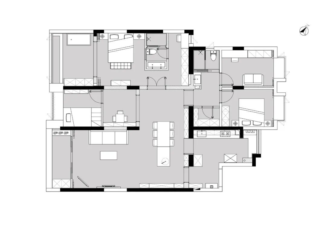
· 户型图

原始结构图

平面布置图
设计优化:1. 厨房入口改向,扩展入户处的空间感;2. 拆除厨房墙体,打造为开放式接入客餐厅,空间更开阔,功能性丰富;3. 餐岛一体提供丰富的就餐空间,并自然过渡餐厨,岛台避免了厨房直面客厅的尴尬局面;4. 主卧改变浴室入口朝向,避免浴室直面门口,保留了主卧年空间的隐私性;5. 主卧将浴缸放置阳台,充分利用阳台的休闲功能,释放了浴室空间。
设计优化:1. 厨房入口改向,扩展入户处的空间感;2. 拆除厨房墙体,打造为开放式接入客餐厅,空间更开阔,功能性丰富;3. 餐岛一体提供丰富的就餐空间,并自然过渡餐厨,岛台避免了厨房直面客厅的尴尬局面;4. 主卧改变浴室入口朝向,避免浴室直面门口,保留了主卧年空间的隐私性;5. 主卧将浴缸放置阳台,充分利用阳台的休闲功能,释放了浴室空间。
· 玄关

走进法式复古风的居住空间,仿佛置身于18世纪的住宅,开阔的十字穹顶搭配水晶吊灯,复古花砖一路指引,每一个细节都仿佛在诉说着历史的故事。这样的环境让人仿佛穿越到了过去的时代,感受到了浓厚的文化底蕴。
Every detail seems to tell the story of history. Such an environment makes people feel as if they have traveled back in time to a bygone era and feel a strong cultural heritage.
Every detail seems to tell the story of history. Such an environment makes people feel as if they have traveled back in time to a bygone era and feel a strong cultural heritage.
· 客厅



客厅选用图案繁复的屏风作为沙发的背景板,打造出庄严感。欧洲法式的优雅与古典,同东方传统文化的温馨、典雅相结合,中西文化的碰撞,总能产生一种别样的韵味,令人沉醉。
The elegance and classicism of European French style are combined with the warmth and elegance of oriental traditional culture, and the collision of Chinese and Western cultures can always produce a different charm and make people intoxicated.
The elegance and classicism of European French style are combined with the warmth and elegance of oriental traditional culture, and the collision of Chinese and Western cultures can always produce a different charm and make people intoxicated.


柔软的白色沙发搭配花纹繁复的地毯,枫叶色丝绒沙发侧立一旁,不同物质在空间内穿插,时间变换,光影升温,空间沉浸于柔光散射下的层次渐变,演绎现实与浪漫交织的生活剧场。




一个华丽的墨水大理石壁炉与一个黑色的铸铁炉形成鲜明对比,壁炉架上倚着一面传统的镜子,古典花瓶扩展了壁炉的装饰,中西形式在空间中再一次进行神交。
An ornate inked marble fireplace contrasts with a black cast-iron stove. A traditional mirror leans on the mantelpiece, classical vases extend the decoration of the fireplace, and Chinese and Western forms are once again intertwined in the space.
An ornate inked marble fireplace contrasts with a black cast-iron stove. A traditional mirror leans on the mantelpiece, classical vases extend the decoration of the fireplace, and Chinese and Western forms are once again intertwined in the space.
· 厨房

厨房延续餐厅的色调,L型深蓝色橱柜搭配黑白复古花砖,把电影里的复古搬到了生活中。让空间不沉闷又好打理,摇身一变,便是电影里的主人公。
Brought the retro from the movie to life. Let the space not be dull and easy to take care of, and turn it into the protagonist of the movie.
Brought the retro from the movie to life. Let the space not be dull and easy to take care of, and turn it into the protagonist of the movie.
· 餐厅




墙面摒弃了过于复杂的线条、装饰、纹理,只采用经典的PU线条和文艺绘画,完美地展现了新古典主义风格。高雅的底蕴、开放的姿态、尊贵的精细,打造沉浸式的生活氛围,回归家的本真。
The wall abandons overly complex lines, decorations, and textures, and only uses classic PU lines and literary paintings to perfectly compromise the neoclassical style.
The wall abandons overly complex lines, decorations, and textures, and only uses classic PU lines and literary paintings to perfectly compromise the neoclassical style.



借助原户型结构,将厨房与客餐厅空间打开,客餐厅之间“独立且连贯”,塑造双拱门给予空间结构严密感,多拱门所形成的视觉体系做空间区隔和形式感的建立。餐厅空间通透大气,一体式的布局设计让交流动线更加流畅。
The restaurant space is transparent and atmospheric, and the integrated layout design makes the communication flow more smooth.
The restaurant space is transparent and atmospheric, and the integrated layout design makes the communication flow more smooth.
· 卫生间

黑白系经典的配色装进卫生间里,与浪漫的电影感氛围相伴。
当法式邂逅复古风,空间的质感开始变得醇厚,时光的魅力在暖调灯光下催化,大理石台面经典镌刻永恒,这里是不被时光遗忘的天地。
The texture of the space begins to mellow, the charm of time is catalyzed by the warm lighting, and the marble countertop is classic and engraved for eternity, this is a world that will not be forgotten by time.
当法式邂逅复古风,空间的质感开始变得醇厚,时光的魅力在暖调灯光下催化,大理石台面经典镌刻永恒,这里是不被时光遗忘的天地。
The texture of the space begins to mellow, the charm of time is catalyzed by the warm lighting, and the marble countertop is classic and engraved for eternity, this is a world that will not be forgotten by time.


主卧内的浴室倾情演绎《红与黑》,热烈红与沉静黑相互碰撞,大理石与黄铜的触感与丰富的面料结合,阐述了优雅的生活的日常。
Warm red and calm black collide with each other, marble and brass touch and rich fabrics combine to illustrate the elegance of everyday life.
Warm red and calm black collide with each other, marble and brass touch and rich fabrics combine to illustrate the elegance of everyday life.
· 卧室


法式的仪式感同样来自这一扇双开门,推开后,入目处所见一副国画,进一步延伸了西式形与中式意。这面墙恰好隔绝了外部视线,保留了空间的隐私性。
Once again, it weaves Western shape and Chinese style. This wall is cut off from the outside and retains the privacy of the space.
Once again, it weaves Western shape and Chinese style. This wall is cut off from the outside and retains the privacy of the space.




主卧内通铺人字拼木地板,相对客厅来说,卧室内形式较少拘束,且自由平和。复古红丝绒的床头与窗帘带有浓郁的宫廷色彩,优雅的格调带着真实的古朴和原味的典雅。
The antique red velvet headboard and curtains have a strong court color, and the elegant style carries the real simplicity and original elegance.
The antique red velvet headboard and curtains have a strong court color, and the elegant style carries the real simplicity and original elegance.




编织斗柜与铃兰花壁灯抒发对理想世界的热烈追求,室内营造一种可诗可梦的氛围,用法式的优雅和慵懒,开启一场绮丽的梦,安放生活的诗意和疲惫。
Create a poetic and dreamy atmosphere, use French elegance and laziness, open a beautiful dream, and place the poetry and fatigue of life.
Create a poetic and dreamy atmosphere, use French elegance and laziness, open a beautiful dream, and place the poetry and fatigue of life.


阔绰的阳台运用飘窗的休闲属性打造出主卧内的另一个松弛天地,宽大的窗户提供了充沛明亮的光线,无论是自然风景或是斗转星移,白天与黑夜都各有滋味。
The large windows provide an abundance of bright light, whether it is a natural scenery or a starry view, day and night.
The large windows provide an abundance of bright light, whether it is a natural scenery or a starry view, day and night.
· 书房

老人房通过丝绸红色的布艺窗帘和家具,丰富空间的参次。
The elderly room enriches the space with silk and red fabric curtains and furniture.
The elderly room enriches the space with silk and red fabric curtains and furniture.
· 儿童房

儿童房选择了更具有安抚力的奶白色与淡粉色,缓和情绪。设计选择了上下床,下方可留出孩子玩耍的空间,便也是亲子区;楼梯脚踏皆具备收纳功能,收纳孩子的玩具;床边的挡板设计进一步保证了孩子的安全。一切都以柔软的形态呈现,给孩子创造满满的安全感。
Everything is presented in a soft form, creating a full sense of security for children.
Everything is presented in a soft form, creating a full sense of security for children.
更多推荐
发表您的看法…
目录
户型图
玄关
客厅
厨房
餐厅
卫生间
卧室
书房
儿童房



评论 0