《契栖》心有所契,爱有所栖
户型三室
面积178m²
花费50万以上
位置重庆市
风格 简约、现代简约
前言
家,是生活的容器,也是心灵的归港。在风格趋同的装修潮流中,如何寻得一处独属自己的质感空间?
让心有所契,爱有所栖。
让心有所契,爱有所栖。
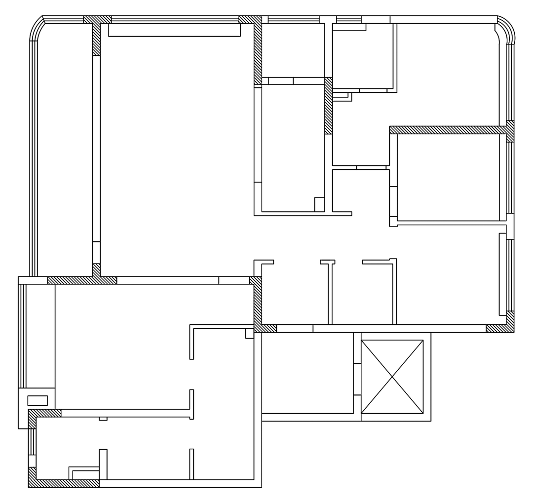
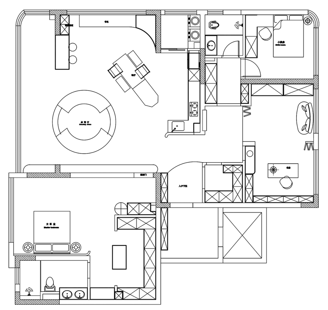
· 户型图

@合壹空间设计:原始结构分析:
1.区域划分模糊,空间利用单一;
2.动线迂回,活动易拥挤;
3.角落闲置,收纳不足;
4.缺乏过渡区域,功能单一。
1.区域划分模糊,空间利用单一;
2.动线迂回,活动易拥挤;
3.角落闲置,收纳不足;
4.缺乏过渡区域,功能单一。

@合壹空间设计:空间改造:
1.客厅、餐厨、卧室、卫浴明确分区。会客、休息、生活互不干扰,实用性拉满;
2.生活动线超丝滑!从入户到客厅、餐厨再到卧室,流畅不绕路,居住体验飙升;
3.客厅增加环形沙发区,餐厨嵌入收纳柜体,连边角都设计储物区!空间利用率满分;
4.增加玄关隔断、卫浴干湿分离,还规划独立办公和临时休闲区!每个细节都戳中居住痛点。
1.客厅、餐厨、卧室、卫浴明确分区。会客、休息、生活互不干扰,实用性拉满;
2.生活动线超丝滑!从入户到客厅、餐厨再到卧室,流畅不绕路,居住体验飙升;
3.客厅增加环形沙发区,餐厨嵌入收纳柜体,连边角都设计储物区!空间利用率满分;
4.增加玄关隔断、卫浴干湿分离,还规划独立办公和临时休闲区!每个细节都戳中居住痛点。
· 玄关




@合壹空间设计:家中玄关,走廊的公区美感十足,每次归家,仿佛置身艺术馆。巧妙的不规则磨砂玻璃+构造柱,让家更具唯一性。独特的入户格纹地砖对比室内的奶油砖。小心思的划分开落尘区,每一处细节都体现着对品质生活的追求。
· 客厅







@合壹空间设计:客厅以柔和的浅米色为主调,一进入便让人感觉如沐春风。圆润的弧形米色沙发,宛如一朵柔软的云朵,搭配黑白撞色搭毯,瞬间提升时尚感。不规则形状的白色茶几上,摆放着书籍和香薰,营造出悠闲氛围。大面积落地窗将充足阳光引入,洒在梦幻帘和罗马帘上,光影交错。室内种上一颗大大的柠檬树,丰富了空间层次,既自然清新又不失利落感,尽显现代极简风的独特魅力。
· 卧室






@合壹空间设计:主卧室延续整体的温柔色调,床头的弧形设计别具一格,搭配米色同色系皮质大床,舒适又美观。透明展示架轻盈通透,黑色床头柜沉稳大气,二者搭配相得益彰。衣帽间深色百叶门,透着神秘。内置搁板可陈列包包配饰,收纳挂放分区合理,满足衣物存放需求 。化妆桌造型圆润,与整体风格呼应。搭配圆形镜子,时尚又实用。搭配同色系软包座椅,化妆体验舒适 与浅米色墙面协调统一,拱形门洞过渡自然,营造出简约大气又温馨的卧室氛围 。
· 书房


@合壹空间设计:书房通过拱形门洞与其他区域相隔,增添了几分艺术气息。书桌与书架相对独立,书架上整齐排列的书籍彰显着浓厚的文化氛围。值得一提的是,这里有个隐藏的“彩蛋”——镶嵌在柜子中的可拉伸床。不占用过多空间,在需要时又能提供舒适睡眠场所,完美兼顾了书房的工作与休息功能 ,实用性拉满。
· 厨房餐厅




@合壹空间设计:开放式的厨房和餐厅相连,浅米色橱柜简约大方,搭配黑色集成灶,既加大油烟吸取功能,又和橱柜色调形成视觉冲击,时尚感十足。中岛台既可用作烹饪操作区,也能充当早餐吧台。餐厅的黑色餐桌搭配简约餐椅,经典配色永不过时。餐桌上的鲜花和精致餐具,为用餐增添浪漫氛围,一旁绿植让整个空间更显生机勃勃。
· 卫生间


@合壹空间设计:走进卫生间,柔和满满氛围感。拱形的窗户和卫生间门造型与主卧室相呼应,磨砂玻璃的运用既保证了采光,又增添了朦胧美感 。悬浮式洗手台设计简洁,下方的开放格方便放置常用物品。台盆上方的大镜子,不仅满足日常洗漱需求,方便日常扫地机打扫。智能马桶的配备,提升了使用的便捷性与舒适度。淋浴区采用玻璃隔断,干湿分离,长虹玻璃的材质既保证了隐私,又让空间显得通透 。
更多推荐
发表您的看法…
目录
户型图
玄关
客厅
卧室
书房
厨房餐厅
卫生间




评论 0