包包的小确幸
户型别墅
面积178m²
花费50万以上
位置佛山市
风格 美式
前言
虽然是叠墅,但空间紧凑,业主希望设计上能合理利用空间,同时满足对家居风水的要求,希望自己所喜欢的美式的优雅与精致,通过空间表达自己对生活,满足自己审美的理想生活空间。
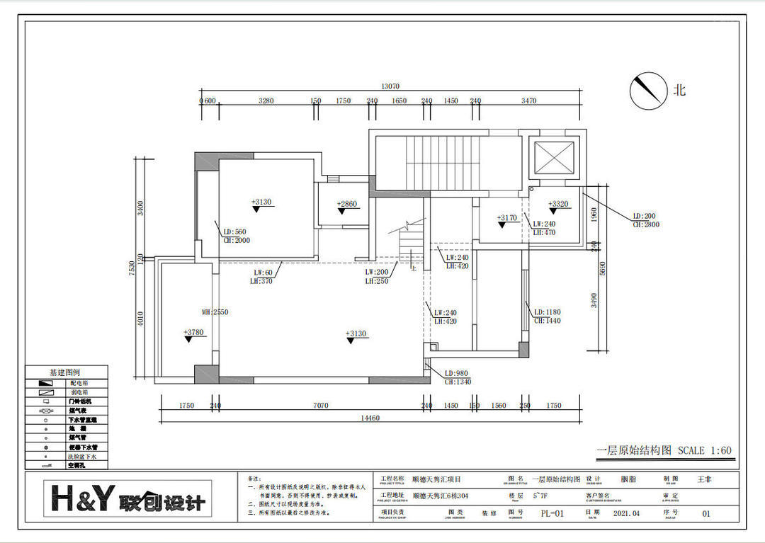
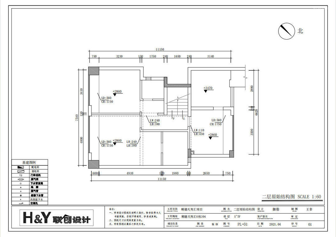
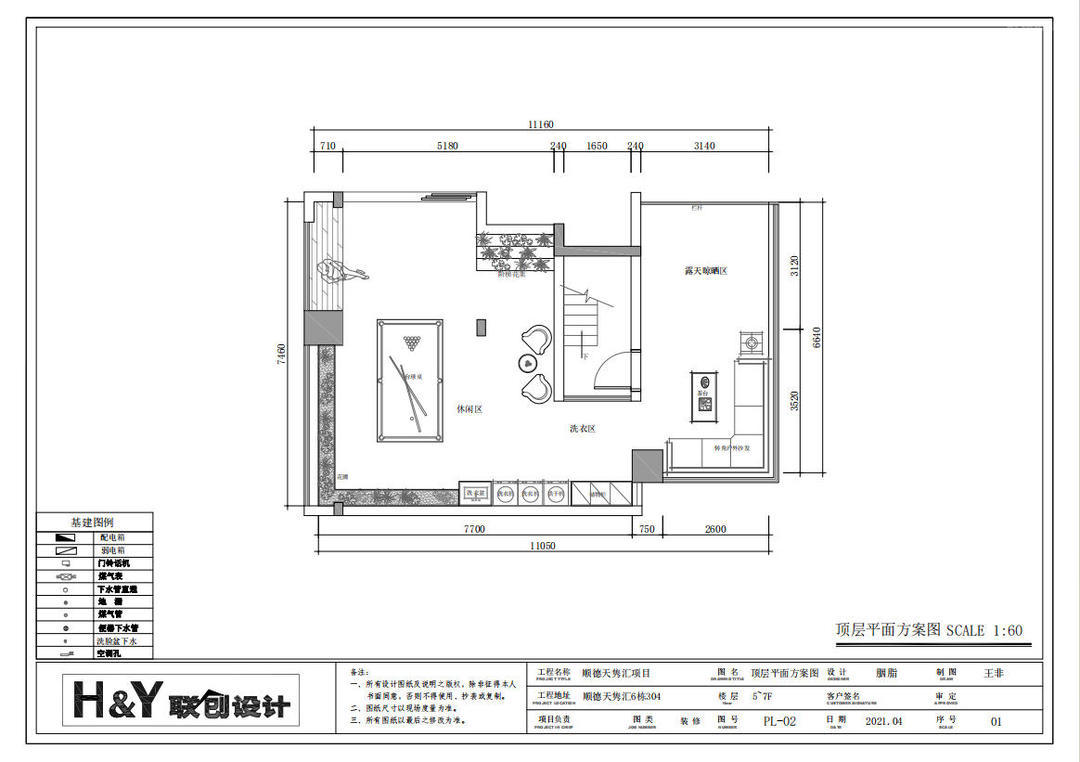
· 户型图



原户型问题:
厨房过小,希望增加西厨空间。
门厅希望有个过渡玄关,不想改楼梯,也不喜欢大开大合的空间,觉得这样的空间没有隐私性。
卫生间对着客厅,造成很多的不便,也不符合家居风水。
希望所有的床要靠窗边,这只是个人习惯问题。
一楼为客房,二楼要主人房,男孩房和夫妻二人共用书房空间希望二楼露台利用起来。
将洗衣房移至顶层露台空间。
客厅不要电视,希望轻装修,重装饰。
希望更多的费用花在材料,设备,软装上,提升整体的品质。
厨房过小,希望增加西厨空间。
门厅希望有个过渡玄关,不想改楼梯,也不喜欢大开大合的空间,觉得这样的空间没有隐私性。
卫生间对着客厅,造成很多的不便,也不符合家居风水。
希望所有的床要靠窗边,这只是个人习惯问题。
一楼为客房,二楼要主人房,男孩房和夫妻二人共用书房空间希望二楼露台利用起来。
将洗衣房移至顶层露台空间。
客厅不要电视,希望轻装修,重装饰。
希望更多的费用花在材料,设备,软装上,提升整体的品质。



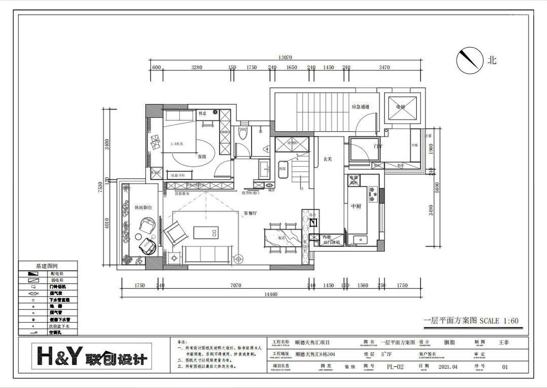
· 玄关


门厅过道处设计了玄关,增加美感的同时,让入户处有个缓冲的空间。
· 客厅





客厅面向卫生间的处理方式,利用客厅组合柜与隐形移动门的方式,解决了卫生间正对客厅的风水难题。
· 厨房


因厨房灶位的风水要求,为了能将油烟机有位置可放,封了三分之一的窗户,用作挂油烟机的位置。西厨不大,白色的双门冰箱与白色橱柜形成一个整体,更加协调。利用岛台的空间,做成了双面柜,也正好加大操作台面空间,靠餐厅处正好有个餐边柜的收纳。
· 餐厅



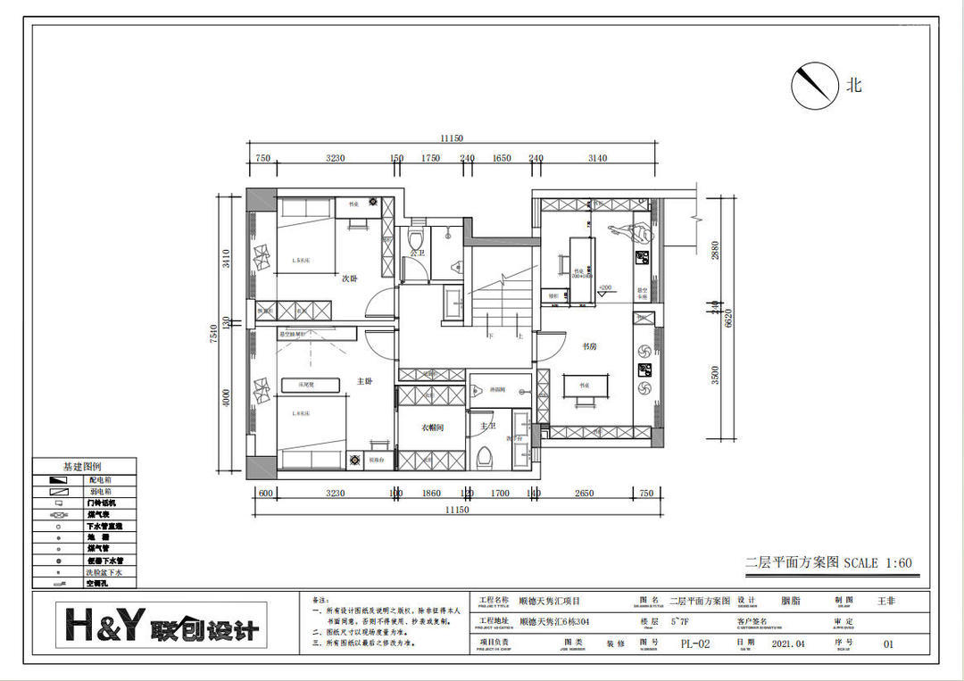
· 主卧




主人房衣帽间作为进主卫的缓冲空间,同时将主卫马桶调整了方向,不会正对主卧床。
· 书房


二楼露台与书房融入为一体,做成了男女主人共用的一个书房空间,过梁无法处理,正好做成了地台的方式。窗边还设计了卡座空间,工作累了,还可以此处休息一下。
· 卫生间

· 儿童房



更多推荐
发表您的看法…
目录
户型图
玄关
客厅
厨房
餐厅
主卧
书房
卫生间
儿童房




评论 0