家的锚点|经典永流传的海派老钱风
户型别墅
面积174m²
花费50万以上
位置上海市
风格 混搭、美式
前言
有一种牵挂叫做故乡。
女业主Stacy16岁便随全家去了美国,读书,工作,结婚,生娃……时光荏苒三十年,始终对故乡念念不忘。2008年购入的这套梧桐区老宅,始建于1933年,沉淀着老上海百年的优雅,却也因为时光的侵蚀,逐渐有了风霜,加之属于历史保护建筑,改造限制极多,难度极大,尽管一直怀有重新装修的愿望,却迟迟未能下定决心。
2023年底,通过美国的建筑师朋友,她辗转找到天马,沟通、了解、比较、决策,最终用全托管的方式,将这套寄托着乡情的老宅托付给了我们。之后的一年,便隔着太平洋,online看着新家一天天的变化,不出意外地,经历了重重困难,还好我们幸不辱命,如期交上答卷。交付仪式上,首次现身的男业主Foster给了设计、施工、供应商极高的赞誉和评价,虽然那天雨很大,但现场洋溢的幸福和快乐,让我们坚信,这就是天马存在的意义!
续写老洋房的故事,于我们而言,是一份荣光,更是一场挑战。因为它不仅是Stacy情感归宿的精神锚点,更是扎根于上海百年历史脉络中,独有的海派文化印记。正因为拥有如此深厚的底蕴,这栋老洋房即便空置已久,其所沉淀的独特魅力仍扑面而来。因此,我们秉持“修旧如旧”的原则,在完全尊重原有格局与风貌的基础上,以提升现代生活的舒适性与审美性为核心,将当代功能巧妙合理地融入空间之中,让每一层空间都承载着不同的使命。
女业主Stacy16岁便随全家去了美国,读书,工作,结婚,生娃……时光荏苒三十年,始终对故乡念念不忘。2008年购入的这套梧桐区老宅,始建于1933年,沉淀着老上海百年的优雅,却也因为时光的侵蚀,逐渐有了风霜,加之属于历史保护建筑,改造限制极多,难度极大,尽管一直怀有重新装修的愿望,却迟迟未能下定决心。
2023年底,通过美国的建筑师朋友,她辗转找到天马,沟通、了解、比较、决策,最终用全托管的方式,将这套寄托着乡情的老宅托付给了我们。之后的一年,便隔着太平洋,online看着新家一天天的变化,不出意外地,经历了重重困难,还好我们幸不辱命,如期交上答卷。交付仪式上,首次现身的男业主Foster给了设计、施工、供应商极高的赞誉和评价,虽然那天雨很大,但现场洋溢的幸福和快乐,让我们坚信,这就是天马存在的意义!
续写老洋房的故事,于我们而言,是一份荣光,更是一场挑战。因为它不仅是Stacy情感归宿的精神锚点,更是扎根于上海百年历史脉络中,独有的海派文化印记。正因为拥有如此深厚的底蕴,这栋老洋房即便空置已久,其所沉淀的独特魅力仍扑面而来。因此,我们秉持“修旧如旧”的原则,在完全尊重原有格局与风貌的基础上,以提升现代生活的舒适性与审美性为核心,将当代功能巧妙合理地融入空间之中,让每一层空间都承载着不同的使命。
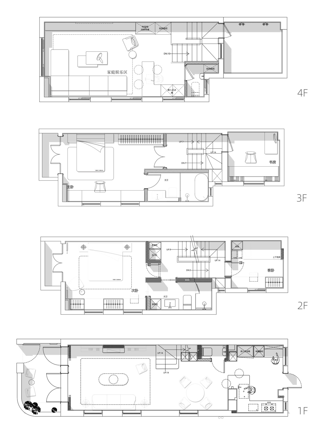
· 户型图

原建筑为一栋砖木结构的历史老洋房,呈长方形布局,共四层,总建筑面积为174㎡。历经近百年风雨且长期空置,内部原有构件均已严重损毁,因此在开展设计前,需对整体空间进行抢救性修复与结构加固。作为受保护的历史建筑,其内部所有梁体均须保留原貌,不可更动。于是,设计聚焦于在原有结构基础上,通过精细化的收纳设计与软装陈设融入巧思,使空间在修复重现历史风貌的同时,焕发新的生机,为后续使用注入可持续的生命力与情感张力。
居住需求:
● 一家三口居住,需要两个房间
● 业主长期住在美国,退休后会有较多时间回国居住,因此不要太多收纳空间
● 业主不在国内的时候可当民宿,需要一个可放高低床的客房,供多子女家庭使用
● 男业主喜欢看球,女业主喜欢唱歌、打麻将,一个综合性的家庭娱乐区不可或缺
居住需求:
● 一家三口居住,需要两个房间
● 业主长期住在美国,退休后会有较多时间回国居住,因此不要太多收纳空间
● 业主不在国内的时候可当民宿,需要一个可放高低床的客房,供多子女家庭使用
● 男业主喜欢看球,女业主喜欢唱歌、打麻将,一个综合性的家庭娱乐区不可或缺
· 客厅



客厅的展示墙以现代壁炉与多层展架构筑出Art Deco的美学场景,一幅抽象画将克制的彩度点染于黑白灰的基底中,以解构的艺术语言同复古楼梯形成对话。它们共同平衡了前卫与典雅、沉稳与浪漫,在冲突与和谐之间建立起视觉的静谧感。白色丝绒沙发、黑色细框窗扇、精心修复的老楼梯……每一处细节都似有故事溢出,悠久历史与美式风情在空气中缓慢流淌、低语。
客厅以素净的白色为主题,被完整保留的复古楼梯与欧式铁艺花窗成为时空的媒介,将人的思绪轻轻接引至百年前的上海。一股浓得化不开的怀旧气息弥漫其间,仿佛只要推开这扇窗,就能进入那段十里洋场美轮美奂的流金岁月。
客厅以素净的白色为主题,被完整保留的复古楼梯与欧式铁艺花窗成为时空的媒介,将人的思绪轻轻接引至百年前的上海。一股浓得化不开的怀旧气息弥漫其间,仿佛只要推开这扇窗,就能进入那段十里洋场美轮美奂的流金岁月。



从客餐厅过渡至厨房,两面弧形门洞以柔和的曲线弱化了原有承重柱的生硬感,不仅成为视觉上的焦点,更借助玻璃陈列柜与岛台的一体化设计,在动线的核心处落落大方地书写一笔轻盈与通透。它们不仅是结构元素,更是空间叙事中的诗意转折,让功能区之间交融汇聚,延续中有变化。
开放式厨房以一大片墨绿色为主调,这颜色既有温润的醇厚,又不失清透的张力。它仿佛自幽深林间悄然弥漫而出的一缕芳香,在复古的语境中自在流动,神秘中透出几分明朗,为整个空间定下静谧而高雅的基调。置身这个场域,仿佛仍可触摸到那未曾走远的、风韵独具的往日时光。
开放式厨房以一大片墨绿色为主调,这颜色既有温润的醇厚,又不失清透的张力。它仿佛自幽深林间悄然弥漫而出的一缕芳香,在复古的语境中自在流动,神秘中透出几分明朗,为整个空间定下静谧而高雅的基调。置身这个场域,仿佛仍可触摸到那未曾走远的、风韵独具的往日时光。


复古扶梯盘旋而上,经过整体拆解返厂修复的它,如同时空重叠的甬道,在垂直空间中延伸出柔和的曲率,让每一个踏步都伸出涟漪。
真正的生活剧情,在此悄然启幕。
真正的生活剧情,在此悄然启幕。
· 卧室




步入次卧,一个以纯白为基调的简约美式空间徐徐展开。白色云片灯轻盈悬浮,与黑色复古门窗形成清晰而克制的对话,既是对经典的致敬,亦是与现代的握手。家具的轮廓简洁而舒展,与艺术挂画默契呼应,都在细微处流露经得起时间打磨的质感。




空间中没有冗余的装饰,却始终萦绕着一种深邃而温润的文化气息。仿佛这里不只是休憩之处,更是一处能够安放思绪、与自我对话的场所。日光渐移,物影斑驳,每一刻的氛围都静谧如诗,柔软如梦境。
次卫通过地板同色柜体与次卧在视觉上串联,轻盈的黑白花砖跳跃又灵动,有一股青春懵懂的少女感。两扇黑框格子移门,让次卫既可以并入次卧,形成套间,又可以独立成公卫,方便二楼夹层使用,一举两得。
次卫通过地板同色柜体与次卧在视觉上串联,轻盈的黑白花砖跳跃又灵动,有一股青春懵懂的少女感。两扇黑框格子移门,让次卫既可以并入次卧,形成套间,又可以独立成公卫,方便二楼夹层使用,一举两得。


站在次卧门口俯瞰夹层空间,阳光透过窗格漫入,被细致切割成流动的光影,在白色弧形的顶面与木质地板和楼梯之间悄然游移。
· 主卧


推开那对黑色双开门,仿佛开启了一段静谧而深邃的时空旅程。主卧位于三楼,以黑色为主调,与其它空间的浅色系形成强烈而迷人的反差。这扇黑色双开门,是在原有门体基础上精心修复而成。我们保留了原始门框,以延续老洋房的结构记忆,同时一比一复刻了海棠玻璃,并更换了五金件。焕然一新的木门,如同一位沉默的叙述者,在开合之间低语着时光的重量。当阳光光透过窗格轻轻洒落,光影在黑色墙面与地面之间无声流转,整个场域弥漫着一种如梦似幻的静谧之美。



床头背景墙悬挂一幅宋代美学彩绘画,其极简淡雅的笔触与留白意境,为空间添了一抹东方的诗意与深远。白色床品、金色灯具与饰品,在香槟色光晕的温柔笼罩下,瞬间勾勒出高贵而宁谧的氛围。


与主卧相连的主卫,延续了“黑、白、金”的复古配色逻辑。黑白花砖与黑色立体墙面砖形成鲜明对比,金属五金、镜框及龙头则以复古金色点缀,精致而不失沉稳。洗手台采用白色大理石台面与黑色木质柜体相结合,镜前两盏壁灯发出暖黄光晕,进一步提升空间的层次与仪式感。在这个极具叙事感的卫浴空间中,现代舒适与复古美学交织并存,勾勒出一种经典而耐人寻味的生活场景。


顶面与墙面摒弃繁复,以同款地板延伸视觉的深邃感,模糊了空间的边界,仿佛踏入一个被时光精心包裹的胶囊。依窗而建的书柜与书桌,将天光与景致引入案头,思想与自然于此和鸣。
一侧的复古绿沙发是沉思与休憩的温柔角落,与抽槽墙面的细腻肌理对话,在光影变幻间演绎静谧的诗意。
一侧的复古绿沙发是沉思与休憩的温柔角落,与抽槽墙面的细腻肌理对话,在光影变幻间演绎静谧的诗意。
· 起居室



行至此处,便可知这栋老宅的每一层,皆被赋予鲜明的身份与功能。四层与一层同样完全对外开放,展现出强大的社交属性:一层用以宴请宾客、私密用餐,而四层,则是与至亲家人相聚的天地,交谈、歌唱、看球、打牌,在此卸下所有拘束,做最真实的自己。
斜顶下的原始木梁被悉数保留,并借助木质肌理的贴膜得以延续新生。它们一根接一根整齐排列,宛如时间的骨架,在光影间交织出岁月的回廊。整体采用沉稳的色调,烘托出宁谧而雅致的氛围,仿佛时光在此也变得柔软、缓慢。
斜顶下的原始木梁被悉数保留,并借助木质肌理的贴膜得以延续新生。它们一根接一根整齐排列,宛如时间的骨架,在光影间交织出岁月的回廊。整体采用沉稳的色调,烘托出宁谧而雅致的氛围,仿佛时光在此也变得柔软、缓慢。



休闲区的设计兼具艺术与温情,复古造型的家具与落地灯彼此呼应,在功能与美感之间取得精妙平衡。水吧区的红蓝配色,加重了空间里的娱乐氛围,让感知变得细腻,时光仿佛放慢了脚步,艺术与生活真正相融,共筑出一个超越时代、洋溢品味与格调的理想场域。

在这里,你能触摸到属于老上海的浪漫与考究,亦能感受到美式生活的放松与自在。它不仅仅是一个家,更是业主记忆的锚点,让他们的每一次归国,都仿佛从未离开过。
更多推荐
发表您的看法…
目录
户型图
客厅
卧室
主卧
起居室



评论 0