94㎡的昼夜变形记——从赛博夜店到治愈茧房
户型一室
面积94m²
花费50万以上
位置北京市
风格 现代
前言
深夜十点,业主小冯指尖划过手机屏启动「蹦迪模式」——这个家秒变「赛博夜店」:
岛台底部的软膜灯箱迸发紫红光浪,洗手台的镜面将吊顶上的6米光带延伸成长“隧道”,一旁的线灯发出红光,这一套迷幻的灯光,在不锈钢里衍射出虹彩,再播放一首电子乐,这个家比夜店还迷幻!
而十二小时后,同个空间正流转着另一幕剧本:晨光透过木百叶投下光栅,小冯夫妇窝在两张沙发里啜饮唤醒咖啡,昨夜迷幻的RGB灯带已隐入冲孔板后,只剩下马扎灯投出4000K的清醒白光。
这恰是当代都市青年的生活缩影:工作日积蓄的疲惫,在智能灯光编织的赛博剧场里肆意释放;周末的疗愈时刻,混凝土卧室又变身为安全感爆棚的茧房。
当94㎡老房借光影科技实现昼夜人格切换,家便成为容纳「发疯」与「安静」的双面容器——不出门的日子,照样在岛台上调酒蹦迪,在霓虹里打碟沉醉;而次日太阳升起后,一切狂欢痕迹已悄然归位,只剩奶牛皮地毯上流淌着木百叶切割的晨光。
这个家俨然已进化成主人生活方式的多面体——它可以用镜面收纳焦虑,用霓虹豢养情绪,用混凝土包裹疲惫。
岛台底部的软膜灯箱迸发紫红光浪,洗手台的镜面将吊顶上的6米光带延伸成长“隧道”,一旁的线灯发出红光,这一套迷幻的灯光,在不锈钢里衍射出虹彩,再播放一首电子乐,这个家比夜店还迷幻!
而十二小时后,同个空间正流转着另一幕剧本:晨光透过木百叶投下光栅,小冯夫妇窝在两张沙发里啜饮唤醒咖啡,昨夜迷幻的RGB灯带已隐入冲孔板后,只剩下马扎灯投出4000K的清醒白光。
这恰是当代都市青年的生活缩影:工作日积蓄的疲惫,在智能灯光编织的赛博剧场里肆意释放;周末的疗愈时刻,混凝土卧室又变身为安全感爆棚的茧房。
当94㎡老房借光影科技实现昼夜人格切换,家便成为容纳「发疯」与「安静」的双面容器——不出门的日子,照样在岛台上调酒蹦迪,在霓虹里打碟沉醉;而次日太阳升起后,一切狂欢痕迹已悄然归位,只剩奶牛皮地毯上流淌着木百叶切割的晨光。
这个家俨然已进化成主人生活方式的多面体——它可以用镜面收纳焦虑,用霓虹豢养情绪,用混凝土包裹疲惫。
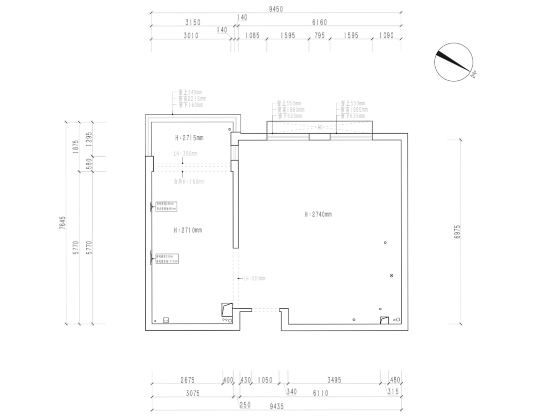
· 户型图

让我们切换到改造前,来看看这个家是怎么变成现在的样子。业主小冯和小陈以前就住在这栋房子里。
原户型是一个空间被切割细碎的小两居:
1.进门是11平被浪费的过道,去哪都要穿行这条走廊,动线迂回;
2.客餐厨混杂在一个面宽很窄的空间里,显小且收纳不足,杂物的外露导致空间更加混乱;
3.只有小两口居住,一间卧室长年闲置,沦为储物间,实际利用率不足30%;
4.单侧采光面也因为隔墙太多被限制,走廊基本是暗室;
5.卫浴干湿不分,早高峰洗漱/如厕冲突率100%。
原户型是一个空间被切割细碎的小两居:
1.进门是11平被浪费的过道,去哪都要穿行这条走廊,动线迂回;
2.客餐厨混杂在一个面宽很窄的空间里,显小且收纳不足,杂物的外露导致空间更加混乱;
3.只有小两口居住,一间卧室长年闲置,沦为储物间,实际利用率不足30%;
4.单侧采光面也因为隔墙太多被限制,走廊基本是暗室;
5.卫浴干湿不分,早高峰洗漱/如厕冲突率100%。

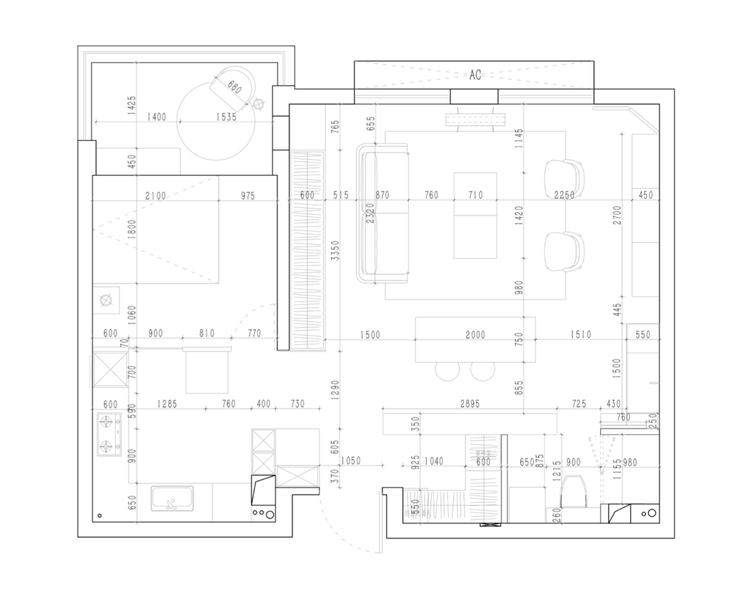
第一步,空间打开:
为了提高空间使用率,我们将所有可拆的隔墙全部打开,原来的两间卧室合二为一以后,客卧对调,将更方正更大的空间作为起居室。
为了提高空间使用率,我们将所有可拆的隔墙全部打开,原来的两间卧室合二为一以后,客卧对调,将更方正更大的空间作为起居室。

第二步,植入「收纳脊柱」:
入户植入一个不锈钢的异形柜作空间脊椎,一来分区,整合玄关、起居、卫浴三大空间,二来异形柜系统也能分别为玄关、岛台、卫生间、洗衣房分别提供收纳服务。
第三步,两间卧室改成客厅,构建早上、晚上的起居场景,植入岛台,满足早餐/调酒/DJ/办公四个场景切换;
入户植入一个不锈钢的异形柜作空间脊椎,一来分区,整合玄关、起居、卫浴三大空间,二来异形柜系统也能分别为玄关、岛台、卫生间、洗衣房分别提供收纳服务。
第三步,两间卧室改成客厅,构建早上、晚上的起居场景,植入岛台,满足早餐/调酒/DJ/办公四个场景切换;

第四步,原来的卫生间也优化成三分离,放下洗衣房。
最后一步,原客厅改成卧室后,中间加一道墙分出独立厨房,优化功能和动线,最终扩展为5大功能区(玄关衣帽间/起居客餐厅/三分离卫浴/独立厨房/沉浸卧室) 。
最后一步,原客厅改成卧室后,中间加一道墙分出独立厨房,优化功能和动线,最终扩展为5大功能区(玄关衣帽间/起居客餐厅/三分离卫浴/独立厨房/沉浸卧室) 。
· 玄关

为了更好的功能分区,优化动线,入户植入了一组不锈钢柜的作为空间的「收纳脊柱」:
功能上,为客餐、玄关、卫生间提供收纳服务。
造型上,中间的开放格调整了角度,特意设计成不规则三角形切割柜面,成为整个客餐厅背景的视觉焦点。
功能上,为客餐、玄关、卫生间提供收纳服务。
造型上,中间的开放格调整了角度,特意设计成不规则三角形切割柜面,成为整个客餐厅背景的视觉焦点。

它的背面丝毫没有浪费,异形柜的植入在入户这一侧形成U形衣帽间,左边三角形和顶部的梯形打开都是储物,下面一排封闭式鞋柜,底部悬空,常穿的鞋子可以踢入。中间设置了开放式鞋架,底部空隙可以塞下大型行李箱,之所以把漂亮的鞋子都摆在外面,对业主来说,也是提供情绪价值的一种方法。
另一侧的收纳柜也像机关一样,里面分别藏着次净衣区+扫地机器人的基站+转角柜里的电热水器。
除此之外,全部唯一的承重墙也做满了整面柜子,包括入户的桦木贴皮玄关柜和客厅整面收纳衣柜。
另一侧的收纳柜也像机关一样,里面分别藏着次净衣区+扫地机器人的基站+转角柜里的电热水器。
除此之外,全部唯一的承重墙也做满了整面柜子,包括入户的桦木贴皮玄关柜和客厅整面收纳衣柜。

桦木玄关柜60cm进深,柜体收纳垂直分区,顶层摄影器材→中层通勤包→底层电子产品抽屉。整个家的收纳系统集中且井井有条。
· 客厅

效果图白天和黑夜对比
两间卧室打通改成客厅,享有两扇对称大窗户的通透。
除了格局调整和完善功能以外,夫妇两也有自己的艺术追求,他们想装一个标新立异的家,希望是极致的反差 ,原始与未来的对撞,是一种原始未来主义的风格。
因此,我们通过灯光设计为起居室设计了白天和夜晚两种不同模式,来切换朴实纯真的生活以及电影里未来的赛博朋克感。
两间卧室打通改成客厅,享有两扇对称大窗户的通透。
除了格局调整和完善功能以外,夫妇两也有自己的艺术追求,他们想装一个标新立异的家,希望是极致的反差 ,原始与未来的对撞,是一种原始未来主义的风格。
因此,我们通过灯光设计为起居室设计了白天和夜晚两种不同模式,来切换朴实纯真的生活以及电影里未来的赛博朋克感。

白天,这里像被阳光泡透的咖啡馆——屋主陷在沙发里休憩,咖啡香混着奶牛皮晒暖的味道,百叶和纱帘的组合筛出柔和光栅,又遮挡对面的视线。

沙发特意没有选择统一的三人位,而是选了三个单人沙发LC3、Desede梯田沙发、Kar靠椅围合在一起,赋予空间更多变化的可能。
它们可以自由拼图,这种分散式的小体量家具,能减少小户型压迫感。
它们可以自由拼图,这种分散式的小体量家具,能减少小户型压迫感。



当固定大沙发让空间僵化,三个独立单人位便成了“空间积木”:晨起时是咖啡角,夜晚是DJ听众席,朋友来时围合成八卦阵地,独处时又化身各自的精神岛屿。用流动的布局,对抗固定的面积局限。

另一侧设置岛台,早上是早餐咖啡台,中午是餐桌,下午秒变居家办公桌,晚上也可以化身调酒、DJ打碟的控制台。
岛台和后面的隔断柜为了能在单面采光的迎光面起到散射光线的效果,都是不锈钢面,其中柜子考虑预算,采用了木柜板附着pet不锈钢膜。
岛台和后面的隔断柜为了能在单面采光的迎光面起到散射光线的效果,都是不锈钢面,其中柜子考虑预算,采用了木柜板附着pet不锈钢膜。

这块区域的灯光效果花了很大的心思,想要在夜晚营造光影编程下的赛博剧场。
当夜幕沉降,灯光从工作模式4000K调成派对模式2700K,岛台底部冲孔不锈钢灯膜散发渐变黄紫光,与开放格内两条RGB灯带交叠成迷幻光谱,智能联控色温和亮度。
当夜幕沉降,灯光从工作模式4000K调成派对模式2700K,岛台底部冲孔不锈钢灯膜散发渐变黄紫光,与开放格内两条RGB灯带交叠成迷幻光谱,智能联控色温和亮度。

地面与吊顶双线并行的狭长光带更构成视觉奇观:定制硅胶盖板与黑砖严密咬合,两道6米长的光轨经镜面反射延展成无限通道。
Tips:这种预埋式长条灯带,建议地面采用硅胶盖板,能解决白亚克力和黑亚克力漏光、不耐踩踏的缺陷。顶面建议用T字配件,可以斜45°打光角。
Tips:这种预埋式长条灯带,建议地面采用硅胶盖板,能解决白亚克力和黑亚克力漏光、不耐踩踏的缺陷。顶面建议用T字配件,可以斜45°打光角。

当电子乐响起时,手机轻点即启动「派对模式」——吊顶和地面的线灯带将不锈钢柜子和白墙染成钴蓝,厨房视角侧面的箭头光导装置指向卧室。

这一系列灯光反射在亮面的地砖上,终将这个通透的咖啡馆蜕变为赛博朋克俱乐部。

整个空间也挑选了一些艺术感十足的单品家具为空间增彩,比如这种像极了装置艺术的曲面镜,热弯工艺制造扭曲映像,也让夜晚的光线变得更梦幻。
· 卫生间

改造后的盥洗区被放在了外面,解决了两人早上洗浴的分流问题,
水磨石台盆选择了5厘米加厚板与背衬钢架龙骨严密咬合,台下都是抽屉柜,里面是抽中抽,上层8cm可以放置高化妆品,下层25cm深备用囤货区,抽屉的表面也附着水磨石,连地漏盖板也是同材质,让整个洗手台一种材质浑然天成。
一旁的不锈钢隐形柜则分担一部分护肤用品的收纳,将极简贯穿到底。
水磨石台盆选择了5厘米加厚板与背衬钢架龙骨严密咬合,台下都是抽屉柜,里面是抽中抽,上层8cm可以放置高化妆品,下层25cm深备用囤货区,抽屉的表面也附着水磨石,连地漏盖板也是同材质,让整个洗手台一种材质浑然天成。
一旁的不锈钢隐形柜则分担一部分护肤用品的收纳,将极简贯穿到底。

推开不锈钢隐形门,中间是如厕区,右侧是洗衣房,左边是淋浴区。

淋浴区是一个视觉、触觉、嗅觉、听觉都很舒适的空间:手工黑砖通铺顶地墙 ,把空间变成了一个阴翳、安全感爆棚的沐浴空间,还安装了软水系统,让抚过皮肤触感丝柔,在气味上,业主选的扩香石渗出的雪松香,非常好闻,听觉上,隐藏式排水管的30分贝底噪不会在夜晚洗澡时发生流水声。
· 厨房

原来的客餐厨改成了厨房和卧室,中间加一个隔断分区,同时隔绝油烟,隔断上采用了长虹玻璃+几何图形的采光孔,将卧室的自然光引进厨房。

与起居室不同,厨房是一个温润的木色空间,采用稳定性高的桦木木贴皮板材,表面涂刷木蜡油,台面是5毫米不锈钢,水槽也是一体式不锈钢无缝焊接,非常耐造。
厨房也是极简式设计,这里每件设备都是空间魔术的参与者:油烟机被隐形在吊柜里,洗碗机也披着同色木纹盖板,轻敲门板即静音滑开;净软水系统蜷于转角柜体。
厨房也是极简式设计,这里每件设备都是空间魔术的参与者:油烟机被隐形在吊柜里,洗碗机也披着同色木纹盖板,轻敲门板即静音滑开;净软水系统蜷于转角柜体。

还有极简的不锈钢灶台与焊接一体水槽,连电力轨道都是将不锈钢格栅开槽,将轨道电源隐形在接缝里。
这种极简的不锈钢设计,让爆炒油烟现场保有实验室般的秩序。
这种极简的不锈钢设计,让爆炒油烟现场保有实验室般的秩序。

为了方便快捷用餐,这里也用不锈钢和钢化玻璃做了一个小型餐台,整个厨房围绕着黄金三角动线,从冰箱(取材)→ 水槽(清洗)→ 餐台(备菜)→ 灶台(烹饪)→ 餐台(出餐),全流程步数优化至10步内。
· 卧室

这间被业主朋友戏称“混凝土监狱”的卧室,实则是精密营造的感官茧房。
墙面和顶面是用石膏板批刮肌理腻子,涂刷微水泥艺术漆模拟清水混凝土的质感,给人宁静感。
墙面和顶面是用石膏板批刮肌理腻子,涂刷微水泥艺术漆模拟清水混凝土的质感,给人宁静感。

墙角和顶面也嵌入了RGB灯带,能在APP操控下切换紫/琥珀/晨光三模式。


床头的造型壁灯是我们DIY自制的,红色玻璃吊灯悬在混凝土背景中,像一簇永不熄灭的篝火。


阳光打通也被包裹进卧室,成为了业主休憩的地方,不同质感的水泥效果搭配水磨石,营造清静的放松氛围,吊顶里其实隐藏了晾衣架,由于刷了同色艺术漆,使其隐形,破解了卧室晾衣羞耻症。
另外阳台上也有秘密通道,这里原来窗洞改造成双面联通柜,客厅卧室都能打开,方便拿取物品。
另外阳台上也有秘密通道,这里原来窗洞改造成双面联通柜,客厅卧室都能打开,方便拿取物品。
· 其他

这次的空间的改造,对业主来说,也是生活的精神解药:白天是低噪的治愈舱,清扫职场疲惫;黑夜是安全的发疯屋,在赛博霓虹中释放未说出口的呐喊。
而连接两者的,不过是手机屏上3秒的滑动——像切换人生副本的密钥。
改造从来不是造一间屋子,而是为每个无处安放的灵魂,定制可随时切换的平行宇宙,让有限面积里生长出的无限可能。
而连接两者的,不过是手机屏上3秒的滑动——像切换人生副本的密钥。
改造从来不是造一间屋子,而是为每个无处安放的灵魂,定制可随时切换的平行宇宙,让有限面积里生长出的无限可能。
更多推荐
发表您的看法…
目录
户型图
玄关
客厅
卫生间
厨房
卧室
其他



评论 0