极简侘寂之居,岁月沉淀出的独居艺术之境
户型三室
面积100m²
花费50万以上
位置杭州市
风格 侘寂
前言
独居生活中,那一方极简侘寂的家,宛如尘世喧嚣中遗世独立的桃源,极简形体下搭配经岁月沉淀的家具,携带着时间与自然拂过的痕迹,空间有着它的柔软与坚实的内核,如同居者的人物投射,清冽沉稳却不乏艺术性,立体多面的情感世界与居者相拥、交融。
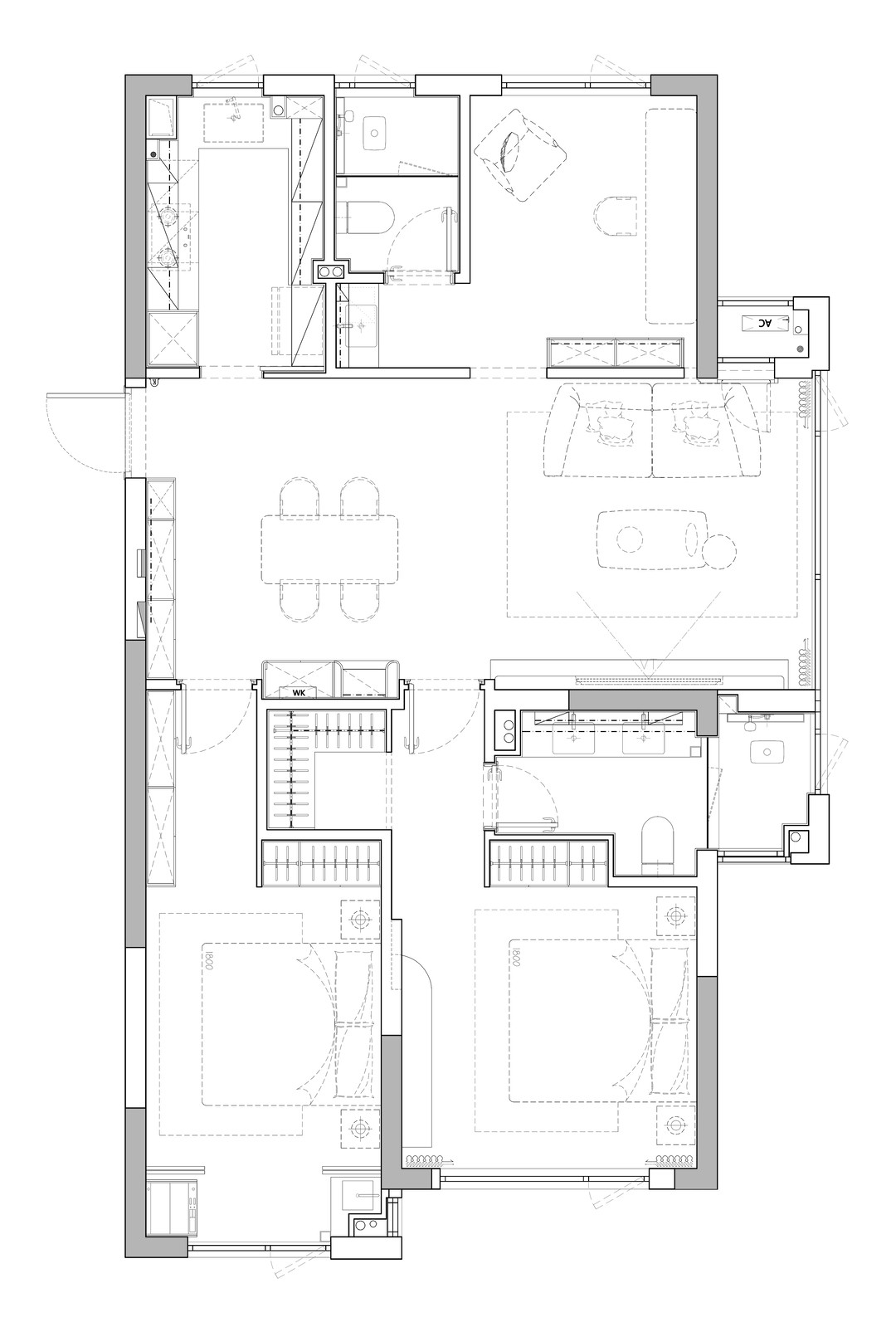
· 户型图


· 客厅

古朴做旧的色调为空间基调着墨,凭借结构穿插与弧形元素在屋内建构上发力,打破生硬的界限,营造灵动而和谐的氛围。




融入的残韵感洞石、裂纹式茶几、实木皮躺椅,原木老书桌......,坚硬的空间有着柔软的温度,如同居者内心的笃定,不乏柔软的一面恰似独处时偶尔泛起的温情。



极简形体勾勒出空间的纯粹轮廓,摒弃多余的装饰,只剩生活的本真。经岁月沉淀的家具安静地伫立其中,每一道纹理、每一处磨损,都像在诉说着往昔故事。静谧的时光在空间里缓缓流淌,与自我对话,与时光共舞,在这极简侘寂之境,独居,亦是一场与生活的浪漫邂逅。
· 餐厅


占据家居主动线重要位置的餐厅,遵循其空间基本功能,以纯粹干净的体态陈列功能性家具。汲自然之造物,不同元素不同特性应用于家居内,与生活功能的交织,总能在宅家的日子与自然产生链接,游山海感畅意,居室内见人文、禅意起。简而不凡,营建空间的灵动与生命力。





在暖色调的家居空间内以胡桃木为重色、以黑为点缀调配视感层次,自然元素为主的餐厅着以金属灯具打破空间的单调。开合有致的柜体满足玄关区和公区的收纳储物的同时,又完美湮没于墙身结构之中,家居美感结合其本身功能感的视觉弱化,给空间留下更多自由畅想。


· 厨房

· 书房


· 卧室

循着空间主调卧室以胡桃色展开铺陈,以木质、藤编、棉麻等软装塑造素雅宁静的睡眠空间,床尾则以墙体为主要玩味切入口,几何结构、块面衔接的趣味造型为空间增添着不羁的气息,似是沉稳古柏也有着俏皮流萤的一面。





· 衣帽间

克制的形体与微末处的柔情丝丝入扣,雅痞的情调于室内撒野。有效借用空间服务于居者日常生活,取次卧部分面积为主卧做衣帽间,一隅的巧妙变动藏匿着生活的零碎散乱,却也勾勒着浪漫的理想诗篇,设计在无形地、温润地让生活更美好,却不曾刻意。
· 卫生间

更多推荐
发表您的看法…
目录
户型图
客厅
餐厅
厨房
书房
卧室
衣帽间
卫生间



评论 0