和妈妈同住老破大,也可以是时髦爆表的孟菲斯画廊
户型四室
面积130m²
花费50万以上
位置北京市
风格 现代、混搭
前言
这是一所承载着几代人记忆的老房子,是业主从小与爸妈、姥姥一起生活的家。随着岁月更迭,如今这里是母女二人与五只爱猫共同生活的天地。
女业主深受我们此前一套孟菲斯风格案例的启发,希望自己的家也能如此——既保留时光的温度,又注入鲜明的色彩与生命力,更关键的是要契合两代人与多只猫共同生活的真实需求。
于是,“孟菲斯之家”应运而生。
我们以“轻孟菲斯”为基调,摒弃过于夸张的视觉冲击,转而用几何形态、高饱和色块与艺术化细节,勾勒出一个自由灵动且功能至上的家。
它不仅是一次空间改造,更是一场关于记忆、陪伴与生活仪式的重塑。
改造后的家,在鲜艳色彩与极简线条中取得平衡,既满足了妈妈偏爱整洁安静的需求,也实现了女儿对艺术氛围的向往,让两代人在同一个屋檐下,既独立又共生。
女业主深受我们此前一套孟菲斯风格案例的启发,希望自己的家也能如此——既保留时光的温度,又注入鲜明的色彩与生命力,更关键的是要契合两代人与多只猫共同生活的真实需求。
于是,“孟菲斯之家”应运而生。
我们以“轻孟菲斯”为基调,摒弃过于夸张的视觉冲击,转而用几何形态、高饱和色块与艺术化细节,勾勒出一个自由灵动且功能至上的家。
它不仅是一次空间改造,更是一场关于记忆、陪伴与生活仪式的重塑。
改造后的家,在鲜艳色彩与极简线条中取得平衡,既满足了妈妈偏爱整洁安静的需求,也实现了女儿对艺术氛围的向往,让两代人在同一个屋檐下,既独立又共生。
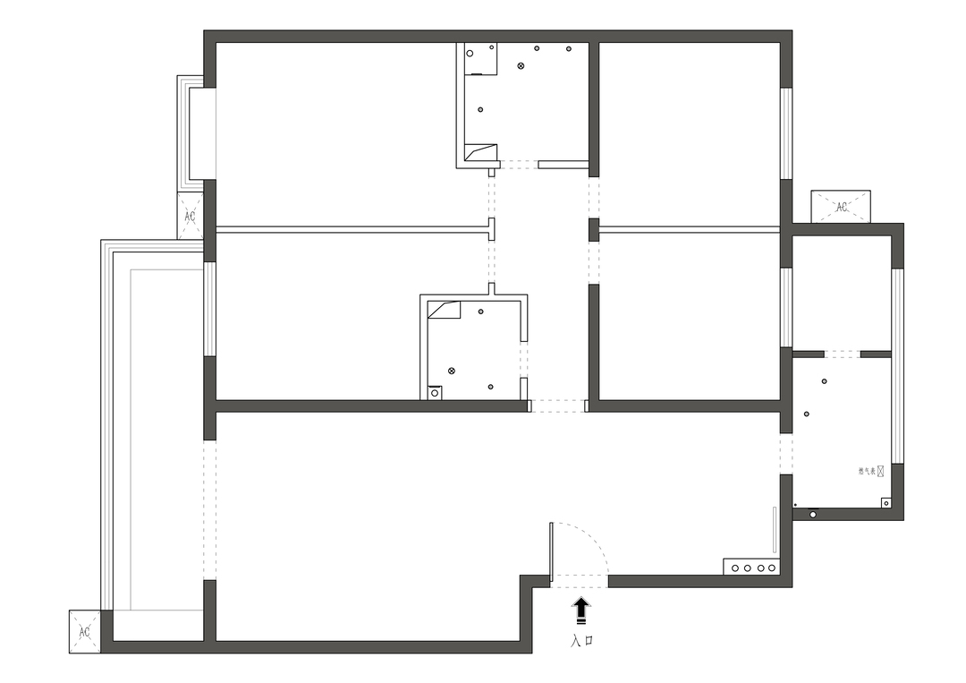
· 户型图

改造前
这套建筑面积约130㎡的房屋原是父母辈的职工房,承载着家庭记忆与情感传承。业主希望在保留这份岁月沉淀的基础上,通过翻修为自己和母亲打造更舒适、便捷的生活环境,同时也融入自己喜爱的现代设计美学。
房子虽然看似南北通透,但北侧连廊压住了一半的采光,导致北边厨房与两间卧室采光都很差,住感压抑;
原户型有4个房间,每个房间都过于独立,利用率较低;就两口人的生活习惯来讲,以光线为核心,空间需重新拆解整合;南向这边有一个阳台长廊,与房间之间也过于独立,影响采光和通风,以及家人在空间中的动线的冗长等等,为了更好的满足2人5猫的生活需求,我们做了以下改动;
这套建筑面积约130㎡的房屋原是父母辈的职工房,承载着家庭记忆与情感传承。业主希望在保留这份岁月沉淀的基础上,通过翻修为自己和母亲打造更舒适、便捷的生活环境,同时也融入自己喜爱的现代设计美学。
房子虽然看似南北通透,但北侧连廊压住了一半的采光,导致北边厨房与两间卧室采光都很差,住感压抑;
原户型有4个房间,每个房间都过于独立,利用率较低;就两口人的生活习惯来讲,以光线为核心,空间需重新拆解整合;南向这边有一个阳台长廊,与房间之间也过于独立,影响采光和通风,以及家人在空间中的动线的冗长等等,为了更好的满足2人5猫的生活需求,我们做了以下改动;

改造后户型图
1、入户利用客厅转角增加小仓库隔尘区,拓展收纳空间,优化换衣、清洁等生活动线;
2、针对空间北侧采光差的问题,采取了三个措施:
◆ 将厨房、衣帽间、书房等功能型区域安置在北侧,将更多采光留给生活空间;
1、入户利用客厅转角增加小仓库隔尘区,拓展收纳空间,优化换衣、清洁等生活动线;
2、针对空间北侧采光差的问题,采取了三个措施:
◆ 将厨房、衣帽间、书房等功能型区域安置在北侧,将更多采光留给生活空间;


门窗细节
◆ 厨房与衣帽间、餐厅之间开室内窗和通透的玻璃门;
◆ 厨房与衣帽间、餐厅之间开室内窗和通透的玻璃门;


◆ 房子中央的淋浴区和老人房的隔墙也通过构件隔断、玻璃砖与海棠玻璃门,让光线可以穿透。

3、打通南侧老人房的墙体连通长阳台,且加入可开可合的艺术门洞,提升空间灵活性,方便家人和猫猫穿行;
老人需要隐私时关闭门洞,需要更短更快地抵达客厅时,敞开门洞。
老人需要隐私时关闭门洞,需要更短更快地抵达客厅时,敞开门洞。

4、根据两代人不同的生活习惯优化空间格局,设置两个盥洗马桶间,母女不想共用的区域专人专用,可以共享的区域,比如淋浴间,洗衣区,衣帽间和书房一起共用,这种保持空间的独立与共享,方便两代人的使用习惯。
· 玄关

原户型属典型中厅入户,左客右餐,没有玄关,缺乏尘区与净区的分界,鞋帽收纳亦严重不足。
针对妈妈对清洁的高要求,我们于入户左侧加建了一步可达的封闭式步入小仓库,将所有外出衣物、鞋帽、快递、雨具、消毒用品等集中收纳,有效区隔室内外洁净与杂乱。
针对妈妈对清洁的高要求,我们于入户左侧加建了一步可达的封闭式步入小仓库,将所有外出衣物、鞋帽、快递、雨具、消毒用品等集中收纳,有效区隔室内外洁净与杂乱。

微水泥墙面搭配圆形玻璃洞造型,在朦胧光影中营造出温暖的归家仪式感,这一设计极大方便了妈妈日常的清洁管理,动线短且高效。
· 客厅

客厅作为整个家的核心场域,拥有极佳采光与艺术氛围,落地和效果图基本1比1复原,设计突破传统布局,将沙发置于偏2/3居中处,形成可四面环坐的“美术展览”的空间布局,动线围绕岛屿沙发展开。

阳台中间陈列Peter Opsvik的地球树椅,成为客厅美术馆的的一件艺术装置,旁边连通老人房的艺术门洞采用3D打印罗马柱与页岩台阶,成为空间视觉焦点;

东西两侧墙分别设置艺术电视、猫爬架以及C位艺术展览墙,增强空间艺术氛围。

艺术墙以中轴对称布局呈现,通过微水泥与木地板构筑“框景”效果,将视觉引向中间。原本计划悬挂的横幅画作因尺寸误差临时更换为一幅竖版作品,却意外与餐厅以及罗马柱的图形、色彩形成巧妙呼应,其修长造型也更契合留白区域的比例。

两侧定制一字隔板陈列母女的收藏,关于层板的承重和工艺可以说是匠心之作,以多层工艺确保承重与耐用,木工先在墙面做了钢架基层承重,然后上面包木板,再做一层石膏板去批刮找平,最后在最面层做了一层微水泥,增加表面防刮擦性能,并且与整体的空间基底也较为和谐统一。

女业主非常喜欢孟菲斯风格,她的母亲很尊重女儿的爱好,能接受孟菲斯家具以及我们设计的许多有趣的符号、几何元素,这种点睛的色彩和几何构成,搭配极简纯净的大地色系打底,能带来温暖、有趣、自由的生活氛围。

为了优化动线的灵活性,客厅长阳台被重新划分为两个可独立也可联通的功能模块:一端通向客厅,另一端连接老人房,中间用百叶门联动,也可以作为卡座使用,满足老人日常倚靠盘坐、阅读、逗猫等活动。
门洞用明亮的颜色做了区隔,点睛之作是3D打印罗马柱与页岩台阶,选择3D打印是出于对材料创新的尝试,也是在造价与工期平衡下的最优解——传统石膏、大理石或木质罗马柱成本高、工期长且会加重阳台的承重,而3D打印是轻体的材质,基础龙骨完成后,再通过手工绘制图案,也极具性价比。
门洞用明亮的颜色做了区隔,点睛之作是3D打印罗马柱与页岩台阶,选择3D打印是出于对材料创新的尝试,也是在造价与工期平衡下的最优解——传统石膏、大理石或木质罗马柱成本高、工期长且会加重阳台的承重,而3D打印是轻体的材质,基础龙骨完成后,再通过手工绘制图案,也极具性价比。

页岩台阶的引入打破常规弧形设计的呆板,其天然肌理与上下部衔接更显灵动,成为空间的自然过渡。

这个通道可开合的设计,白天门打开的状态下,南侧阳光可以贯通。夜晚时,可以将其关上,成为不被打扰的独立空间。阳台与老人房形成便捷的洄游动线,方便母亲照看猫咪,家务动线也大幅缩短。
业主家的猫猫也喜欢在这里晒太阳,穿来穿去。一分为二的阳台也没有浪费,客厅阳台做了充足的收纳柜,老人房阳台做了晾衣区。
业主家的猫猫也喜欢在这里晒太阳,穿来穿去。一分为二的阳台也没有浪费,客厅阳台做了充足的收纳柜,老人房阳台做了晾衣区。
· 餐厅

餐厅位于客厅北侧,虽采光较弱,却通过明快配色扭转氛围。

圆形餐桌、潘通椅与PH吊灯组成经典画面,镜面冰箱与极简线条维持了视觉的轻盈与秩序。
一旁嵌入式餐边柜以黄蓝配色呼应孟菲斯主题,兼具收纳与展示功能。
一旁嵌入式餐边柜以黄蓝配色呼应孟菲斯主题,兼具收纳与展示功能。
· 厨房

厨房设计也充满巧思。原结构角落存在管道井,为化解冰箱厚度与门扇冲突,我们将整个厨房门立面加厚,外宽内收,处理成喇叭口造型,营造如画框般的立体感。
白色玻璃推门采用内置抽拉移门设计,搭配胶片装饰的元素,增添复古趣味。
白色玻璃推门采用内置抽拉移门设计,搭配胶片装饰的元素,增添复古趣味。

厨房内部以蓝、黄、白为主调,地面采用大颗粒水磨石,按几何美学精准排版,延续孟菲斯明快风格。


依据母女较少下厨的习惯,将原中厨拆分为轻食区与猫粮储物区,并设置小冰柜存放亲友赠送的食品,动线清晰,打理便捷。
· 走廊

走廊是这个家功能中枢,向前是女业主的卧室书房、两个卫生间,向左是淋浴房、洗衣区以及老人房,向右是衣帽间。

淋浴间位于两间卧室之间,做共享处理。入口设双软帘,可通过声音或帘幕状态判断使用情况。


淋浴房出来,我们在毗邻老人房门口设置洗衣区,动线方便,女儿的习惯常用洗烘一体机,老人的习惯则保留晾晒阳台,洗衣晾衣动线直接便捷,充分尊重两人对清洁的坚持和实际使用需求。

洗衣区旁边也做了一个盥洗台,方便老人洗漱,以及手洗衣物。
· 卧室

老人卧室位于南侧中间,风格素雅静谧,局部运用蓝色呼应整体。极佳采光通过玻璃门、玻璃砖隔断延伸至北边。

原木一体式床头与床头柜带来包裹感,营造安稳舒适的睡眠环境。
房间位置临近洗衣晾晒,符合老人爱清洁的习惯,也减少来回奔波的劳累。
房间位置临近洗衣晾晒,符合老人爱清洁的习惯,也减少来回奔波的劳累。


老人晚上睡觉习惯打开微弱的照明,床头的灯也通过蓝色隔断将光源弱化,处理成见光不见灯的意境,也方便老人起夜。

女儿房同样朝南, 双开门设计增强仪式感,几何玻璃元素引光入室,提升通透感。

女儿卧室的设计突出了孟菲斯风在硬装上的区域,定制设计的三角形床头则成为视觉焦点,床头造型并非随意而为,它延续了公共区域的轴线意识和构成手法,于私密空间中延续了一份克制的趣味。

顶面采用低饱和度的绿基调来营造复古静谧感。
灯具的选配进一步提升了空间的质感与个性。床头精心淘选的壁挂中古灯具,其独特的造型提升了空间的艺术性,吊灯是LLADRO的陶瓷花瓣灯,也是一件来自西班牙瓦伦西亚的手工艺术品。
灯具的选配进一步提升了空间的质感与个性。床头精心淘选的壁挂中古灯具,其独特的造型提升了空间的艺术性,吊灯是LLADRO的陶瓷花瓣灯,也是一件来自西班牙瓦伦西亚的手工艺术品。

花瓣形状的灯罩洒下光影,与艺术漆吊顶的肌理形成互动,光影层次丰富,夜晚时分更显宁静与温暖。

床尾的家具也是件件艺术品。
· 书房

书房位于北侧,风格简约沉静,以黄、蓝、红三原色局部点缀呼应全屋。

依墙定制长桌容纳打印机等设备,隔板陈列艺术小物,延续展览墙概念,营造专注而活泼的工作氛围。

书房也是音乐室,摆放着女儿的钢琴。
· 衣帽间

位于北侧采光最弱区的衣帽间,两边通过水泥构件墙和开室内窗提升采光。

通顶镜柜+壁挂架满足母女衣物、包包的收纳需求。微水泥隔板陈列包袋,一目了然,方便取用。

窗前蓝色的柜子是手表、首饰以及小件衣物的的收纳区,分类十分有序。
· 卫生间

母女分设两个独立卫生间,配置基本一致,均含洗手池、马桶和毛巾杆,依据个人使用习惯独立使用,避免早晚高峰冲突,提升生活效率。

空间的材质色彩搭配提取于水磨石地面,非常有整体感。
· 其他

本案中的“孟菲斯”不仅仅是一种风格,更是一种生活态度:自由、明快、包容且充满艺术气息。
我们通过色彩、几何图形与光,重塑了一个既能承载两代人记忆,又能满足当下功能与情感需求的家。
设计中特别关注妈妈的生活习惯与健康,通过入户隔尘、洄游动线、就近洗衣等细节,为她打造了一个清洁、便捷、舒适的生活环境。在这里,妈妈拥有了宁静与独立,女儿实现了审美与热爱,五只猫得以自由穿梭——这是一个真正忠于生活、也回归生活的设计。
它告诉我们,家的改造,从来不只是空间的再分配,更是一场关于如何更好地在一起生活的实践。
我们通过色彩、几何图形与光,重塑了一个既能承载两代人记忆,又能满足当下功能与情感需求的家。
设计中特别关注妈妈的生活习惯与健康,通过入户隔尘、洄游动线、就近洗衣等细节,为她打造了一个清洁、便捷、舒适的生活环境。在这里,妈妈拥有了宁静与独立,女儿实现了审美与热爱,五只猫得以自由穿梭——这是一个真正忠于生活、也回归生活的设计。
它告诉我们,家的改造,从来不只是空间的再分配,更是一场关于如何更好地在一起生活的实践。
更多推荐
发表您的看法…
目录
户型图
玄关
客厅
餐厅
厨房
走廊
卧室
书房
衣帽间
卫生间
其他



评论 0