锵设计 | 發 -温州MEGA发一发旗舰店
空间类型娱乐
面积600m²
花费50万以上
位置温州市
风格 现代、工业、轻奢
前言
本案《發》,位于温州印象城内,是一间600㎡的棋牌旗舰空间。设计师从“城中村”的文化记忆中汲取灵感,将这处商业空间化作一个充满童年回忆与城市转型缩影的“微型聚落”。空间不是被安排,而是被唤起:唤起你童年玩耍时分的街巷小道、唤起那间卖冰棍和汽水的小卖部、唤起高楼阴影中传来的麻将声与喧笑声。
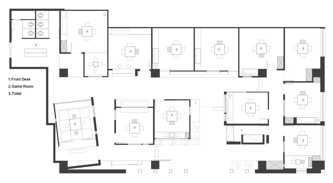
· 户型图

设计公司:锵设计项目名称:温州印象城MEGA发一发旗舰店项目类型:商业空间项目时间:2024项目地址:浙江温州项目面积:600㎡主持设计:王锵力 团队参与:池浩然、韩俊浩、张礼舜公司网站:www.qiangid.com联系方式:qiangsheji@qq.com 空间摄影:张家宁
· 玄关

本案《發》,位于温州印象城内,是一间600㎡的棋牌旗舰空间。设计师从“城中村”的文化记忆中汲取灵感,将这处商业空间化作一个充满童年回忆与城市转型缩影的“微型聚落”。空间不是被安排,而是被唤起:唤起你童年玩耍时分的街巷小道、唤起那间卖冰棍和汽水的小卖部、唤起高楼阴影中传来的麻将声与喧笑声。




入口区域采用钢板与亚克力相结合,激发“穿越新世界”的仪式感。灯光透过亚克力的漫反射,为钢板冷冽的质感覆上一层温柔滤镜。金属的反光在此不再是锐利的攻击,而是一种时间的折叠,呼应着老街口那台停不下来的弹子机。
· 入口

设计师以城市肌理为线索,打破常规的空间动线逻辑,通过“抬高—下沉—穿行”的节奏设定,将空间功能进行层次分割,又彼此呼应。每一条通道都不是孤立存在,它们互联互通,构成一幅动态展开的空间地图。






三栋核心包厢以“独栋”构筑的形式存在,不只是满足私密性的需求,更是在构建人与空间之间的情感关系。你可以推门而入,也可以在两栋之间游走,在巷弄之间拾级而上,或下沉小坐,体验一场以身体为介质的沉浸式“城市散步”。
· 其他






每一个包间,都是一个微型建筑单元。它们被独立安置,却不相互割裂。在视觉上彼此错位,在动线上暗中串联——像是城中村里紧密相邻的屋檐,又似隐匿在闹市中的一方清幽。







远处区域采用起伏的铝型材,代表钢筋混凝土的都市秩序,而近处的“独栋楼房”则以清水泥与木纹饰面构筑,意指自然村落中的人情温度。在这对冲中,空间不再是冷冰冰的盒子,而是流动、碰撞、混合的“场”








光,是“发”空间的隐性叙事者。它并不急于铺陈,而是在细节中缓缓展开。设计师善于借助灯光的介入,将功能与情绪编织成一体。藏于吊顶间的线性光源勾勒出动线节奏,镶嵌于墙面的冷白灯珠强调结构轮廓,包间入口处暖色灯光模拟黄昏余晖,唤醒一种“归家”的感知。





《發》,不仅是一个棋牌旗舰店的名字,它更像是一次空间命题的回应:回应我们对邻里感的怀念,对松弛感的渴望,对烟火气的重新呼唤。设计在这里不是标新立异,而是如水般包容生活的每一个片段:热闹、静谧、功能、情绪、记忆与光。这是属于温州城市肌理的一次温柔注解,也是锵设计在空间叙事中一次深入人心的试探。




更多推荐
发表您的看法…
目录
户型图
玄关
入口
其他



评论 0