邂逅一场轻奢浪漫,醉于一屋现代诗意
户型别墅
面积300m²
花费50万以上
位置杭州市
风格 美式、简约、轻奢
前言
这是一个名为现代轻奢的家,从你进门就能感受到它独有的气息。简洁的线条,精致而富有个性的单品,再加上经典的拱门设计,它用属于它的方式告诉你,这就是温和的奢侈。
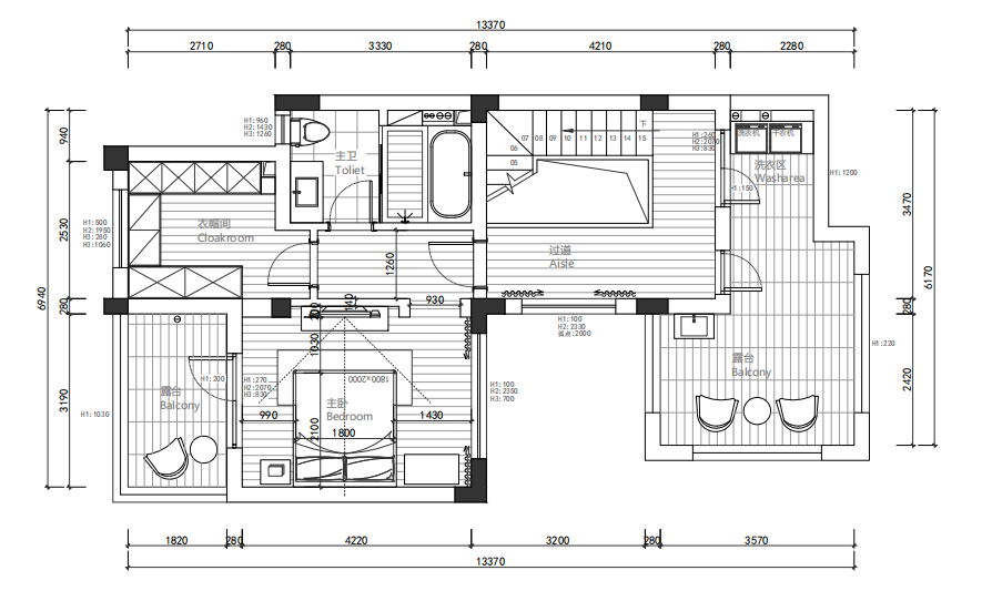
· 户型图

地下一层

一楼

二楼

三楼
· 玄关

· 客厅

从门厅穿过一个吧台而后经过餐厅到达客厅,弱化“门”的存在,以拱形门作为隔断,整个空间都变得十分通透且高级。

低饱和度的绿色带一丝灰调,散发高贵的魅力,环绕于四周,优雅迷人。舍弃电视柜,在电视墙底部做了壁龛的设计,在木桩的装饰下多了一份自然的情怀。线条简约的家具搭配小华丽的水晶灯,繁简得当。

一把昌迪加尔的单人椅,掀起了一股藤编家具的浪潮。打破了传统东方家具老旧的设计观念,重新定义了人们对经典家居的认知。


在客厅还做了大理石花纹的壁炉,增添了情调。壁炉上方是现代气息浓郁的抽象装饰画。
· 餐厅

餐厅采光极佳,没有过多的装饰物,处于一层中心。由三个拱形门包围之中,空间感十足。

黑胡桃木纹的圆形餐桌搭配金属脚的白色餐椅,在阳光下格外有质感。

由餐厅望向任何区域,都是一道优雅的风景线。

· 西厨

从玄关进来是一个吧台,作为中厨和餐厅的隔断。中岛加上现代感的透明绿色吧台凳,简约而时尚。个性的后现代风轻奢小吊灯彰显品位。

· 中厨

中厨与西厨都是温暖并干净的米白色系,无论是收纳空间还是U型的操作台,都是爱做饭星人的心头爱。阳光从收放自如的百叶帘中穿进,洒落一天的好心情。

· 走廊


简约不失设计感的吊顶,一盏精致的水晶灯装点其间。现代感满满的楼梯没有多余的装饰却颇有质感。

· 主卧

主卧位于三楼,以红蓝撞色作为空间的主色调。当热情的红色遇上优雅的蓝色,描绘出一支令人过目难忘的视觉盛宴。

背景墙是浅浅的脏粉色,护墙板的设计丰富了空间的层次。一盏小小的水景吊灯格外精致,搭配蓝色桌椅,以金属元素过渡。
· 卧室

次卧以简约为主,气质黑的床和床头柜,金属色点缀其间。打开铝合金门是一个小露台,晚风徐徐,静静等待秋日的到来。
· 花园

城市封闭的空间让现代的人更加向往空旷的户外,花园的存在无疑是心灵的慰藉,仿佛拥有这方寸天地就能找回瞬息的停歇。

更多推荐
发表您的看法…
目录
户型图
玄关
客厅
餐厅
西厨
中厨
走廊
主卧
卧室
花园



评论 0