一人居loft的家,回归纯粹简约的生活,自由舒适不被定义。
户型两室
面积115m²
花费30~50万
位置深圳市
风格 现代、简约、原木
前言
本案是一套loft设计,因为是业主一人居住,且日常会经常跟朋友在家里聚餐,考虑到生活动线和居住习惯,通过“寓奢于简”的含蓄手法,表达情志相适宜的空间意境。空间以干净极简的奶油白作为主设计基调,辅以和煦的原木,再以一点质感黑色作为点缀,使整个空间舒适却又井然有序。硬装上选择了极简的线条,柔光地砖通铺,使整个空间更加的干净、舒适。楼梯部分,采用了镂空设计+扶手,给营造一种更轻盈的空间感。软装搭配上,也选择了干净、简约的布艺沙发,双面朝向的设计既摒弃了传统的方正感,又给予空间一丝柔和之美。
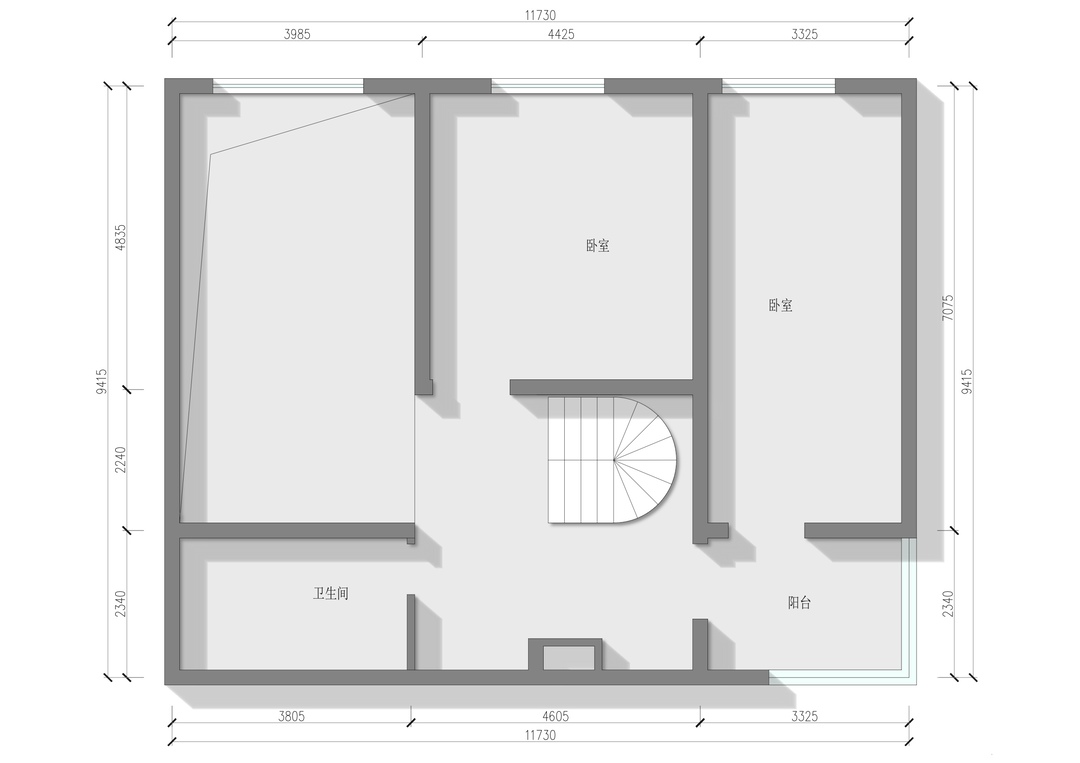
· 户型图




1、一楼作为公区使用,二楼则是比较隐私的休息区。
2、入户玄关增加换衣镜和收纳区,确保归家的干净整洁性。
3、一楼空间整个打开,以开放式布局为主。
4、中西厨合并设计,以LDK设计满足多样化布局。
2、入户玄关增加换衣镜和收纳区,确保归家的干净整洁性。
3、一楼空间整个打开,以开放式布局为主。
4、中西厨合并设计,以LDK设计满足多样化布局。
· 玄关

入户空间纵深比较长,根据业主的居住习惯和生活需求,进门的一侧墙体做超大的穿衣镜,视觉上还能扩大空间感。地面以深灰色的瓷砖为主,空间整体干净整洁,舒适的色彩搭配,给予归家满满的仪式感。
· 客厅

现代极简的横厅设计,整体空间以白色和原木为主,空间简单,细节丰富。极简线条的收纳区、自由组合的沙发、体块感的茶几,各种细节让空间的高级品质彰显淋漓尽致。

设计师注重居室空间与功能使用的完美结合,对空间的每一个设计细节和局部装饰都精心打造,力求呈现出精致又实用的空间效果。大大的落地窗,透光的百叶帘给予空间形成丰富的光影效果,拉开可欣赏窗外美景,拉上又可以舒舒服服的休息。

空间舍弃传统电视柜,背景墙利用原木和壁炉打造一面可收纳的墙体,同时空间吊顶预留投影区,可供日常商务娱乐,同时又能增加整理收纳空间。

天花板及隔断空间的设计上,采用圆弧工艺,边缘曲线设计,观感更加柔和,打破了直线的刚硬和单调,使家居空间更显优雅流畅。

圆弧工艺的运用,使得家居空间更加和谐,舒适,也大大提升了家居空间的美观性与舒适性。沙发同样以浅色为主,整个色系与电视墙呼应,美感通透的推拉门将空间划分出独立的多功能区,空间整洁通透,视觉效果一级棒。用最简单的线条,营造空而美的空间氛围。


本案的第一视觉便是宽阔感,空间的舒适度最大化的利用,开放式的厨房与餐厅和客厅横厅相连,延伸感拉长,增加空间感。

计师采用简约的设计手法激发居住者专注空间和生活本身,让人不被空间限制。

旋转楼梯设计感满满,拉近一楼与二楼之间的关系,同时设立在西厨区,还能起到整个公区的分区性。
· 餐厅

开放式的餐厨区域让人太爱了,大大的空间后期使用方便实用,空间是一个挑空布局,超强的采光性确保空间的通透感。

不管从硬装上还是软装搭配上都以浅色为主,干净又有仪式感。

餐厅与旋转楼梯呈一字型布局,楼梯下方合理利用,作为玄关和餐厅空间的基础收纳区。

空间大量白色作为主色调,浅色原木呼应全屋基调。
· 厨房

中式厨房进行了墙体拆改,以玻璃推拉门为隔断,既能确保空间的开阔性,又能保证空间独立性。洁白利落的开放式厨房,台面岩板上墙,便于业主日常打理。空间结构以一字型布局为主,浅色的地柜+吊柜一体化设计,视觉上还能弱化存在感。同时提前将家电内嵌其中,节省空间又统一大气。
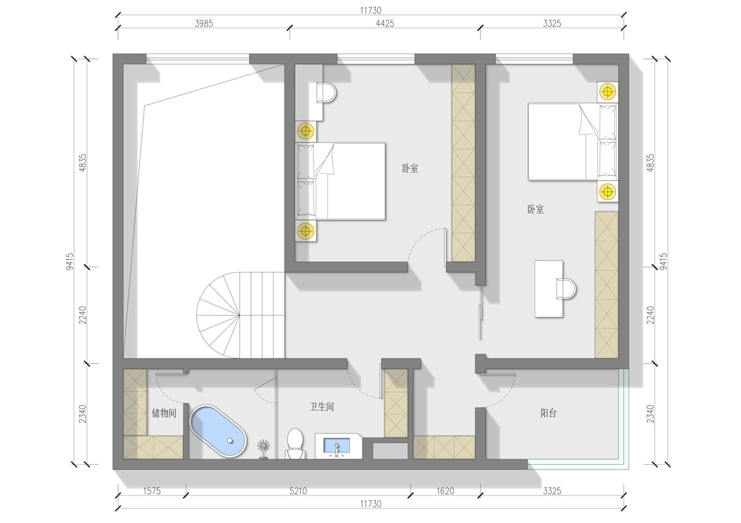
· 卧室

卧室布置在二楼空间,旋转楼梯上去便是业主的套房式私密空间,通过秩序感展现空间典雅柔美的艺术气息,拉近人与空间的距离感,让居所之人在秩序中感受幸福的仪式感。空间摒弃了复杂的装饰,呈现出一种极简主义的美感,灯光的增设增加房间的层次感,整个空间仿佛加了一层柔美的自然滤镜。
· 卫生间

卫浴空间是以浅色为主,空间整体的通透性比较好,浅灰色的瓷砖通铺上墙。进门一侧则是壁挂式的浴室柜,台盆一体的设计日常方便清洁。可收纳的浴室镜增加空间的收纳性,定制置物架延伸至马桶上方,日常可以用来放置如厕的生活用品。靠墙则利用玻璃门为隔断,划分出独立的淋浴房,整个空间形成一字型动线,简约干净又利落。
· 西厨区

餐厅简约而不简单它既是三餐四季的承载之地,也是花前月下的浪漫之所。

一个功能齐全的空间,将业主未来的生活需求完全规划其中,让每一餐都充满温馨与惬意,尽显生活的美好。

岛台+白色岩板餐桌高低交错的设计,形成洄游动线,强调就餐仪式感的同时,也将入户与客餐厅动线分为两个回字形,设计感满满。
更多推荐
发表您的看法…
目录
户型图
玄关
客厅
餐厅
厨房
卧室
卫生间
西厨区



评论 0