【太平洋家居网 设计频道】相遇一场色彩之旅,带给我们挥之不去的快乐情绪,我们会被家中温暖的色调与精致的设计所吸引。红与紫的协调搭配,将家的幸福与温馨联系在一起。浪漫、温馨、舒适、放松、自由自在的空间内,诠释着文艺青年的精致生活。
项目地址:江苏南京
面积:70平米
材料:文化砖、水曲柳饰面、亚光瓷砖
风格设计:混搭
主设计师:宇泽
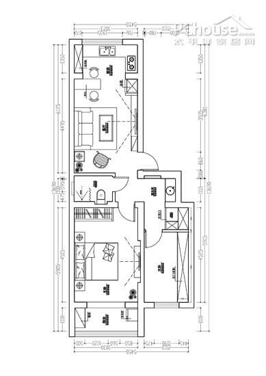
设计核心:本案户型呈现出罕见的狭长型,除需要熟练的设计技巧布置格局外,还需要达到理想的红紫混搭格调,达到出舒适、浪漫的居室氛围。
(平面设计图)
空间设计解读:占地70平米的小户型,呈现狭长的格局,进门右侧为公共空间,左侧安排了两个卧室。因正门开在中间,两侧居室的布局比例较合理。为拓宽客厅空间,阳台变身为半开放式厨房,生活阳台则改在主卧室里。因狭长的格局,使得整个居室通风对流条件甚佳。
【设计师简介】
宇泽
南京宇泽室内设计工作室创始人、设计总监、网络人气设计师。
主张生活设计,品读慢生活,在“设计是一种态度,用心设计,用爱创新。”的设计理念下,坚持以真诚、平和的态度去面对我们的顾客;坚持以严谨、创新的精神去面对我们的作品,打造臻品设计,闲适空间。
设计作品获得中国建筑装饰2012-2013年最具创新设计奖、2013“享特窗饰杯”中国软装100设计优秀奖、 “智领未来”第二届室内设计大赛二等奖,2013江苏省室内大赛三等奖等设计大赛奖章等。
设计作品多次荣登《国际样板房大观》、《豪宅设计巡礼》、《样板间II-现代时尚》、《样板间III-欧式田园》、《奢享空间-新都市奢华样板房》、《摩登样板间》、《MINI PARTMENTS 迷你公寓》等权威书籍;以及《家居视界》、《家居中国》、《家饰》、《中国厨卫》、等专业杂志;多次接受《家饰》《新浪家居》《365家居网》《iColor为爱刷新》等媒体的采访以及作品案例解析;《史上最潮主流户型》特邀编委。
设计理念:设计是一种态度,用“心”设计,用“爱”创新!
代表作品:别墅类:山水风华、山水华门、豪园、栖园、银河湾、汤山公馆、中源阳光城、帝景天成等
公寓/洋房类:星语华府、钟鼎山庄、紫玉山庄、天泓山庄、保利香槟国际、汇锦国际、西堤国际、金鼎湾国际、苏宁睿城,汇林绿洲,东方天郡等。
PART 1:客厅设计
设计重点:布艺风格小客厅
编辑点评:客厅面积不大,仅能容纳一张双人沙发,一张单人沙发,一张不茶几。喜爱文艺气息的业主采用了一系列不同色调混搭的布艺沙发,有条纹的,有图案的,连茶几也铺上一层类披肩布艺。
设计重点:强收纳墙面
编辑点评:客厅大面积的红色墙面浓烈而不失恬雅,平添几分气质。此外,还沿墙面设计了一系列的仿古木质收纳柜,壁挂式电视为走道留出空间,拓宽生活动线。
PART 2:吧台设计
设计重点:吧台隔断二合一
编辑点评:通往阳台的承重墙不可打掉,设计师利用此处打造了吧台,同时也是夫妻俩的小餐桌,更是两个空间的隔断。一堵小小的半高墙就充当了三个功能,红色的墙面延续了客厅的浓烈风格。
PART 3:厨房设计
设计重点:半开放式空间
编辑点评:把原户型的阳台纳入使用,变身半开放式厨房,拓展后的格局给了公共空间宽敞舒适的自由感。客厅厨房的过渡墙面,还不忘利用墙面凹位收纳各类电器。
设计重点:L字型操作台
编辑点评:对于矩形偏长的厨房来说,L字型的操作台设计是最符合生活习惯的。把烹饪区藏在非正对客厅的角落里,并靠近窗户,可利于油烟的扩散。哑光色菱形拼砖的墙面,加上深色的木纹收纳柜,与客厅暖色调为主的设计相衬托,整体风格突出。
PART 4:走廊设计
设计重点:过道盥洗区双结合
编辑点评:客厅往卧室的过道区域设计成卫浴的干区,亦即盥洗区。它与卫浴正对,却由于过道的存在而完全分离,达到了干湿的分区与统一。左侧的墙面更被设计师利用起来作挂物收纳。
设计重点:巧妙的元素搭配
编辑点评:过道的红色墙面是客厅的延续,空间感觉活泼、热烈,加上周围色调的选择和设计元素巧妙的搭配,避免了大面积色块带来的视觉过度刺激,给人一种青春活力之感。艳而不俗,媚而不妖。香艳与精致并重,又不乏清雅、灵动,传递出淡然、稳重之感!
PART 5:卧室设计
设计重点:私密的格局设计
编辑点评:卧室藏于狭长户型的深处,私密性高。小小的空间内,美观与收纳效果并重。利用墙面设计搁架,配以壁挂式电视,凹进30厘米的弧形区域,对于过道,实现了零阻碍。
设计重点:妩媚的蓝紫主色调
编辑点评:蓝紫是卧室的主色调,壁纸是偏紫色带有图案的质感设计,床架上紫色的纱幔更加强了空间的妩媚,增添了不少浪漫情调。
设计重点:排斥颜色的和谐结合
编辑点评:床边的一张仿古的斗柜是绿色的,是卧室唯一的亮色。绿色与紫色,两种本应相互排斥的颜色在此时却显得相当和谐,为卧室的温情色调加上了浓墨重彩的一笔。


潘颖欣
2015-1-23 00:15:13














