这是一个四层的独栋别墅,建筑以赖特风格为主,四周环绕的绿化庭院,远处有湖景。为了营造建筑到室内一气呵成的延伸,在室内设计中,将现代与古典相融合作为设计的核心,并以此来贴合都市的生活节奏。
平面布局不仅关注人们居住的舒适与功能的实用,更重要的,是增强了家庭成员之间的亲密度、促进儿童独立意识与良好生活习惯的培养、考虑老人生活的便利以及高品质家庭文化的培养。
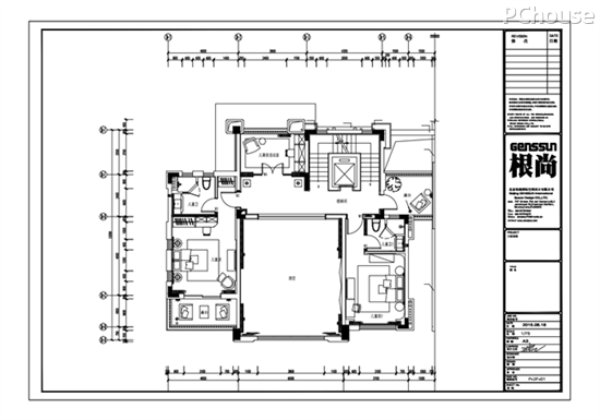
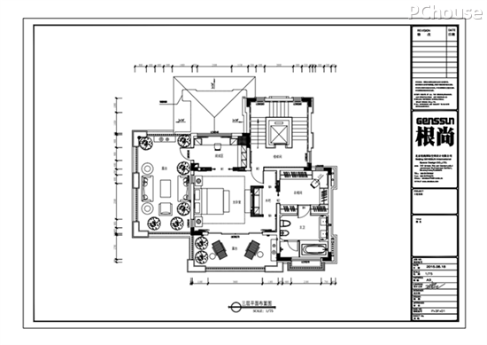
一层主要为公共区域,包括客厅、餐厅、厨房,另外门厅左侧设计为老人房,适应老年人起居的便利;负一层定义为家庭图书馆以及休闲厅;二层定义为儿童生活区,分别设计了男童房与女童房,每个儿童房中设计了单独的卫生间,促进儿童独立性格的培养。另外,楼梯右侧为儿童活动室,为儿童创造了一个温馨,充满爱与趣味,并激发无限潜能的空间。
负一层画品中白桦树林、家庭图书馆的枝桠图案地毯,簇状水流玻璃吊灯设计展现了天青、水动、林静的自然意向;主卧室的泼墨图案地毯、圆形水珠玻璃吊灯、吊顶的竖型木格栅工艺,同样营造了气韵生动的空间流动感。
顶层设计为主人生活区,主要考虑私密性与生活的极致感,空间包括主卧、主卧衣帽间、主人房露台、主人卫与阅读区,另外,通过阅读区可步入公共露台,这个室外空间,同样也是家庭休憩与娱乐的好选择。
公共区域顶面天花是一个通透质感的镜面不锈钢材质的“水滴”造型,犹如雨后最后一滴水珠,在平静的水面上荡漾开来...空间整体为简约的现代风格,客厅壁灯为白色云石水滴造型,地毯为水波纹涟漪图案,水滴元素相互交织,展现出诗意东方的美。
空间硬装使用不锈钢玻璃镜面、木作、石材、铜、软包等材质组合,打造富有轻奢气息居住文化,充分利用装饰细节,来打造各个搭配之间的微妙关系,楼梯间立面使用了暗藏灯带,行走在台阶,在大理石材质与昏黄的光影之间,展现了浪漫而富有层次变化的戏剧效果。
整体空间根植于东方传统文化之上,以现代元素为主,让对比与冲突完美邂逅,打造了一个具有古老东方文化底蕴的现代风格居所。
负一层
一层
二层
三层


佚名
2015-12-01 11:04:23






















