办公室设计
设计重点:冷色营造沉稳气质
编辑点评:不同色彩的搭配运用会为空间视觉带来差异化的效果,同色系的统一或不同色系的重组,都会令人自觉惊艳。黑色的高贵、优雅和沉稳便于上班一族思考和沉静,在办公区域尤为明显。为避免沉闷,设计师在办公家具的选择上做了调整,鲜红色椅面在灯光的照耀下活泼、亮丽,富有激情,也能在瞬间感染人的情绪。
办公室设计
设计重点:俯瞰整体设计
编辑点评:浅灰墙、水泥地、黑文化石奠定了LOFT办公室的主基调,辅以鲜红、红褐色软装点缀提亮了空间色彩感。铁艺吊顶及栏杆,在洋溢着复古气息的办公室里更强调了工业风的硬朗特点。大量直线条设计,使各个区域彰显出简凝、干练的轻奢感。
办公室设计
设计重点:射灯下的幻化空间
编辑点评:洗手间的设计在整体办公空间中,应属最简约的一隅,没有冲击眼球的明艳色彩,亦难以打造新奇的造型设计,然而,斑驳的水泥墙和地面在盏盏射灯的装饰下,充满旧时光感和现代科幻感,做旧的洗手盆和置物架,静静地挂与墙面,静雅而别致,连洗手间设计也被赋予艺术感,可见设计师对于把控艺术陈设与美学设计的熟练程度以及专注坚持的匠人精神。
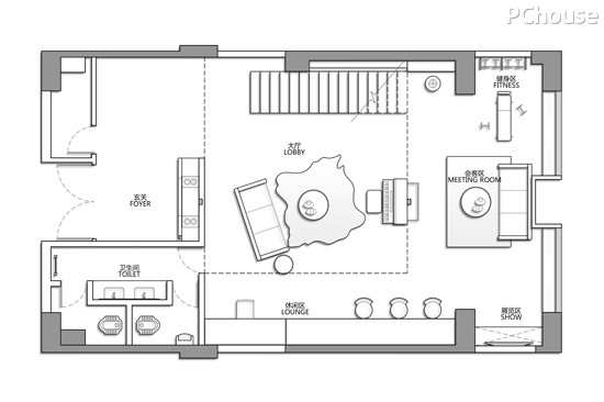
平面布置图一楼
平面布置图二楼


李召莉
2016-1-07 09:43:24
















