【太平洋家居网 设计频道】一座上海百年老洋房,在见证了历史的变迁后,面容也开始变得憔悴不堪......业主告诉我们,这是父辈留下来的老洋房,虽然翻新的过程可能会遇到不少难题,但还是希望为它换上新装,怀着对过去的那份念想,留住时光里的美好。那么,面对百年老房的翻新设计,设计师是如何化腐朽为神奇?又是如何提升房子的幸福指数?不妨在本期的设计案例里找找答案吧!
| 户型基本信息 | |||||
| 所在地区 | 上海-虹口区 | 户型 | 二居型 | ||
| 实用面积 | 60平方米 | 装修预算 | 15万 | ||
| 常住人口 | 一家三口 | 装修风格 | 现代简约 | ||
| 本期主设计 | 曾祥春-室内设计师 | ||||
| 设计需求 | 1、希望空间简约但不失品位,能足够储藏各种生活用品和杂物 。 | ||||
| 2、重新粉刷墙面,以暖色调为主,灯光颜色不要太杂,舒适即可。 | |||||
| 3、合理布局空间,把厨卫分隔成两个独立空间,满足一家三口需求。 | |||||
| 4、套内有楼道,采光差、较阴暗,希望楼道巧妙设计,突出房型特色。 | |||||
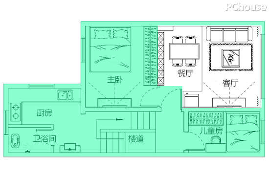
业主提供的原始户型图:
原始户型图
原始户型分析:
1.老洋房户型小,格局分布不合理,整体空间采光比较差;
3.厨房和卫浴间在同一楼层,但功能分区不明确,通风也不太好;
4.偏矮的楼道空间较阴暗,深色木纹的楼梯显得既狭窄又压抑。
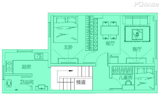
曾祥春设计师提供的设计图:
平面设计图
3D全景效果图(日光版)
3D全景效果图(夜视版)
设计案例分析:
1.巧妙改造原有格局,并针对采光差的地方进行亮色设计,整体呈现时尚、舒适感;
2.利用有限空间,将阳台的墙体拆掉,合理划分客厅、餐厅,满足业主需求;
3.灵活运用厨卫空间,卫浴间设置干湿分区,厨房以L字型呈现,实用且美观;
4.楼道设计简单,但在墙面和地板装饰上花心思,提高整个空间的亮度与质感。
Part 1:客餐厅设计
设计解读:如何在有限的客厅空间设计一个餐厅,更好地满足业主的日常需求?设计师把原有的阳台墙体拆掉,巧妙地将客厅的地台升高,完美地将客厅与餐厅进行隔断,并在视觉上明显区分出不同的空间,提高了整体区域的层次感。
客餐厅设计效果图
设计解读:设计后的客厅空间焕然一新,每一个角落都散发着时尚、舒适感。重新涂刷的淡黄色墙面,与柔和的灯光形成色彩上的统一,而白色的布艺沙发与黑色拼接茶几自然搭配出简约氛围,沙发背景墙上的装饰画则表现出现代与时尚的质感。
适合此空间的单品推荐:
(点击马上拥有)
单 品:简易沙发
价 格:¥1799.0
Part 2:厨卫设计
厨卫设计平面图
设计解读:厨房和卫浴间是业主每天必须使用的空间,也是这次老洋房装修的重点之一。设计师破解狭小厨卫布局,注重功能性,提升了整体空间的实用率与采光率,把卫生间的“干”和“湿”彻底区分开来,弥补了以往由于干湿混乱而造成的使用缺陷。
厨卫设计效果图
设计解读:厨卫被分为两个独立的空间,各司其职,很好地提高了便利性。L字型厨房满足洗、切、煮等基本操作功能,洗手台和层柜的设置,增加了空间的储物性能,而墙面铺设浅黄色方格跳色砖,组成围合区域,打造出一个简约且明亮的极致空间。
适合此空间的单品推荐:
(点击马上拥有)
价 格:¥450.0
Part 3:楼道设计
楼道设计平面图
设计解读:年久失修的楼道,墙面与地面的缺陷,让业主感到十分头疼。面对着暗沉的楼道,设计师摒弃原有的木制楼梯,重新铺上地砖,墙面刷上浅黄色的环保涂料,让原本不显眼的楼道摇身一变,给人一种时尚清新感。
楼道设计效果图
设计解读:在楼道空间里,设计师把灯光藏于楼梯间,灯光的合理布局、墙面上的巧妙装饰,都能让我们在细微处发现设计之美,也让原本阴暗压抑的空间变得敞亮、独具个性,加上绿植的点缀,让这个空间不再单调,更添自然气息。
适合此空间的品牌推荐:
(点击马上体验)
品 牌:立邦刷新服务
简 介:立邦刷新服务是由立邦公司为消费者提供的涂料施工服务,包括墙面涂刷和木制品家具涂刷。
设计验收:
本期业主反馈:设计之前,百年老洋房问题重重,根本不知从何入手装修。看到设计图后,老洋房换上华丽新装,摇身一变时尚公寓,这让我们感到十分惊喜,也为我们提供了明确的装修方向和目标。
本期设计师点评:由于结构较为复杂,如何使房子变得通透而开阔,给业主一种时尚、舒适感,这是我设计之前必须考虑的问题。重新设计后的老洋房,不论是墙面装饰,还是家装布置,都带有“现代时尚范儿”。
PChouse编辑点评:改造后的房子,保留了原有的老房故事,也刷新了我们对它最初的陈旧印象。整体色调统一和谐,显得更加明亮、舒适,最大化地满足了业主一家三口的生活需求。


张明慧
2016-5-17 17:22:10














