【太平洋家居网 设计频道】“上有天堂,下有苏杭。”杭州自古繁华,然而在“天堂”都市的城西,却有一块地貌风光依旧原始的“净土”,它就是“西溪”。千百年来,西溪静静地处在这繁华城市的一隅,将自然山水与都市霓虹完美结合。金地·西溪风华叠墅,毗邻于具有杭州“三西”美称之一的西溪湿地公园,室内设计延续了杭城地域的人文风雅,将新东方韵味与现代生活相糅合。
样板间设计
【项目简介】
项目名称:金地西溪风华叠墅样板房
项目地点:中国 杭州
项目面积:273㎡
室内设计:杭州易和室内设计有限公司
室内设计主案及执行:李丽、林兴娟
软装设计主案及执行:祝竞如、叶子丰
设计指导:马辉、韩舒
【关于设计团队】
设计团队
易和设计,于1996年由著名设计师马辉创立,总部设在杭州,立足国际化视野,吸引全球化的设计人才和研究经验。易和设计始终专注于地产室内空间设计领域,在中国市场为客户提供地产的全套室内设计解决方案和一体化服务。秉承“设计创造价值”的服务理念,已设计完成了众多样板房、售楼处、会所及办公空间项目,设计作品遍布浙江、江苏、上海、山东、山西、辽宁、河北、四川等全国十多个省市自治区,与绿城、金地、保利、恒大等国内多个知名地产集团进了广泛合作。
极尚装饰设计,是一家专业的工装项目软装设计公司和整体软装产品服务商。拥有一支专业的软装设计团队,为客户提供咨询、设计、定制、采购、安装一站式整体软装服务,量身订做独特的家居产品,从整体风格出发进行专业搭配,全方位塑造居室的形象及细节,充分体现不同空间的性质特征与品味内涵。公司代理数十个国外著名家具、灯具、饰品品牌,也代理了个国内高端家具品牌。同时,在上海、深圳和国外拥有长期合作的家具、灯具定制工厂及饰品供应商,可为客户定制生产个性化的高端家具、灯具、窗帘布艺、饰品等整体软装产品。
部分代表作品及获奖经历:
全国第二届室内设计大展银奖—无锡中国银行大厦
全国第三届室内设计大展优秀奖—浙江杭州萧山机场航站楼
华耐杯酒店宾馆工程类一等奖一泉宾馆(镇江)国宾馆
中国室内设计双年展优秀奖—EHE室内设计办公空间
中国建筑装饰协会优秀奖—绿城台州玫瑰园售楼处
中国建筑装饰协会优秀奖—EHE办公空间
>>>>>关注 马辉 主页@PChouse设计师俱乐部
样板间设计
设计说明:整个居所,充满了东方色彩,与周边环境协调共生。独具匠心的设计,令尊贵闲适的高尚人居由此展开。踏入一层客厅,在色彩处理上,圣罗兰灰、雅柏灰两种石材在视觉上的弱对比,中式灰调的典雅气质扑面而来。
样板间设计
设计说明:空间选材丰富多样,家具饰面主要以高光漆为主,辅以亮面丝绒和丝质面料的软饰为居所锦上添花。设计师在与空间的对话中,细致拿捏着静谧与活跃、朴素与奢华、当代与传统的关系。
样板间设计
设计说明:随着整幅背景墙上的水墨山水,视线自然过渡到了餐厅。司空图《诗品·雄浑》云:超以象外,至大不可限制;得其环中,理之圆足混成无缺,如太极然。圆,寓意阖家团圆,是不可或缺的中式元素,以不同的具象再次映入眼帘。设计师化繁为简,餐桌椅则以更符合现代人审美的造型夺人眼球。在细节的把控上,花艺与饰品让中式韵味娓娓道来。
样板间设计
样板间设计
样板间设计
设计说明:越低密的尊贵居所,越需要多元化的公共活动空间来满足社交需求。地下一层的书房,入世可招朋待客,出世亦可修养身心。饰品点缀上,更是涵盖了铁艺,锡器,铜艺,陶瓷等中式传统工艺品与现代雕塑。
样板间设计
样板间设计
设计说明:移步到私密空间,主卧流线清晰。背景墙上的《清明上河图》和《花鸟》图案,彰显主人的品味与沉淀。偌大的飘窗将自然光线引入室内,闲暇时主人家亦可沏一壶香茗,在繁华里,静看繁华,于声色中,不动声色。光影交错中,设计师务求将东方神韵之精华融于其中,以造东方之境,成淡雅之家。
样板间设计
设计说明:卫生间的布置,不仅具备现代生活的便利,还具有了清新雅致的线条美。
样板间设计
样板间设计
设计说明:空间因人而有“温度”,也因人而有“气质”。老人房,最大限度地利用自然采光,增加室内的空间感,令人返璞归真,心情舒适。
样板间设计
设计说明:女孩房以“米菲”为主题。在有限的空间里,设计师关照需求并精心提炼,利用飘窗的位置打造出了儿童房的睡觉区域、书写区域和玩乐区域。色彩搭配上,以灰色墙纸为基调,搭衬以粉色色块的墙绘,追求童趣而又不失格调。
样板间设计
设计说明:对于男孩房的设计上,设计师投其所好,将“棒球”作为主题。大色块的对比,强烈的视觉冲击突显空间质感,灰色和黄色的碰撞激发出人们对男孩活力的想象。为了摆脱单调,天花上的走边和床头的手绘,令空间层次感尽显。
样板间设计
设计说明:儿童活动区,让孩子放飞灵感,尽情玩耍吧!所谓伊人,在水一方;亭亭静立,韵味东方。不远离都市,却已升华人生境界。生活本真的回归,使其与杭州财富阶层返璞归真的信仰与风雅精致的气质完美交融。
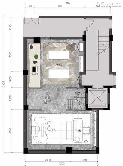
平面图
平面图
平面图
平面图


李召莉
2016-10-08 14:06:09




















