【太平洋家居网 设计频道】好的空间设计,可以让居住者跟空间产生交流,甚至是共鸣。本案中,设计师杨铭斌的创作灵感来源于他的生活哲学,并贯彻了物件与空间周围环境进行嵌入式融合的设计理念。通过氛围的营造、场所的变更以及人与空间的互动,打造了人们心之向往的“诗意景观”。
【项目基本信息】
总设计单位:HONidea硕瀚创研
软装艺术陈设执行单位:东西无印
主持设计师:杨铭斌
项目地址:广东 佛山
设计时间:2016年4月-5月
完工时间:2016年12月
【关于设计师】
杨铭斌
硕瀚创研 创始人&主持设计师
CIID中国建筑学会室内设计分会 注册高级室内建筑师
CIID中国建筑学会室内设计分会 全国理事
CIID中国建筑学会室内设计分会 专业会员
ICAD国际商业美术设计师
50位中国优秀青年室内设计师
高校艺术设计系特聘讲师
设计驱动产业升级 先锋人物
香港TOPPER(拓珀)家具品牌 设计顾问
DCC(德盛昌)家具品牌 首席设计师
UMGG环球石材集团 产品设计研发顾问
在空间设计、陈设艺术、产品研发、品牌策划领域有着丰富经验的多面手和实干家
社会荣誉:
美国IDA DESIGN AWARDS |Honorable Mention荣誉奖
意大利 A’DESIGN AWARD |银奖
加拿大GRANDS PRIX DU DESIGN设计大奖 |银奖
香港APIDA亚太区室内设计大奖 |金奖
中国建筑设计奖
台湾GOLDEN PIN DESIGN AWARD金点设计奖
台湾室协TnAID六艺奖 | 华人设计界最具发展潜力设计机构
APDC亚太室内设计精英邀请赛 |银奖
CIID中国室内设计大奖 |银奖
现代装饰国际传媒奖 |年度样板空间大奖
中国室内设计艺术周场外展最高荣誉-金奖
美国INTERIOR DESIGN杂志“金外滩”奖-最佳酒店空间奖
美国INTERIOR DESIGN杂志“金外滩”奖-最佳公共空间奖
CIID中国陈设艺术大奖 |铜奖
广东省陈设艺术协会-享受家空间陈设设计大奖 | 住宅空间金奖
时代楼盘 “金盘奖”示范单位奖项 |最佳示范单位金奖
现代装饰国际传媒奖 |最具潜力设计师
中国商业和旅游地产设计年会 | 年度优秀商业空间设计师
中国商业和旅游地产设计年会 | 年度优秀住宅公寓设计师
中国商业和旅游地产设计年会 | 年度十佳商业空间设计师
广州国际设计周 -城市设计名片奖项(佛山代表)
广州国际设计周 | 十大石尚设计先锋人物
佛山室内设计“十年·十人”荣誉
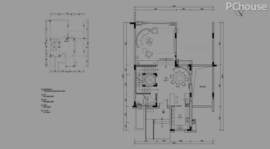
【项目平面图】
【进入具体空间赏析】
编辑点评:在空间中,设计师希望看到的是一种交流、一种相互予求,让居住者的心境和行为可以随心而变。此时的空间存在,引发一种自由移动的感觉,一个漫步的环境。 一种心境,更多的是诱导人们,而不是把人们指来引去。设计师用台阶对客餐厅进行连接,拾阶而上,便来到了客厅。
编辑点评:客厅的设计以浅色作为空间的基调,在大理石、墙布、软装、金属及当代艺术家的原创艺术品的多重烘托下,营造出一种文雅而现代的居室氛围。开阔的落地景观,把室外的光线引入到室内,只需根据光照时间的变化,空间的表情也随之丰富、变幻。
编辑点评:由于客厅层高充裕,设计师便在客厅区域运用了对称和简练的线面构成手法,以吊顶与台阶进行空间划分。开放而流畅的动线规划,模糊了公共区域的具体界限,但也确保了相互之间的独立与完整机能,呼应了“漫步”与“游走”的闲适设想。
编辑点评:以大面积的高级灰作为空间基调,大胆的跳色和金属线条的运用可以在抹掉空间冰冷的同时,增加整体的质感。各个艺术单品的陈设,在原本简约的空间线条中是一种恰到好处的点缀,让空间在时尚与艺术的交融中展现自己的个性。
【进入具体空间赏析】
编辑点评:在餐厅区域,透明的玻璃水晶以及软装和花艺,让空间在色调和形态上更加丰富。圆形的餐桌更适合中国人的用餐习惯,几把幽灵椅也让空间更加通透而富有灵气。
编辑点评:灯光与灯具造型完美配合,随着昼夜的变化呈现出不一样的韵味,让空间尽显高雅而自得之意,同时也为空间增添多了一份通透感,让人安心地在此体会岁月静好的曼妙。
编辑点评:连接吧台的另一边,是一个露台设计。别致而富有生机的绿植布置,让露台有着迷你小园林的即视感,幽静而闲适,跟室内的气韵可以很好地融合在一起,互相渲染。时而传来的鸟鸣,则让整个空间显得更是写意。
【进入具体空间赏析】
编辑点评:由于错层的建筑结构使空间产生了一定的高度差,为了避免压抑,设计师在梳理空间功能分布的时候把走动较少的功能空间安置在普通层,并且通过镜面和灯光效果把空间压抑感减到最低。
编辑点评:从软装上延伸出来的细节追求,体现的不仅是空间熏陶出来的意境,更是对生活细节追求的态度。这样带有生活气息和主人个性色彩的空间,才能在不经意间产生更多的对话及情感,从而让住所变得有温度、有态度。
编辑点评:在休闲区的立面处理上,设计师把大理石、玻璃以及茶镜三者结合在一起,使原本不对称的背景墙更加和谐庄重,也不经意放大了空间的视野;工作区域的布置,较为现代简约,不同于普通的书房,办公桌椅、灯具、地毯方面都是经典的黑白配,显得时尚而个性。
【进入具体空间赏析】
编辑点评:空间规划的合理划分能够提升业主的生活质量。于是,设计师将整三层划分为主人活动区,并舍去原主卫生间的部分空间纳入到衣帽间,让整个区域形成回路动线,整体效果流畅而宽敞。
编辑点评:主人房床头背景的屏风水墨元素为空间的主视线,并以镜面延伸,虚实交错,增加了情趣丰富了视觉;天花四周的灯槽是整个空间氛围的渲染光源,犹如在月光底下那水墨般的丝丝白雾,飘散贯穿于空间中。
编辑点评:带有特殊印刷的砖面让整个卫浴间呈现出一种复古而摩登的样貌,在黑白灰为基调的空间中无疑是一道独特的风景线,同时也让家居的艺术造诣更上一层。


余莹莹
2017-2-13 09:00:42
























