【太平洋家居网 设计频道】“空间是扑捉生活的影子”,本案以都市单身年轻人生活方式为定位,植入了都市雅痞的设计理念,打造了一个充满了现代精致的都市空间。
【项目基本信息】
项目名称:观澜·宝观城J户型样板间
设计范围:室内设计
建设单位:深圳市锦福城房地产开发有限公司
设计公司:深圳市宇一室内设计有限公司
设计面积:30平方米
项目性质:展示样板间
项目位置:深圳 龙华
主要品牌:定制
设计时间:2016年12
竣工时间:2017年05
设计师:齐鹏达
硬装主设计师:张楠
软装设计师:朱莎、郑雅心
团队设计师:肖喻铭、郑志东
【设计师简介】
齐鹏达 创始人&总设计师
齐鹏达先生从事室内设计行业20余年,其中9年的室内设计、5年的精装修施工管理、7年的精装修木制品研发及工程管理经验,100多个地产类设计案例。多年的精装修研究经验,具有精装修设计理念和成本意识,可为企业制定有针对性的精装标准。对精装修的可控设计、收纳空间、部品定制、成本控制有丰富经验。
齐鹏达先生带领宇一设计团队,参与了国内多家一线开发商的精装修住宅、售楼处、会所的室内设计与精装研发及软装设计、施工等工作。专注于地产与高端豪宅领域设计,提供“设计、软装、工程设计”三位一体的专业服务。带领宇一设计一起,致力于成为集:创意、经验、成本控制能力于一体的优秀的综合服务商。
默默努力,也得到了业界的认可与好评,2015年—2017年间齐鹏达先生带领宇一团队,荣获了包括金堂奖、艾特奖、金外滩奖、ABBS、PChouse时尚盛典、新楼盘、中装协、鹏鼎奖、地产设计大奖等多个专业室内设计大奖赛平台的二十余个奖项认可。
个人及公司获得荣誉:
莱蒙新业务办公室——2017金外滩奖
莱蒙新业务办公室——2017鹏鼎奖
莱蒙·创智谷——2017鹏鼎奖
佛山招商臻园L-1——2017鹏鼎奖
平潭龙居•财富天下——2017居然设计家杯陈设艺术
平潭龙居•财富天下——2016红鼎奖
平潭龙居•财富天下——2017多乐士空间色彩奖
莱蒙•创智谷——金堂奖•2016中国室内设计年度评选——年度优秀售楼处
莱蒙•创智谷——2016PChouse时尚设计盛典
佛山招商臻园 L-1——2016PChouse时尚设计盛典
莱蒙•创智谷——荣获ABBS丨2015年度新传媒大奖——年度室内设计奖
深圳中心•天元——荣获2015年新楼盘“美居奖”中国最美样板间
深圳市宇一室内设计有限公司——2015—2016年度十大最具原创设计机构
惠州莱蒙水榭湾销售中心——荣获中国好楼盘金盘奖
郑州华润悦府——2015年艾特奖
智慧广场会所——2015年艾特奖
朱莎
软装设计总监
省钱专业的评估、始终在预算和计划内工作、资源的独特性。
主要履历:
10年专注于室内软装设计工作,主导及参与了多个地产公司售楼处和样板房室内软装设计与实施工作,对软装设计项目设计与实施有丰富经验。 部分代表作品:昆明中海半岛华府、海口东方天澜会接待处、深圳心海城、深圳吉祥里、莱蒙创智谷、成都中海中信城·右岸、深圳智慧广场会所、武汉瑞景天成、武汉顶琇国际城、上海魔方社区、深圳熙璟城、上海保利南汇林语溪别墅样板房软装配饰、成都保利198公园蝴蝶谷别墅样板房软装配饰、杭州保利东湾多层住宅样板房软装配饰、长沙保利麓谷别墅样板房软装配饰、深圳皇城地产廊桥国际销售中心、国际3套样板房软装配饰、银川中海国际社区2套多层住宅样板房软装配饰、莱蒙水榭湾售楼处、精装修样板房软装配饰、天津天骥丽湖售楼处、精装修样板房软装配饰、郑州华润悦府样板间及大堂软装配饰等。
【关于设计公司】
【进入具体空间赏析】
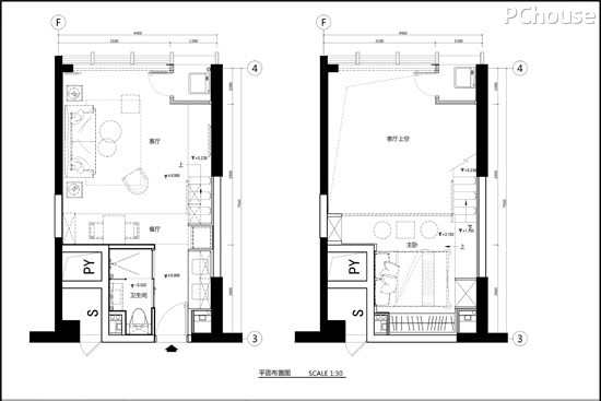
编辑点评:整体空间高度3.4米,如何充分利用层高,增大空间使用率。是设计师打造这个微缩版小LOFT的首要任务。
编辑点评:从入户通道与一体化厨房,从二层站立平台到睡眠区域,都进行了合理巧妙的高低差设计,以达到最合理的使用效果。
【进入具体空间赏析】
编辑点评:餐厅一侧则设计为一整面落地银镜,使小空间的视觉感得到最大延续。简洁的白色大理石桌面、黑色拉丝钢的桌脚结合自然的木色地板,精美细节赋予空间低调典雅的气质。
编辑点评:优雅木色沿用至立面空间,开放式厨房、具有储物功能的楼梯踏步、简约大气的电视柜三者一体化设计。强大美观的储物设计,将立面空间用到极至。墙面的艺术挂画组合将燃情的生活气氛点缀得恰到好处。
【进入具体空间赏析】
编辑点评:家居饰品上同样也以米咖色皮革和白色台面相结合,营造出精致的生活品质。二层卧室的艺术玻璃主背景。鲜明的色彩,酷帅的动物造型,玩味无限的艺术效果尽显。
编辑点评:俯瞰整个客厅,以浅色的木饰面为主色调,配以深色案纹背景,使空间层次感提升。以趣味的油画为视觉中心,突出了整个空间的主题和艺术情怀。


余莹莹
2017-8-31 09:13:30
















