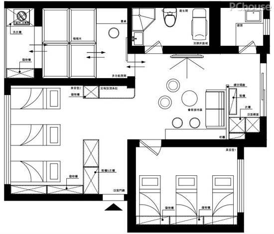
Part1:接待区设计
虽然这个空间不大,但沙发、吧台、电视以及展示柜都一应俱全,墙面采用原木黄色,也让空间从视觉上增大不少。同时,设计师出于层高的考量,于是在天花上采用乳白色,产生一种纵深感,让空间不会显得压抑。
适合此空间的品牌推荐:
(点击马上拥有)
单 品:纯境A+净醛抗菌全效内墙漆
Part2:美容室设计
这个客厅改造成的美容室,本身面积不小能够放下三张美容床,为了使空间既能保持通透又有一定的私密性,于是使用了镂空的隔断墙作为分隔。与接待区不同的是,美容室整体色彩更加高雅,这种颜色会给人带来一种安宁之感,实现全身心地放松。
适合此空间的单品推荐:
(点击马上拥有)
单 品:竹炭A+抗甲醛全效内墙漆
Part3:多功能房设计
这个多功能房需要承担储物、学习、睡觉等多种功能需求,于是设计师采用了榻榻米+书桌的形式,榻榻米可以满足储物与睡眠的功能,同时还能为客厅提供一个休闲等待的角落。真正把商住两用发挥到极致。另外,选择环保的材料也是这个空间的设计重点。
适合此空间的品牌推荐:
(点击马上拥有)
单 品:妙想A+纯环保儿童内墙漆
设计验收:
本期业主反馈:交给设计师前毫无头绪,效果出来后非常满意!这是一个非常困难的改造项目,从功能到空间设计师都进行了全新的规划,即便我的改造需求清单长达十几条,但设计师依然非常有耐心以及细心的完成了,并且最后效果也让我非常满意。
本期设计师点评:如果旧房可以拆改,呈现效果会更好。从业主的需求来说,既要满足日常居家功能又要满足商业需求,其实对于我来说难度不大,与我之前参加一个电视改造节目时遇到的项目相似,在对于空间功能的实现上,没有太多的难点,只是由于这个房子是老房,无法拆改,所以在设计时,推翻了拆改的方案又重新做了这一套,第一个方案没办法实现觉得还蛮遗憾的。
PChouse编辑点评:旧房改造是检验设计师专业程度的重要标准。alan在重重限定下,依然做出了让人惊艳的设计,足以证他的实力。此外,在设计中,他还非常贴心地为业主推荐了华润漆, 让整个空间更加环保,也更加符合美容工作室的调性。
【设计师简介】
黄鹤鸣
广州艾伦设计事务所设计总监。
2014年进入室内设计行业,作为90后新生代设计师,黄鹤鸣立足于当下家居潮流,用专业的设计手法与独特的美学视角,为客户在冰冷城市中打造最温暖治愈居所。
擅长小户型空间规划与大户型空间深化,在风格上不落俗套,对色彩有着极强的敏感性,以大胆新颖的配色广为人道,力求为平凡生活注入新的力量与美好。精通手绘,擅长手绘效果图,曾获广东省“和谐杯”手绘设计技能大赛二等奖。
2017年参加安徽卫视大型家装改造真人秀节目《就匠变新家》而受到观众的广泛认识与喜爱。
设计理念:
找到客户需求和专业视角之间的平衡,用最包容开放的态度,与最精益求精的设计,为客户带来更好的生活。
电话:13250505047
邮箱:Alandesignstudio@yeah.net
微博二维码:


佚名
2017-10-25 16:59:41












