【太平洋家居网 设计频道】京基御景中央位于龙岗大运国际大学城片区。秉承“创造精品,改变城市”的理念,打造醇熟、舒适、宜居的人文美宅新典范。本项目户型方正实用,整个空间采光充足,居住舒适度高。入户玄关柜双功能柜设计,将空间利用价值最大化。每一个细节的铺排,都呈现出令人舒适的气氛。
【项目信息】
项目名称:深圳.京基御景中央85A
建设单位:京基地产
设计公司:深圳市宇一室内设计有限公司
总设计师:齐鹏达
硬装主设计师:蔡锐
团队设计师:周艺、胡淑婷
设计面积:86平方米
项目性质:展示样板间
项目位置:深圳 龙岗
主要材料:皮革、石材、木饰面、夹花玻璃、镜钢、地毯
客厅运用时尚的线条元素与温馨的暖色调衬搭,营造出轻松愉悦的氛围,迎合当代人的生活方式。材质上运用皮质、玻璃与金属的硬朗相互碰撞融合,打造出时尚轻奢的居住空间。
餐厅延续整体风格及色调,呈现出一种宽敞延伸的效果。软装色彩上运用黑白灰点缀明黄,从视觉上给人一种既时尚又不失个性的空间感受。
主卧床头背景墙处理简洁而富品味,结合软装配饰烘托出空间怡人温暖的属性。2.8米超宽落地窗,将清晨的第一缕阳光和微风送入,开启美美的一天。
儿童房设计了适合小空间的多功能可变家具,带储物功能的床、衣柜、书桌一应俱全。留出了开阔的活动空间可供小朋友玩耍。
次卧线条明快,沉稳温润的墙纸搭配清新活力的艺术挂画, 灰白色的柔软床品搭配上一抹浅黄点缀。提高空间的精致感。
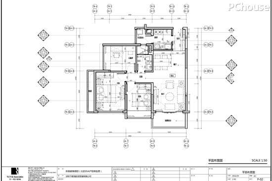
85A京基御景中央平面图
【本案设计师】
齐鹏达
深圳市宇一室内设计有限公司 执行董事&总设计师。
齐鹏达先生从事室内设计行业20余年,其中9年的室内设计、5年的精装修施工管理、7年的精装修木制品研发及工程管理经验,100多个地产类设计案例。多年的精装修研究经验,具有精装修设计理念和成本意识,可为企业制定有针对性的精装标准。对精装修的可控设计、收纳空间、部品定制、成本控制有丰富经验。
齐鹏达先生带领宇一设计团队,参与了国内多家一线开发商的精装修住宅、售楼处、会所的室内设计与精装研发及软装设计、施工等工作。专注于地产与高端豪宅领域设计,提供“设计、软装、工程设计”三位一体的专业服务。带领宇一设计一起,致力于成为集:创意、经验、成本控制能力于一体的优秀的综合服务商。
默默努力,也得到了业界的认可与好评,2015年—2017年间齐鹏达先生带领宇一团队,荣获了包括金堂奖、艾特奖、金外滩奖、ABBS、PChouse时尚盛典、新楼盘、中装协、鹏鼎奖、地产设计大奖等多个专业室内设计大奖赛平台的二十余个奖项认可。


佚名
2017-12-22 11:01:49













