【太平洋家居网 设计频道】业主要求打造现代简约风格,但本案楼龄较大,建筑风格极富年代感,原建筑框架无疑成了一个巨大的障碍。如何在旧风格的框架结构里打造一个简约而又不失时尚感的现代室内家居环境?这就非常考验设计师的专业能力了。
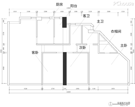
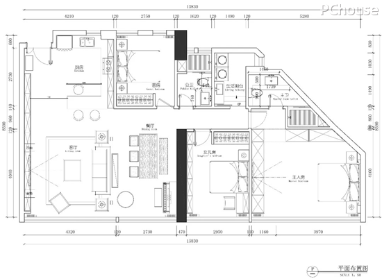
《白驹》新旧建筑框架对比
《白驹》效果图与实景对比
完工实景
原客卧改造成餐厅(效果图)
客卫
主卧
主卧实景
原衣帽间再占用了一点原主卫的空间改造成主卫(效果图)
主卫实景
次卧(效果图)
次卧实景
“天然去雕饰”,原指水芙蓉美而不艳,具有一种超凡脱俗的天然美,后引申至艺术作品中,指那些摆脱了元素的堆砌、无谓的修饰、空虚的技巧的至真至纯的艺术品。现用来形容本案再合适不过了。本案摒弃了浮华敷饰,以功能为出发点,却又十分耐看,经得起看。
【案例信息】
项目名称:白驹
主案设计:杨洁
设计风格:现代简约
室内面积:130㎡
项目地点:中国广州
软装设计:广东启呈装饰工程有限公司
CHD启呈装饰 / 李忠光设计事务所
【本案设计师】
杨洁 · 高级设计师
一个愉悦的空间,一种尊贵的生活,一方独享的天地,需要寻求最合适的表达。
2017年 GSDA卓越设计大师赛优秀作品奖
2015年 广州室内设计大赛优秀奖
2014年 青年设计手稿表现三等奖
2013年 广东省岭南杯特装展示设计大赛 三等奖
2012年 广东省岭南杯特装展示设计大赛 二等奖
版权和免责声明
凡本网注明“出处:其他”的内容,均转载自其它媒体,转载目的在于传递更多信息,并不代表本网赞同其观点和对其真实性负责。 如有侵权及时联系本网站,本网将在第一时间删除!转载内容的准确性由原内容提供者独立承担完全责任!


佚名
2018-9-10 10:03:10




































