【太平洋家居网 设计频道】来自辽宁大连的网友,实用面积70平,2房2厅的格局。网友希望以实用为主,简约不简单,不喜欢镜面效果,更重要的一点是希望房间有储物空间,便于清扫和擦拭。下面我们一起来看看设计师给出的方案。
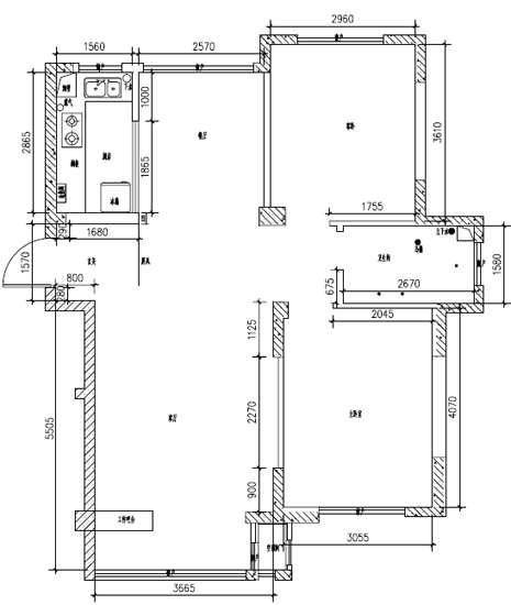
原户型图
大连报名网友 | |||
建筑面积 | 85㎡ | 实用面积 | 70㎡ |
喜爱风格 | 现代简约 | 房屋布局 | 2房2厅 |
常住人口 | 2人 | 装修预算 | 10万以内 |
具体需求 | 1、客厅能够有一个工作吧台。 2、餐厅靠东侧为与卧室相邻的墙,希望布置一面酒柜,作为储物空间。 3、卫生间比较小,需要放置智能马桶,淋浴,浴柜及洗衣机。 | ||
以下是设计师结合原始户型和和网友的需求给出的平面设计图:
点击放大
细节分析:
1、应业主要求,在不影响大局几实用性的基础上,尽最大可能的充分利用空间。
2、进门右侧,做一嵌入式玄关柜,满足日常出入的更衣需要,客厅的进深较长,在靠窗处,做一地柜,增加实用性,柜体上面,还可摆放 一些主人喜欢的工艺品增加空间的美观。
3、客厅影视墙,没有做任何的修饰,只是做了一个色块的处理,然后用木制作,做通体的影视柜,及隔板形式,增强视听区的进深感及层次,也是沿袭简约风格常见做法。
4、整体的色调,采用白色,中性色,适当搭配咖啡;驼色及黑色。
5、地面部分,可用浅咖啡做穿边,也可不做,客厅茶几布置一块驼色植绒地毯,既舒适又美观。
转载申明:太平洋家居网独家专稿,未经授权不得转载!
推荐阅读:
44期免费设计 2套100平简约3房免费方案
43期免费设计 2套160平4房免费方案
15万80平VS50万180平 2套免费设计方案
以下图片为局部参考效果,并非为网友户型专门设计
玄关参考:进门左侧,做一嵌入式玄关柜,满足日常出入的更衣需要。右侧加以白色镂空的屏风。
客厅参考:整体的色调,采用白色,中性色,适当搭配咖啡、驼色及黑色。使得客厅看起来整洁干净有质感。
主卧参考:主卧室的设计依然沿袭客厅的色调,以白色为主搭配以软包。地面则以采用低明度,中性色调的地板,地毯等柔性元素。
衣柜参考:定制衣柜可以使得空间利用最大化,里面的收纳格子和样式可以根据自身要求来定制。
次卧参考:在影视墙做了通墙的隔板,靠近窗户的则是550的工作台,可写可读,亦可做工作台,也可做梳妆台,门后的部分则是根据墙体的限制,做开架或不开架的储藏柜,虽然不深,至少可以利用一下。见此图的门后。
卫浴参考:干湿分区,沿袭客厅的色调,以深灰和咖啡色为主。
转载申明:太平洋家居网独家专稿,未经授权不得转载!
推荐阅读:
44期免费设计 2套100平简约3房免费方案
43期免费设计 2套160平4房免费方案
15万80平VS50万180平 2套免费设计方案


ting
2013-1-23 00:15:31









