【太平洋家居网 设计频道】老子说:“上善若水,水善利万物而不争。”水,作为世界上最具观度的自然物质之一,能穿于地,腾于空,奔于山,历经种种,滋养万物,孕育出慰藉深厚的文化。南昌自古“襟三江而带五湖”,有着“中国水都、鄱阳明珠”之称。而最让南昌闻名于世的无外千古名篇《滕王阁序》中“落霞与孤鹜齐飞,秋水共长天一色 ”,给人留下绝美的印象。
水深水浅东西涧,云去云来远近山
——徐再思(元)
▲意向图 Concept Image
▲外观 Appearance
早在一千多年前的唐代,南昌就是一幅水与城相依、人与水共生,天人合一的场景,随着时代的发展的当下,我们置身于此时也会发出同样的感觉,水无声无息,却又无处不在。
▲空间局部展示 Local Spatial Display
新力樘悦售楼部坐落于南昌九龙湖,得益于“城在水上走,水在城中流”的真实写照,设计师以水为题,从艺术装置到人文文化,从空间布局到功能动线,在具象与抽象,写实与写意之间梭巡,又光影缱绻,在水形态变化间有无穷的妙意。
01.信步闲庭
▲意向图 Concept Image
步入前台,黑色线条贯穿着白色块面,在无形间拉开以水为题的帷幕。不仅是关于空间形式和材质,而是对于艺术、文化和情感共鸣的全新梳理,是对于“水”这一元素的大胆探索。
▲接待大厅 Reception Hall
“繁杂的重叠不如留白来得随意,让水的线条随着人们的行走,化作空间的舞者,在光影斑驳下欣然起舞。”设计师如是说。
▲接待大厅 Reception Hall
前厅背幅的通道充满简介的层级感。通过深思熟虑的路径引导来访者,于不同的高度体验空间,宛如穿越一段历史的旅程,探索其中的奥秘。
02.行云流水
▲设计概念图 Design Concept(动图)
苏轼在《答谢民师书》中提到:“大略如行云流水,初无定质,但常行于所当行,常止于不可不止,文理自然,姿态横生。”苏轼将行云流水类喻诗赋之道,追求理意传神,设计亦是如此。
▲模型区 Model Area
拔高的空间素净透亮,设计提取水的千姿百态,或静或动,或刚或柔,为空间带来婉转起伏之美。沙盘宛如赣江中摇曳的船只,吊灯垂落似轻盈流畅的江水,相互交织,非常具有画面感的空间构造,流露出来的是对隐逸山水的那份倾心。
▲意向图 Concept Image
▲过厅 Lobby
“希望一抬头,便见婉转流水,窗外洒进来的阳光,在跟随我的步伐下,感受水的柔和清透。”设计师如是说。
03. 曲水流觞
▲设计概念 Design Concept
围水而坐,携客吟诗作画,“曲水流觞”向来是文人燕游的一件雅事。设计师在咖啡书吧的这个空间中,将古人在山溪之间饮茶吟诗作画的画面,用现代的言语开启全新的探索,犹如在流动的山溪边,与来访者共同找雅趣。
▲咖啡书吧 Cafe
▲天花布置图 Ceiling Plan
咖啡书吧的天花上,设计师用一条飘荡的蓝色水带徜徉于空间中,邀请每一位来访者入座,共赴一场当代曲水流觞的文化之旅。
▲艺术装置 Art Installation
疏朗简净的现代语言,与书柜上方水滴装置相结合,仿佛涓涓流水汇聚成形,寓意浩瀚的书籍世界。
▲咖啡书吧 Cafe
“不积跬步,无以至千里;不积小流,无以成江海”韵味深长的诗句依然回荡耳边,通过艺术的形式,让繁忙都市的精英人群回归到住所本身,闲时静坐其中,茗茶一杯,翻阅几本书籍,静静体悟“为人若水,而不是山”的精神。
04.光之水幕
文学大师果戈理曾说,“当歌曲和传说已经缄默的时候,建筑还在说话。”每座城市烙印生长的建筑,承载着历史人文的印记。
▲意向图 Concept Image
波光粼粼的玻璃砖墙面让人想起赣江的秀丽景色,呼应了蓝色水系艺术装置。拉丝香槟金在灰色、白色墙体中跳跃其间,唤醒了空间活力。
▲水吧区 Resting Area
通透的落地窗下,室外自然景观伴随着阳光折射至室内,天然背景随四季更替变换,通过建筑的艺术感召力,让人在繁重生活压力之下,让城市人保留对生活的热情和遐想。
▲健身室 Gymnasium
空间需要时间去解读,光影是时间的诗。设计师巧妙以情景体验为基础,以蕴藉的高级灰为主调,注入现代符号语言和形态,在精妙中令整个空间在简练中散逸出悠然的生活气息。
▲洗手间 Toilet
江河纵横、湖港交织的南昌,水既见证了它的繁荣与发展,也滋养孕育了它几千年的历史人文。
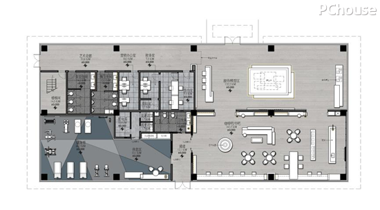
▲平面图 Floor Plan
奥迅设计意图营造出一个曲水流觞的自然空间。通过现代语言的表达,水作为空间的器皿,为人们提供一个延续的、关联的活动及情感的诱发,并带来多种可能性。
*注:部分意向图来源于网络。
最近作品
▽
佛山金融街金悦府售楼部
昆明诺仕达古滇名城样板间I户型
南昌新力城售楼部
宁波九唐凤栖院
凡本网注明“出处:其他”的内容,均转载自其它媒体,转载目的在于传递更多信息,并不代表本网赞同其观点和对其真实性负责。 如有侵权及时联系本网站,本网将在第一时间删除!转载内容的准确性由原内容提供者独立承担完全责任!


奥迅设计
2019-8-28 16:35:53















































