PART 3:卧室设计
卧室原始户型图
原始户型分析:
1、卧室开口正对入户门口,主人隐私没有保障,更惹起风水问题。
2、主卧承担次级采光通风责任,需要考虑采光面积的保留。
业主需求分析:
1、预算有限,不做复杂的吊顶,灯光颜色不要太复杂,温馨即可。
2、希望简约但不缺乏品味,最重要简单实用,性价比高。
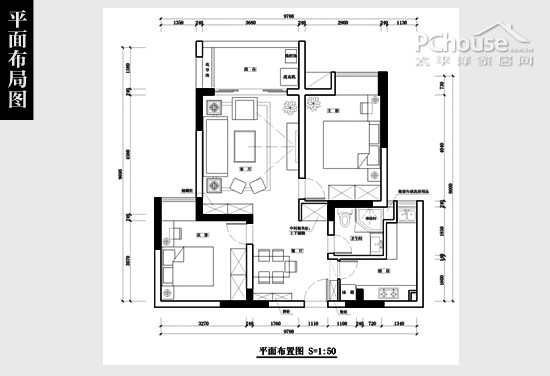
卧室平面布局图
改造思路:
1、卧室开口改为面向客厅,并采光隐形门方式,更好保障隐私。
2、改变开口后,主卧与卫浴之间增加了一面墙,腾出位置摆放鱼缸。
采光通风TIPS:
1、窗户处不摆放过高过大的家具,轻质纱窗有效提亮光线。


欣欣
2014-4-16 00:15:08













