PART 3:儿童房设计
原始户型分析:
1、儿童房位于房子的东北角,是通风采光较好的一个房间。
2、面积较小,刚好能容纳儿童床及儿童家具,配置合理。
听听业主的需求:
1、儿童房要做得更有特色,简约的美式风格,天蓝的色调,但蓝色不要太多。
2、要为孩子设置专用的书桌,位置要能得到最优越的光线。
如何设计:
1、因书桌靠近窗边墙角光线不足,书桌与床对调,调整阅读区域的光线。
2、单人儿童床静静地呆在窗边,孩子睡在这里可吸收充足的阳光,利于成长。
给业主的设计提示:
1、可挑选一些颜色较浅的简约美式家具,白色搭配原木色,再衬托些许天蓝。
2、儿童房的灯具可以不考虑水晶灯设计,简单的吸顶灯更利于孩子的安全。
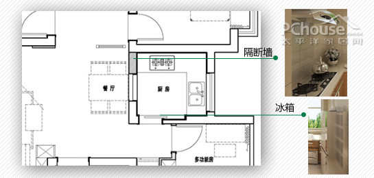
原始户型分析:
2、进入主卧的短玄关没有任何的家具或收纳设计,浪漫空间严重。
听听业主的需求:
1、主卫浴感觉很潮湿,湿气总是很难散去,要想办法改变一下。
2、业主的衣物较多,主卧需要更多的收纳与储藏空间。
如何设计:
1、调整卫浴配件位置,形成紧凑布局;沐浴房靠近窗边,利于抽湿与通风。
2、偷用卫浴一角,扩大主卧小玄关空间,衣柜与电视柜二合一,节省空间。
给业主的设计提示:
1、衣柜与电视柜二合一的设计,能够起到玄关隔断的作用,保障主卧隐私。
2、飘窗是主卧的唯一的采光与通风口,吃掉的卫浴一角也是为了保证通风对流。
设计师提供的效果参考图:
书房设计


潘颖欣
2014-5-14 00:15:47





















