设计机构:MAX马思设计(佛山)公司
设计面积:158平方米
项目地址:佛山·星星华园
房屋类型:私人住宅
设计日期:2014年
主要用材:橡木、灰木纹石,浅灰色墙漆,灰镜,手绘墙画、马赛克;
设计概念:
此居室设计采用了现代简约风格,设计提倡人与自然的交流与融合,更加着重室内通风采光的人居环境要求;这里没有艳丽的色彩、没有累赘的造型、没有喧嚣与繁冗,只有一派属于“家”的宁静与温馨;这一切的细节设计,折射出了年轻主人一家对生活品质与自我实现的追求;设计改变生活!往往我们恰好改变的是一种对生活的态度!
客厅设计
客厅设计
客厅设计
客厅设计
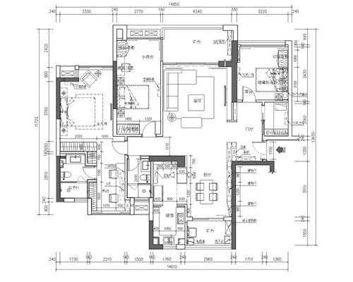
平面图
版权和免责声明
凡本网注明“出处:其他”的内容,均转载自其它媒体,转载目的在于传递更多信息,并不代表本网赞同其观点和对其真实性负责。 如有侵权及时联系本网站,本网将在第一时间删除!转载内容的准确性由原内容提供者独立承担完全责任!


佚名
2014-9-01 10:34:36











