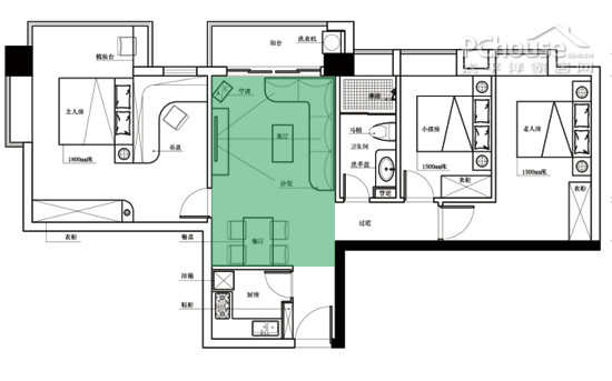
PART 2:主卧室设计
设计说明:原厨房打掉后设计成书房,与主卧室合并,满足了妻子在家工作的办公需求。书房与大床之间有到顶隔断,办公与睡眠可以互不干扰。
(卧室空间效果图)
设计说明:打通后的主卧室显得宽敞无比,与阳台相连打造落地窗,采光通风条件佳。木质地板彰显一室清爽舒适,榻榻米式床铺让视线范围更开阔。
空间产品推荐:
(点击马上拥有)
产品1:榻榻米床
价格:¥4860
(点击马上拥有)
产品2:转角书桌
价格:¥319
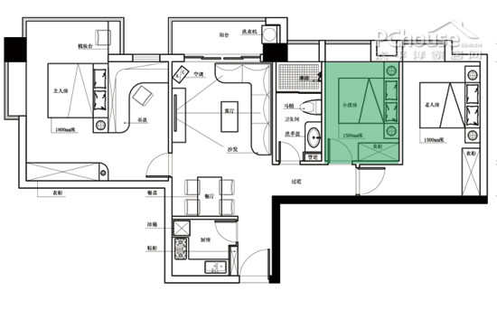
PART 3:儿童房设计
设计说明:规矩的方正布局,儿童房没有太多改动的地方,并根据业主的需求,增设了收纳储存的衣柜,使得小空间也能有大容量。
(儿童房空间效果图)
设计说明:大床两端配备了床头柜,配套齐全的家具让房间可进行灵活多变的使用。浅浅的原木色风格家具,让空间显得舒适清爽。
空间产品推荐:
(点击马上拥有)
产品1:实木简易衣柜
价格:¥7508
(点击马上拥有)
产品2:床头挂画
价格:¥78


潘颖欣
2015-1-07 00:15:15















