建筑设计从两棵老榕树开始的故事……
串连
设计团队于“新城托儿所”基地勘查时,在后方发现了社区塬有开放空间与两棵老雀榕,直觉地希望能串连这个空间,因此将托儿所地面层部分空间放空,留出大半的半户外空间,期望引导社区使用行为在基地东西向穿越,成为社区廊道,这样的穿越行为,将带动塬有社区既有开放空间的序列连结,更能强化此建筑物在邻里空间中的独特位置。
林祺锦建筑师事务所+柏林设计(王柏仁) 所设计之新城托儿所-01 西南向立面,儿童户外候车等待空间
大树下的空间转化
悠游在基地后方大树下的空间,引发了设计团队对于教育基本原型的发想,期望也能创造出类似的空间经验。藉由二楼屋顶板的拉大,在一、二楼间创造出一个大小共存的阶梯,小阶梯供动线使用,大阶梯作为看台座椅使用,配合二楼屋顶,希望塑造一个小型户外教室,亦成为入口处的一个重要空间。
新城托儿所 04-1 南向大楼梯不只是通道,同时具有教室与聚会场舞台的功能
伏而上扬 挑檐而穿透
新城托儿所基地处于聚落之中与面对南向空旷土地里,对于田野聚落尺度,把地面层的墙体移除的挑空设计是可攻可守的架构。像是潜伏于田野准备展翅的鸟类,加上四周的聚落与大树的包围。教室直接面对南向的空旷土地,旋转大门开启后连接几乎跟教室一样大的半户外走道空间,把空旷土地与教室相的串接联合在一起。
新城托儿所 05-1 一楼教室延展至半户外与户外空间的多元使用
基地两侧的进出口成为行进在聚落中弯折的入口,只开放东边与西边,里面的空间因为方向性的明确限制与易于管理而显得动态自在。
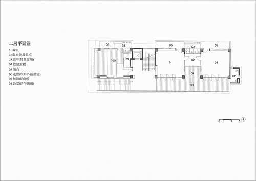
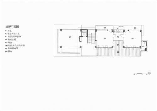
观察室可直接观察保育室与儿童厕所,所有的空间像是全部在一个大屋檐的覆盖下保持其穿透性。方便老师可以及时照料幼儿,保持视觉穿透的同时也满足了阻绝气味的基本需求。
新城托儿所 16 教师观察室
新城托儿所所採用大悬臂的反梁版系统与上方的铁木整合成一个元素,简化了构造环境同时也强化了穿透与阻挡、行进交织的多元属性空间。
北倚太鲁阁国家公园南临七星潭海岸线,新城托儿所邀请我们听觉、嗅觉与使用关怀来参与山与海、田野共同交织的环境经验。
自然环境考量
新城托儿所教室直接面对南向的空旷土地,旋转大门开启后连接几乎跟教室一样大的半户外走道空间,把空旷土地与教室相的串接联合在一起。
为了大开口迎接南面的光线及阻挡台风时带来的丰沛雨量,同时具有遮阳与雨遮功能的加大悬臂板,与清水混凝土及厚实的铁木共同组构南向的表情。清水反梁楼板加强了下层空间内外永久相连通的气息,由内而外的打开了封闭。不规则的模板分割呈现施作到使用的时间态度与延续感。
新城托儿所 24 清水模天花悬挑出的一楼半户外空间,在尺度上成为孩童偌大的游戏空间
空间配置思考
以儿童活动行为的启发与引导为思考前提,将两间保育室中央夹着厕所与观察室的主要架构下来配置,观察室可直接观察保育室与儿童厕所,所有的空间像是全部在一个大屋檐的覆盖下保持其穿透性,方便老师及时照料幼儿,保持视觉穿透的同时也满足了阻绝气味的基本需求。南向将走廊放大的设计,以因应增加不同活动使用行为的发生。
基地两侧的进出口成为行进在聚落中弯折的入口,只开放东边与西边,里面的空间因为方向性的明确限制与易于管理而显得动态自在。
新城托儿所 22 一楼半户外空间延伸至室外,成为孩童宽裕的游戏空间
材料的表情
面对不充足的预算,运用明快的技术系统,直接了当的面对每一个机会。
为了大开口迎接南面的光线及阻挡颱风时带来的丰沛雨量,同时具有遮阳与雨遮功能的加大悬臂板,与清水混凝土及厚实的铁木共同组构南向的表情。清水反樑楼板加强了下层空间内外永久相连通的气息,由内而外的打开了封闭。不规则的模板分割呈现施作到使用的时间态度与延续感。
新城托儿所 11 北向建筑立面,呈现不同年级使用的多种样貌
色彩分明的拉毛墙面除了传达粗旷中带细腻手工精神,明确的让每一个不同的空间属性有了自己的名字与个性,使用中的方向感更加确定。
洗石子大墙经得住每年从南面海上袭击的颱风,不均质的自然斑剥色泽让质感的细腻程度因时间增加而提升。
手工味道的火头砖大墙面,是凿开封闭的空间精灵。穿梭在南向光面的移动照射中,呈现了空间延展与聚落环境融合的一致性。
每种材料都做自己,传达原来的特色与质感。
新城托儿所 12 行动不便厕所外墙 本色材料在日射下更加鲜明
想像力的延伸...
清水断崖惊险的地质落差、太鲁阁曲折的石洞地形、七星潭观日沙滩的儿时游历经验时常出现在脑海里。
穿梭在大梯下玩砂空间的孩童彷彿像是身体缩小之后的鸟类在太鲁阁石洞上自在的进出;悬臂出挑的大屋檐像是迎接清水断涯与七星潭的海水侵蚀声,同时也在台风带来丰沛的雨水来临时能足够维持敞开门窗延展至半户外空间使用的深度。
新城托儿所 25 由煤渣染黑的洗石子外墙,在阳光下呈现出天然的墨绿色,唿应中央山脉景色
灰色清水模板的斑驳色泽与火头砖及半户外铁木的整体组构,像是整个花莲山与海及早期木构日式房子相互交织的缩影。
教室的南向是半户外的大平台,北向是半户外的厕所;再加上垂直的双动线与室内、半户外、户外编织在一起的空间布局,穿梭其中就像是整个康乐社区聚落的缩影。
当幼儿自在的穿梭,我们的观察室守护着极需要被照顾的幼儿;活动的同时仍然能在无视觉死角的环境下被照顾着。
这是一个学习、游乐也是充满无限可能与想像的园地。
作品名称:新城托儿所
业主资讯:新城乡公所
基地位置:花莲县新城乡康乐段
设计公司:林祺锦建筑师事务所+柏林设计(王柏仁)
建筑设计:林祺锦、王柏仁
参与人员:陈仁豪、邱景煜、黎蔚锋、刘宇伦、江昌霖、陈逸雯、 朱国华、徐佳诚、陈威廷、钟文财
结构顾问:胡裕辉结构技师事务所
机电顾问:欣钛电机技师事务所、镇世电机技师事务所
室内景观:林祺锦建筑师事务所、柏林联合室内装修设计有限公司
施工团队:洲义营造有限公司(甲级)/罗健忠
基地面积:1007.1㎡
建筑面积:404.07㎡
楼板面积:1073.24㎡
建筑层数:三层
建筑造价:新台币16,607,385元
设计时间:2006/2- 2007/10
完工时间:2008/1- 2009/6
主要建材:水泥粉光拉毛、洗石子掺煤渣、火头砖、婆罗洲铁木地坪清水模天花板、香杉实木木门
更多建筑设计图片欣赏:
新城托儿所 01-1 儿童半户外候车等待空间
新城托儿所 02 悬臂板的南向立面及色彩分明的教室楼别区分
新城托儿所 02-1 悬臂板的南向立面及色彩分明的教室楼别区分
新城托儿所 03 南向大楼梯不只是通道,同时具有教室与聚会场舞台的功能
新城托儿所 05 一楼教室
新城托儿所 06 穿梭在大梯下玩砂空间的孩童彷彿像是身体缩小之后的鸟类在太鲁阁石洞上自在的进出
新城托儿所 04-1 南向大楼梯不只是通道,同时具有教室与聚会场舞台的功能
新城托儿所 08 基地处于聚落之中与面对南向空旷土地里,对于田野聚落尺度,把地面层的墙体移除的挑空设计是可攻可守的架构
新城托儿所 08-1 紧邻东向入口的厨房前半户外煺缩空间
新城托儿所 05-1 一楼教室延展至半户外与户外空间的多元使用
新城托儿所 09 南向面半户外开放空间
新城托儿所 11 北向建筑立面,呈现不同年级使用的多种样貌
新城托儿所 12 行动不便厕所外墙 本色材料在日射下更加鲜明
新城托儿所 12 行动不便厕所外墙 本色材料在日射下更加鲜明
新城托儿所 12-1 行动不便厕所外墙 本色材料在日射下更加鲜明
新城托儿所 13 北向半户外空间
新城托儿所 15 半户外直通楼梯
新城托儿所 半户外直通厕所
新城托儿所 15 半户外直通楼梯
新城托儿所 17 一楼教室
新城托儿所 18 二楼教室使用情形
新城托儿所 19 教室可轻易延伸至半户外空间,加大使用的弹性
新城托儿所 20 二楼教室兼睡眠室
教室外墙可九十度转开的香衫大木门,把门打开,教室空间也会放大一倍
本色粉光拉毛外墙与透空栏杆之实虚对话
基地南侧未来二期开放空间
平面设计图 00-设计研究对照表
新城托儿所施工前 基地正面(施工前)
新城托儿所施工前 基地前景(施工前)
新城托儿所施工前 基地旁老雀榕01
新城托儿所施工前 基地旁老雀榕02
厕所、观察室、教室及可延展之半户外空间之间关係研究草图
厕所、观察室、教室及可延展之半户外空间之间关係研究草图
儿童使用尺度研究
半户外空间研究草图


佚名
2010-10-01 11:01:42




















































