案例说明
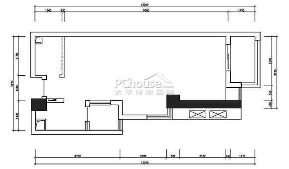
原户型设计<<点击图片放大
本案例建筑面积为68平,套内面积53平,层高3米。但居住人口有6人之多,包括业主夫妻2人,年老的父母,5岁的女孩和3岁半的男孩。
本案例位于福州商住一体楼中住宅的最底层,户外有较大的走雨槽,因此洗衣机、洗衣槽及晾衣服的地方都可放在户外,故户内的两个阳台都可利用。
业主的装修预算为6—8万,装修重点放在客厅、主卧和男孩房,业主喜爱简约的风格,希望设计师能设计出兼具美观和功能性的实用空间。
业主要求:
1.客厅除了常规的功能外,还需要一个可上网和办公的地方;在厨房边上设计一个餐厅;
2.主卧隔壁的空间可作为男孩房,次卧要分成次卧与女孩房,要求功能齐全;另外,次卧隔起来后,客厅由于没有窗户,采光可能很暗,需要考虑怎么改善这个问题;
3.卧室的设计要做到小孩有独立的睡觉、学习、玩耍的空间,两个小孩各自有自己的空间。<<详情点击
-----------------------------------------------------------------------------
更多免费设计
设计院第8期:3万元 80平设计方案
//www1.pchouse.com.cn/sheji/zt/mfsj12/
设计院第7期:3万元 20平设计方案
//www1.pchouse.com.cn/sheji/zt/mfsj12/
设计院第6期:15万元 130平设计方案
//www1.pchouse.com.cn/sheji/zt/mfsj11/
免费设计第十期:7万元 100平设计方案
//www1.pchouse.com.cn/sheji/zt/mfsj10/
免费设计第九期:8万元 130平设计方案
//www1.pchouse.com.cn/sheji/zt/mfsj9/
免费设计第八期:20万元 160平设计方案
//www1.pchouse.com.cn/sheji/zt/mfsj8/
-----------------------------------------------------------------------------
转载申明:PChouse独家专稿,请勿转载!违者本网将保留追究其法律责任的权利!
户型结构分析&设计
原结构
原结构设计
原有结构室内面积为53平,由于常住人口为六口,人口较多,但客餐厅要求宽敞的就餐空间及学习工作区域,同时要有独立的三个套房,每一个套房都要有独立的储物与学习区,介由家庭的使用功能及生活储物空间的需求同时加大,对于小空间规划来说,如何去合理利用每一个空间将是一难题。
平面图
平面图展开方案
原入户左侧是一个洗手间,为了增加家人的使用方便性及扩大空间的视线与储物功能,将卫生间洗手盆与淋浴区分离出来,这样家人可以内外同时使用洗生间,为家人早晚使用节约时间,同时洗手盆的上下均可以做成储物功能,避免了卫生间潮湿的问题。
设计师创意改造
空间模拟图<<点击图片放大
卫生间靠客厅的墙面拆除一部分,利用墙体的厚度做成入户的鞋柜,同时与客厅沙发旁边的储物柜形成一个整体。鞋柜的门开在过道口,增加家人使用的方便性,做到顶鞋柜上下均可以使用,满足使用功能。
鞋柜设计
鞋柜表面贴成镜面,扩大入户空间的同时,方便家人出入整理仪容,镜面柜门同时避免了家人入户时手脏时留下难擦洗的痕迹,易于清洁打理。鞋柜内部取消传统层板,做成前后两根不锈钢管,作为为支架支撑鞋子,同时可以作挂伞之用,既易于打理清洁,同时又避免鞋柜内部狡小空间造成鞋子发霉的问题。
点击图片进入下一页>>
餐区及厨房使用采用互相借用的方式,增大互相的使用面积。
由于业主室外可以做成洗衣与晾衣功能,于是将厨房旁边的小阳台加以利用,打通与厨房连成整体,厨房采用可以开放与封闭的形式,借用了折叠门与推拉门,平时使用时可以将入口的折叠门与阳台的四扇推拉门合拉起来形成一个完整封闭的空间,收起来时又可以满足六口人使用餐厅的宽敞度,同时提供了足够空间,给予家人在料理饮食的区域。将洗菜盆排水口做成墙排,下方空间可以做成可以滑动的矮沙发,避免了太多餐椅造成空间的拥挤。
女孩房的设计采用了多功能的方式,半开放的形式与客餐厅形成整体与连贯,这样可以留出足够多的空间给予家人小孩的活动。对于小空间来说,大活动区域和大客厅是一个奢侈的话题,但在这里同样实现了,开放的房间尽量满足整个客餐厅的采光与通风。
三居室设计
储物柜略做薄一些,使折叠门与客厅的背景在同一个水平线上,为了留出过道出入空间,电视墙的下方取消电视柜的摆放,借用了主卧衣柜内部空间,衣柜采用内外使用的设计,衣柜的背后下方做成可以开向客厅的电视柜。上方则为主人收纳衣服的空间。
就算封闭,依然可以通过折叠门的玻璃透光进来。女孩房床的设计采用收藏方式,在靠近窗的一侧做成整面书柜,上部分留出窗的位置,下部分1.2米做成可以翻下来的设计,使用时可以将床翻下来。房间门的设计与厨房有异曲同工之效,同样采用折叠门的方式,节约空间。书柜与书桌形成一个整体,平时开放时满足了男主人需求有一个书桌的空间的要求,书桌的左侧可以做成收纳衣服的储物柜。
卧室设计
男孩房的设计虽小,但依然功能齐全,借用了主卧墙的位置,做成衣柜,床尾一侧做成书桌,上方为吊柜。
为了增加家居的使用功能,进入卧室的过道空间均可以做成吊柜,吊柜的门开在主卧的入口门上方,方便家人的拿取。
-----------------------------------------------------------------------------
更多免费设计
设计院第8期:3万元 80平设计方案
//www1.pchouse.com.cn/sheji/zt/mfsj12/
设计院第7期:3万元 20平设计方案
//www1.pchouse.com.cn/sheji/zt/mfsj12/
设计院第6期:15万元 130平设计方案
//www1.pchouse.com.cn/sheji/zt/mfsj11/
免费设计第十期:7万元 100平设计方案
//www1.pchouse.com.cn/sheji/zt/mfsj10/
免费设计第九期:8万元 130平设计方案
//www1.pchouse.com.cn/sheji/zt/mfsj9/
免费设计第八期:20万元 160平设计方案
//www1.pchouse.com.cn/sheji/zt/mfsj8/
-----------------------------------------------------------------------------
转载申明:PChouse独家专稿,请勿转载!违者本网将保留追究其法律责任的权利!


佚名
2011-7-19 18:07:18
















