【太平洋家居网 设计频道】对于不常做饭的两夫妻来说,68平米足以满足他们的生活所需。这一套两居室,整体风格是田园自然风。设计师用4.5万,就帮甜蜜夫妻打造了清新婚房。
4.5万打造68平田园风
4.5万打造68平田园风
4.5万打造68平田园风
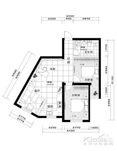
本案位于北京朝阳某小区,建筑面积约68平米,是一套二室平层,房主为青年夫妇。设计师通过与房主沟通后,最终将本案设计风格定位为田园风格。生活源于对自然原生态的追求,把自然引入室内,享受美丽的自然风。主人不常做饭,考虑到光线及整效果,开放式厨房的方案设计师与业主不谋而合。
4.5万打造68平田园风
4.5万打造68平田园风
平面图
案例地址:北京朝阳
案例类型:两居室,68平米
房主情况:夫妇二人
设计师:刘天让 陆枫
设计完成时间:2010年6月上旬
案例提供:北京轻舟世纪建筑装饰工程有限公司


佚名
2011-9-02 10:25:45







