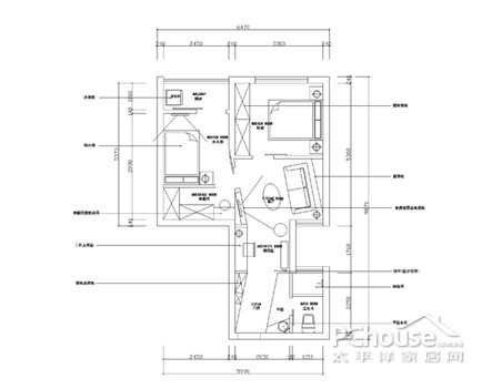
此户型来自上海的两口之家,房屋是1978年建成的老公房。这所房子为父女二人居住,空间原本的设计为两居室,包括主卧室,次卧,一个卫浴间以及一个阳台。房屋的实际面积为54平米,由于厨房已搬到室外,因此室内不需要考虑厨房的空间,但是屋主希望能够增加一个客厅,以满足生活的需要。
在风格方面,最适合于父女二人的自然就是简洁温馨的设计了。
户型图
点击查看大图>>
户型图设计
网友详细需求:
1、屋主的装修预算为6W左右,要求简洁温馨的风格;
2、此户型为54平米的两居室设计,屋主希望能够在原本没有客厅的基础上开辟出一个客厅;
3、隔壁房屋的橱柜阻隔在卫浴间与主卧室之间,但是这所房屋原有的壁柜已经被敲坏,屋主希望能够充分利用其空间,同时拥有适当的收纳空间;
4、另外,屋主还希望能够对阳台进行改造,让次卧的空间得以变大。此外,次卧室为屋主的女儿居住,因此次卧的设计需要具备时尚感。
改造方案
点击查看大图>>
改造方案
方案分析:此户型需要作出最大改造的部分为阳台与次卧的合并,以及客厅空间的开辟。首先,设计师把从玄关到主卧室的空间分为3个区域,门厅,阅读区以及客厅。门厅与卫浴间相邻,经过门厅后是一个小型的开放式书房的设计,而在阅读区与主卧室之间极为屋主要求增加的客厅。
其次是次卧室对出的阳台的改造,设计师打通了阳台与次卧室的隔断,阳台与次卧以一扇门相连接,从而扩大了次卧的空间感。
推荐效果图:
玄关:入门处的位置是门厅的设计,门厅的一侧可以放置一个收纳柜,既方便出入时候物品的摆放,柜底也可以搁置鞋子,充分满足屋主对于储物的要求。在收纳柜的上方可以悬挂一面镜子,有利于扩大空间感。
阅读区设计
阅读区:门厅与阅读区之间可以用一面纱窗隔断。阅读区使用嵌入式多用途书柜,不但能够成功地摆脱室内繁杂的状态,而且满足收纳的需求,这是每个人都梦寐以求的减法设计空间,最适用于小户型的设计。阅读区同时也具备工作上网区的功能。
客厅:客厅中可以摆设大型的收纳柜,这样一来客厅本身就形成了一个收纳的空间。同时,客厅采取收纳方式的设计,从而使得客厅本身所占的空间缩小,可谓一举两得。而电视柜本身就可以剧本收纳功能。
主卧设计
主卧室:主卧室为男主人居住,因而可根据屋主的喜爱,采用沉稳的颜色。主卧室的空间比较大,可以把床的一侧的空间作为书房使用,而在床的对面可以放置整体的衣柜。
卫浴设计:卫浴位于门厅隔壁,淋浴间与卫生间相合并,建议把干区放在卫浴间门外,即可防潮防湿,有不至于让卫浴间显得过于拥挤。
次卧设计
次卧设计
次卧室:打通阳台之后,次卧室的空间得以增大不少。阳台与次卧室之间可以以一扇玻璃推拉门连接,阳台上可以摆放洗衣机。
衣帽间:衣帽间同时也是梳妆间,也可以充当小型的书房使用。鲜艳的色彩搭配适合女性的品味,隔板的设计既可以作为装饰,同时可以作为收纳之用。


佚名
2011-12-06 16:06:23













