【太平洋家居网 设计频道】来自东莞的网友,实用面积为155平米,格局是四室三厅三卫,装修重点是厅内有一个四方的承重柱不好规划,以及不可以用开放式厨房,要有可工作、可单独换衣服、可放大型杂物的空间(如BB车2辆)。整体风格现代或日式,网友希望费用控制在15万以内,下面一起来看看关策设计师给出的方案。
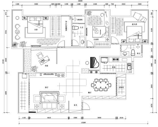
原户型图
广州报名网友 | |||
建筑面积 | 165㎡ | 实用面积 | 155㎡ |
喜爱风格 | 现代风活日式风 | 房屋布局 | 4房3厅3卫 |
常住人口 | 4人 | 装修预算 | 15万 |
具体需求 | 1、厅内有一个四方的承重柱不好规划。 2、不可以用开放式厨房,否则无法开通天然器。 3、要有可工作、可单独换衣服、可放大型杂物的空间(如BB车2辆)。 4、只需2个卫生间,老人房和工作室或收纳室想做可收纳型的床。注:家里有老人,幼儿,偶尔会有客人来居住。 | ||
以下是设计师结合原始户型和和网友的需求给出的平面设计图:
点击放大
细节分析:
户型设计基本按照网友要求来布置,只是在此基础上分别增加了收纳、单独工作间,还特别针对厅内的四方承重柱的处理。
收纳是网友的重点要求之一,主卧按照需求把卫生间打掉变成衣帽间,同时每个卧室都有匹配的衣柜收纳,还在客厅餐厅设计收纳柜,增加公共区域的收纳。
单独工作间:以玻璃间隔划出书房区域,既美观又实用,符合网友的需求。
厅内四方承重柱:放置钢琴的同时,用吧台设计,连结厨房区域,就可以作为一个喝茶聊天赏乐的情调角落,使得四方柱不突兀。
转载申明:太平洋家居网独家专稿,未经授权不得转载!
推荐阅读:
15万80平VS50万180平 2套免费设计方案
免费设计41期 2套40平小户型收纳设计
免费设计40期 2套100平3房实用方案
以下图片为局部参考效果,并非为网友户型专门设计
客厅设计:客厅以块面和线条装扮空间,大面积的木制作和白色,是其特有的特色.
沙发背景:沙发背景做开放式展示柜,在局部可做灰镜和白色高光烤漆门板,进行组合,增强其实用性,又不显压抑,紧张。
玄关设计:玄关隔断参考书房隔断,鞋柜部分的色彩参考其他空间部分的木制作颜色,造型参考本图片
主卧设计:应业主要求,在不影响大局几实用性的基础上,尽最大可能的充分利用空间,将老人房的卫生间改为次卫,将原建筑次卫改为主卫,原建筑主卫改为步入式衣帽间。
老人房设计:主要考虑老人的个人喜好来选择色彩的搭配,多以软性的材质出现,比如:软包,多方面考虑老人的安全行动便利性
儿童房设计:在满足实用性的基础上,尽可能的发挥儿童个人的天赋,多以色彩明快,对比强烈,造型丰富自然的装饰手法来体现儿童天真烂漫的天性。
书房设计:书房由于是开放式,整体的色彩与形态需要与外部空间相协调,整体色调的搭配,以木制作;白色和深灰色为主,多以开放式书架出现,局部搭配白色柜门。
厨房设计:厨房部分以高光黑白调子为主,干净整洁,颇具现代感。
卫生间设计:用马赛克作为点缀,采用温暖米色的大理石瓷砖,易于清洁又倍显得温馨。
转载申明:太平洋家居网独家专稿,未经授权不得转载!
推荐阅读:
15万80平VS50万180平 2套免费设计方案
免费设计41期 2套40平小户型收纳设计
免费设计40期 2套100平3房实用方案


ting
2012-12-19 00:15:34













