设计图
并列的线路,沿房子的线条形成挤压。然后通过一个并列象限产生的一系列外观变化使他们不重叠。这些线条总是与构造的选择相关,使房子产生新的空位。
设计图
这房子有187平方米,内有4间房间、三间浴室、一个客厅、厨房、长廊、烧烤区和露台。
设计原理
佚名
2010-8-18 09:25:17
设计图
并列的线路,沿房子的线条形成挤压。然后通过一个并列象限产生的一系列外观变化使他们不重叠。这些线条总是与构造的选择相关,使房子产生新的空位。
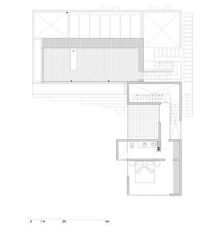
设计图
这房子有187平方米,内有4间房间、三间浴室、一个客厅、厨房、长廊、烧烤区和露台。
设计原理