Hover House别墅建筑设计外观图
Glen Irani 建筑设计事务所在设计了Hover Houses 系列的第三座住宅,该住宅位于加利福尼亚州洛杉矶威尼斯运河边。
以下信息来自Glen Irani建筑设计事务所:
位于加利福尼亚州洛杉矶的威尼斯运河边的Hover House 3是我们设计的Hover House系列的代表作。为了最大限度地创造户外空间的环境,我们本系列的重点放在户外小地块上,这样就能通过构造高于地坪的“盘旋”外观来达到目的。该系列的另一特点在于,通过缩小室内空间来集中扩建舒适的户外空间。随着未来数十年原材料和劳动力的增加,减少室内面积以增加户外功能设施的建设是降低温带气候地区的建筑成本和节约资源的有效途径之一。
Hover House别墅建筑设计室内局部图
Hover House别墅建筑设计室内局部图
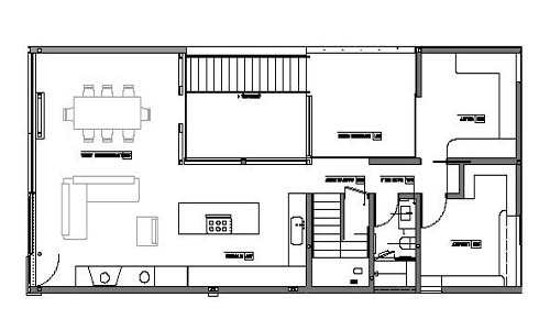
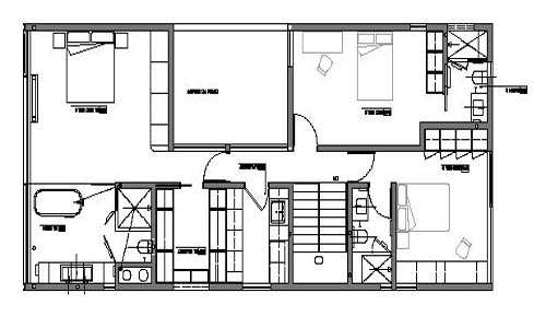
这座带有三间卧室和两间办公室且面积达到2500平方英尺的房子已经削减了大量的室内空间(常规约25%)。这座房子及其他两座同属Hover Houses 系列的房子(包括建筑师自己的房子)的居民使我们能够研究到该案例的有效性,并且总结出一个适应主流文化的改善方法。在环境如局促的威尼斯运河边的Hover House 3好像一个简单的盒子,但室内的设备却非常完善,客厅、饭厅和厨房等样样齐全。和一般房子具备同样功能的Hover House 3的室内面积减少了50%以上(遗憾的是,我们无法说服户主削减更多空间)。
Hover House别墅建筑设计室内局部图
在环境如局促的威尼斯运河边的Hover House 3好像一个简单的盒子,但室内的设备却非常完善,客厅、饭厅和厨房等样样齐全。和一般房子具备同样功能的Hover House 3的室内面积减少了50%以上(遗憾的是,我们无法说服户主削减更多空间)。
Hover House别墅建筑设计室内局部图
Hover House别墅建筑设计室内局部图
我们希望,Hover House的概念在这个社区里能够作为一个实际范例被人们逐渐接受,即户外居住空间等值交换。最终,房主将决定在一定程度上缩小Hover House的室内社区空间,从而节省了成本、资源以及减少碳排量。
Hover House别墅建筑设计室内局部图
Hover House别墅建筑设计室内局部图
Hover House别墅建筑设计室内局部图
可持续发展设计:
Hover House 3 采用大量的可持续性改进技术,包括主系统的内蕴能量对外部人造石岩面板的需求,外部混泥土墙壁和辐射液体循环暖气设备以及其他设施。此外,在自然通风的装置上,我们专门设计了窗口位置和一个延长到屋顶的风塔。这样一来,户主就不必安装空调了。除了内墙涂料外,所有的室内装饰都是无限期设计,以便将来可以针对具体情况尽量减少能源排放量。
Hover House别墅建筑设计室内局部图
Hover House别墅建筑设计室内局部图
Hover House别墅建筑设计室内局部图
另外,其他可持续性研究的目的主要在于减少空气和噪音污染,这是一个不被人们重视的可持续发展项目。无油烟设施、冷气屋顶以及外部构件的结合共同消除了现场施工噪音,减少了挥发性有机化合物和一氧化碳的排放量。


佚名
2010-11-01 12:26:23



















