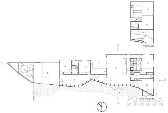
Letterbox住宅平面图
Letterbox住宅外观设计
Letterbox住宅外观设计
Letterbox住宅外观设计
建筑设计:McBride Charles Ryan - Rob McBride & Debbie-Lyn Ryan
项目地址:澳大利亚布莱尔高里
项目团队:Adam Pustola, Meredith Dufour, Michael McManus, Angela Woda
建筑面积:290㎡
这所名叫Letterbox的住宅外观相当独特,酷似一件艺术品。人们不得不提出疑问:“这样的房子真的能住吗?”
本案例为太平洋家居网设计频道翻译编辑自国外archzine.com网站,已经授权国内独家发布,未经书面授权不得转载,违者本网将追究法律责任!
编辑推荐:
Letterbox住宅局部设计
Letterbox住宅局部设计
以下信息来自McBride Charles Ryan建筑事务所:
房子的层次结构很清晰。相对于从“信箱”自西延伸到走廊的倾斜木墙,其余房子的部分大多都遵循了现代简约风格。在设计方法上,倾斜木墙似乎由微型信箱变形而来。然而,从其他角度看,房子更像雕刻而成。这两种技术在概念上互相矛盾。
本案例为太平洋家居网设计频道翻译编辑自国外archzine.com网站,已经授权国内独家发布,未经书面授权不得转载,违者本网将追究法律责任!
编辑推荐:
Letterbox住宅走廊设计
外墙的造型令人遐想,既像包裹着的甲板、悬崖,又像翻过来的船或冻结的海浪。走廊内部有一间在沙滩假日收集小古董的贮藏所——这是唤起家庭回忆必不可少的东西。
本案例为太平洋家居网设计频道翻译编辑自国外archzine.com网站,已经授权国内独家发布,未经书面授权不得转载,违者本网将追究法律责任!
编辑推荐:
Letterbox住宅餐厅设计
点击图片进入下一页>>
Letterbox住宅卧室设计
此外,墙壁还是一个中间地带,一个可以创造家庭生活的强大舞台。大人可以在这儿照看孩子,还能观赏日落美景,这样又多了许多关于海滩假日的美好回忆。多年过后,它将成为全家福的背景。
本案例为太平洋家居网设计频道翻译编辑自国外archzine.com网站,已经授权国内独家发布,未经书面授权不得转载,违者本网将追究法律责任!
编辑推荐:


yangyanwei
2010-12-27 00:30:39











