The House on the Flight of Birds是建筑设计师Bernardo Rodrigues的最新作品,坐落于葡萄牙属亚述尔群岛中的圣米格尔岛之上,名为Ribeira Grande的自治区域内。
别墅外观设计
别墅外观设计
别墅外观设计
这座建筑主要由一个中心区域和两侧躯干组合而成,如同我们记忆中的鸟之羽翼的形态,一侧将房屋的厨房区域掩入羽翼之下,同时,另一侧斜飞的翅膀则连通了低层空间和房屋顶部,以及高层的私人居住空间。
-----------------------------------------------------------------------------
编辑推荐
自然精致 瑞典松林间别墅设计
//sheji.pchouse.com.cn/zuopinku/jianzhu/1106/97286.html
一屋一世界 日本EDDI别墅设计
//sheji.pchouse.com.cn/zuopinku/jianzhu/1106/95866.html
折纸房屋 莫斯科观景别墅设计
//sheji.pchouse.com.cn/zuopinku/jianzhu/1106/95859.html
品精英生活 超现代主义别墅设计
//sheji.pchouse.com.cn/zuopinku/shinei/1106/94984.html
-----------------------------------------------------------------------------
转载申明:PChouse独家专稿,请勿转载!违者本网将保留追究其法律责任的权利!
别墅客厅设计
别墅客厅设计
葡萄牙建筑设计师所设计的这件作品的目的在于开发出一种足以抵御这片区域恶劣气候状况的房屋构造,以此来应对强有力的风和频繁的雨雪天气。结实的墙体能够从外部保护房屋免于狂风的吹袭,两侧斜飞的鸟翼相互连接,构成了房屋的顶部,遮盖住低层的开放空间,使之免于雨雪的侵袭。
别墅儿童房设计
别墅阳台设计
实际上,被遮掩住的露台和庭院环绕着最低层的空间,这片生活空间所使用的玻璃墙面为房屋内部增加了更多的光照,同时,居住其中的人也能够从玻璃墙内享受到非比寻常的外部美景。
别墅楼梯设计
最令人惊叹的则是屋顶,其中一部分被设计成台阶的样式,你可以看到从房屋外部的近景一直延伸至岛屿北部海岸的多层次分布的壮丽景色。
别墅外观设计
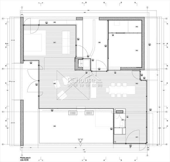
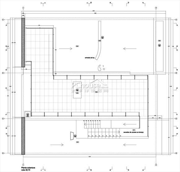
别墅平面图设计
别墅平面图设计
别墅平面图设计
别墅平面图设计
别墅平面图设计
摄影师:Iwan Baan(design42day提供)
-----------------------------------------------------------------------------
编辑推荐
自然精致 瑞典松林间别墅设计
//sheji.pchouse.com.cn/zuopinku/jianzhu/1106/97286.html
一屋一世界 日本EDDI别墅设计
//sheji.pchouse.com.cn/zuopinku/jianzhu/1106/95866.html
折纸房屋 莫斯科观景别墅设计
//sheji.pchouse.com.cn/zuopinku/jianzhu/1106/95859.html
品精英生活 超现代主义别墅设计
//sheji.pchouse.com.cn/zuopinku/shinei/1106/94984.html
-----------------------------------------------------------------------------
转载申明:PChouse独家专稿,请勿转载!违者本网将保留追究其法律责任的权利!


佚名
2011-6-21 15:36:28





















